2-Bedroom, 2017 Sq Ft Ranch Plan with Walk-in Pantry

Main image for house plan # 19503

Images/Plans copyrighted by designer. Photos may reflect homeowner modifications.

About House Plan #101-1329

Sq Ft
2017
Sq Ft
Bedrooms
2
Bedrooms
Bathroom
2
Baths
Half Baths
0
Half Baths
Bedrooms
3
Cars
Bedrooms
1
Stories
Bedrooms
73' 0'
Width
Bedrooms
50
Depth
Starting at$1090.00What's included
STEP 1Bedrooms
STEP 2Bedrooms
STEP 3Bedrooms

Subtotal:$0
BedroomsBest Price Guaranteed
Plan Collection

How much will it cost to build?

Estimate your costs based on your location and materials.

Free Cost Instant Estimator

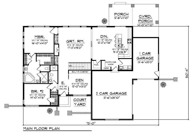
Floor Plans

MAIN FLOOR PLAN
MAIN FLOOR PLAN
Plan Collection

Can I modify this plan?

Yes! This plan can be customized—contact us for a free quote.

House Plan Description

This prairie style ranch home sports massive columns that lead you to a front courtyard as you enter. Fifteen foot ceilings lead you from the entry to the spacious great room where you’ll love the two-story wall of windows that lets in plenty of natural light. A fireplace flanked by built-in cabinets creates a cozy atmosphere for entertaining. A soffeted opening leads you to the right into the kitchen where you’ll find an eat-in island, walk-in pantry and computer desk. The bedrooms are located to the left of the entry and include a master suite complete with lots of closet space, a corner...

Home Details

Summary
Plan #:101-1329
Starting at:$1090.00
Floors:1
Bedrooms:2
Full Baths:2
Half Baths:0
Garage:
Square Footage
Heated Area:2017 Sq. Ft.
First Floor:2017 Sq. Ft.
Unheated Area:
Dimensions
Depth:50' 4''
Architectural Styles
Exterior Wall Material
Aluminum SidingVinyl SidingRock/StoneWood Siding
Roof Pitch
4/12
Ceiling Height
10 Foot Ceiling
Special Feature
Fireplace
Garage Type
Side Entry
Fireplaces
One Fireplace
Kitchen Features
Walk-in Pantry
Porches and Exterior Features
Courtyard

What’s Included

Most plan sets include the following:

icon text-secondary-400 includedFront, Back & Side Elevations

icon text-secondary-400 includedFloor Plans

icon text-secondary-400 includedElectrical Layout (location of outlets, switches, etc. - it does not have wiring schematics)

icon text-secondary-400 includedRoof Plan (Birdseye view)

icon text-secondary-400 includedFoundation Layout

icon text-secondary-400 includedWall & Stair Sections

icon text-secondary-400 includedCross Section

icon text-secondary-400 includedKitchen Layout

icon text-secondary-400 includedGeneral Notes

What’s Not Included

These items are  NOT included:

icon text-secondary-400 includedArchitectural or Engineering Stamp - handled locally if required.

icon text-secondary-400 includedSite Plan - handled locally when required.

icon text-secondary-400 includedMechanical Drawings (location of heating and air equipment and ductwork) - your subcontractors handle this.

icon text-secondary-400 includedPlumbing Drawings (drawings showing the actual plumbing pipe sizes and locations) - your subcontractors handle this.

icon text-secondary-400 includedFraming layouts with beam sizes and locations.

icon text-secondary-400 includedEnergy calculations - handled locally when required.

Related House Plans

Plan Collection
Plan Collection
Plan Collection
Plan#138-1003
Starting at$1050
1922
Sq Ft
1
Story
2
Bed
2
Bath
1
Car
Plan Collection
Plan Collection
Plan Collection
Plan#101-1336
Starting at$1090
2049
Sq Ft
1
Story
2
Bed
2
Bath
3
Car
Plan Collection
Plan Collection
Plan Collection
Plan#161-1068
Starting at$1550
1885
Sq Ft
1
Story
2
Bed
2.5
Bath
3
Car
View All

Other Plans By This Designer

Plan Collection
Plan Collection
Plan Collection
Plan#101-1503
Starting at$1090
2098
Sq Ft
2
Story
4
Bed
2
Bath
2
Car
Plan Collection
Plan Collection
Plan Collection
Plan#101-1028
Starting at$1240
3020
Sq Ft
2
Story
4
Bed
2.5
Bath
3
Car
Plan Collection
Plan Collection
Plan Collection
Plan#101-2024
Starting at$1240
3235
Sq Ft
1
Story
5
Bed
3.5
Bath
3
Car