Estimate your costs based on your location and materials.
Yes! This plan can be customized—contact us for a free quote.


Yes! This plan can be customized—contact us for a free quote.
NO Material lists.
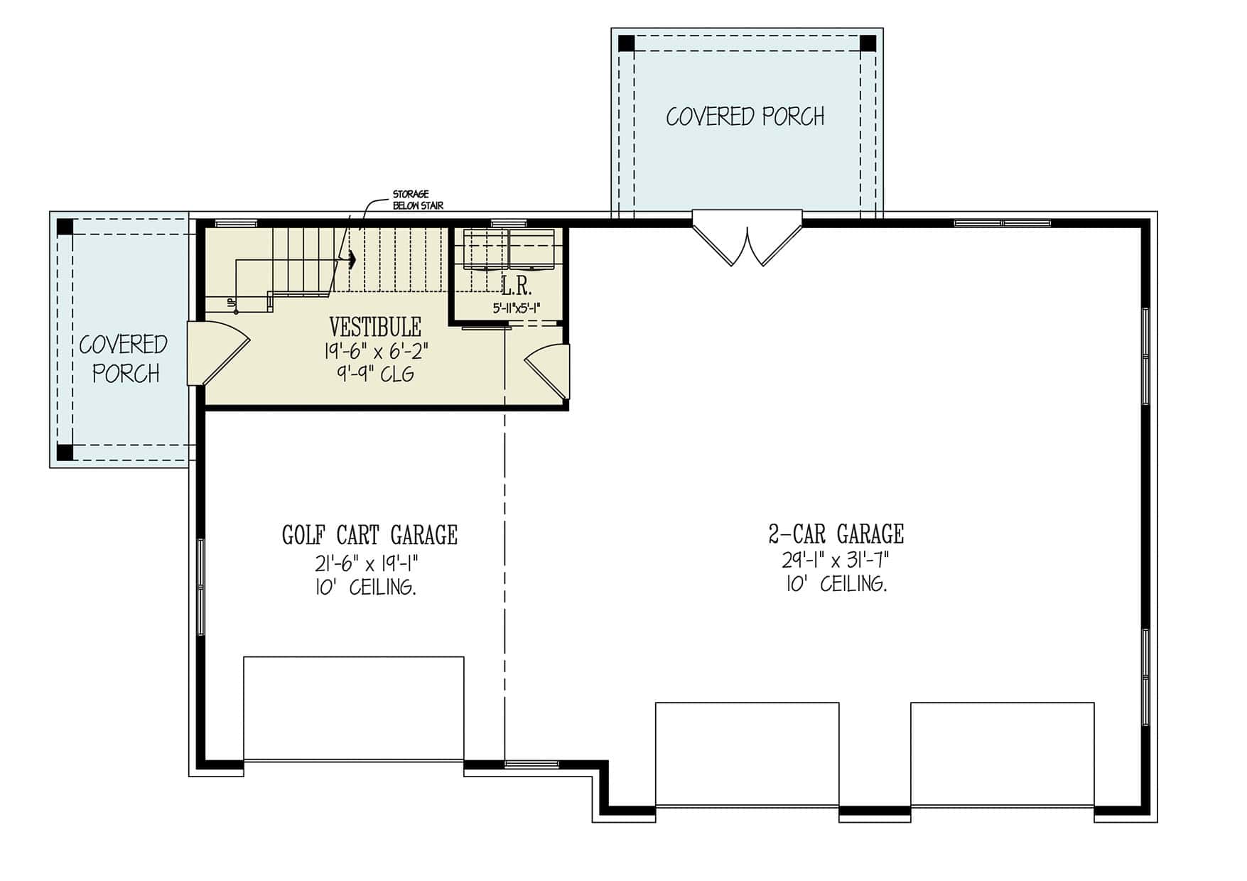
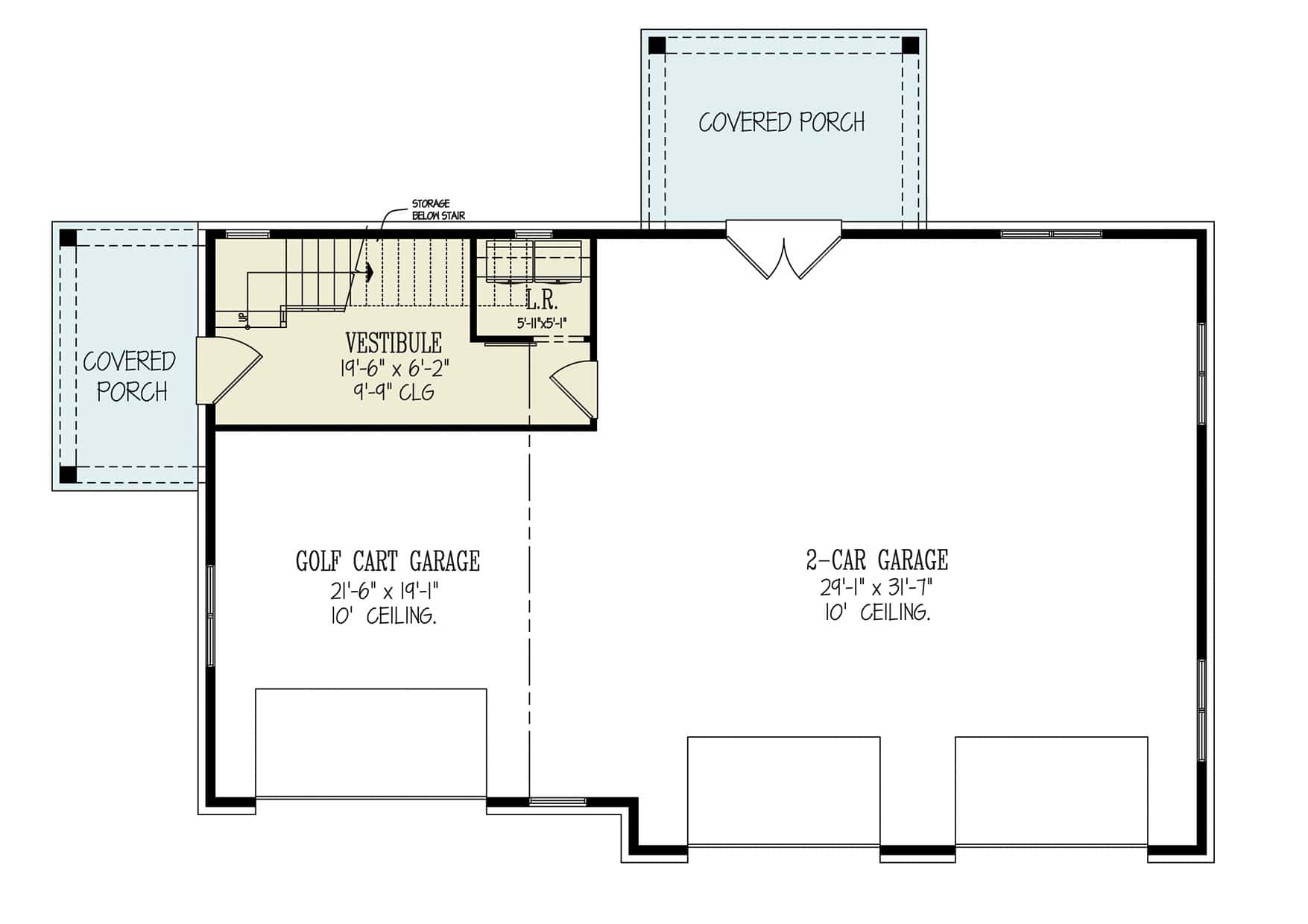
This detached garage plan with Modern Farmhouse style features 1,423 square feet, offering ample space for a 3-car garage. Upstairs, the main level boasts 1,544 square feet of fully conditioned living space with an open-concept layout that seamlessly connects the kitchen, dining, and living areas. A private bedroom includes a luxurious ensuite bathroom and a spacious walk-in closet for added comfort. Outdoor living is elevated with both a covered porch and a generous open deck—ideal for entertaining or simply enjoying the surroundings. Experience a perfect blend of style,...
Estimate your costs based on your location and materials.
All sales of house plans, modifications, and other products found on this site are final. No refunds or exchanges can be given once your order has begun the fulfillment process. Please see our Policies for additional information.
All plans offered on ThePlanCollection.com are designed to conform to the local building codes when and where the original plan was drawn.
The homes as shown in photographs and renderings may differ from the actual blueprints. For more detailed information, please review the floor plan images herein carefully.
Estimate your costs based on your location and materials.
























