Estimate your costs based on your location and materials.
Yes! This plan can be customized—contact us for a free quote.

Yes! This plan can be customized—contact us for a free quote.
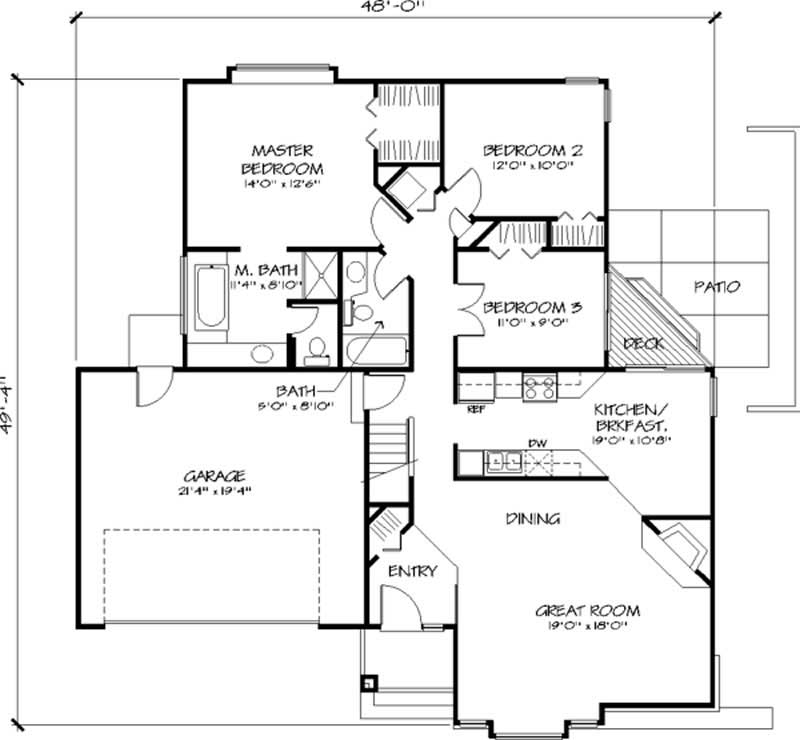
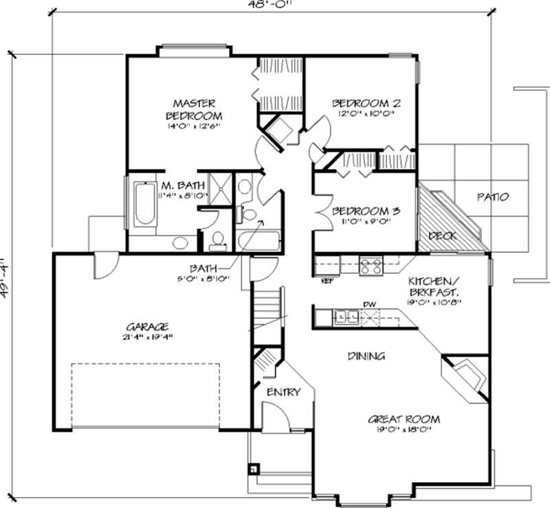
This comfortable, attractive design boasts an open floor plan that is further expanded by vaulted ceilings. The covered entryway leads into the foyer, where the open living spaces come into view immediately. The stunning Great Room is highlighted by a vaulted ceiling, a fireplace and a gorgeous window arrangement. The adjoining dining area, kitchen and breakfast nook are also vaulted. The kitchen features a half-round opening above the sink that faces the dining area. The breakfast nook offers access to an angled deck and a patio for extended living space. The spacious master suite,...
Estimate your costs based on your location and materials.
All sales of house plans, modifications, and other products found on this site are final. No refunds or exchanges can be given once your order has begun the fulfillment process. Please see our Policies for additional information.
All plans offered on ThePlanCollection.com are designed to conform to the local building codes when and where the original plan was drawn.
The homes as shown in photographs and renderings may differ from the actual blueprints. For more detailed information, please review the floor plan images herein carefully.
Estimate your costs based on your location and materials.

