Estimate your costs based on your location and materials.
Yes! This plan can be customized—contact us for a free quote.

Yes! This plan can be customized—contact us for a free quote.
PLEASE NOTE! The CAD - Unlimited package is NOT an unlimited license - it is a license to build up to 5 homes. ATTENTION! Printed sets can ONLY be sent via ground shipping. NO priority or express shipping is available. ATTENTION! Printed sets can ONLY be sent by ground - NO priority or express shipping on printed sets!
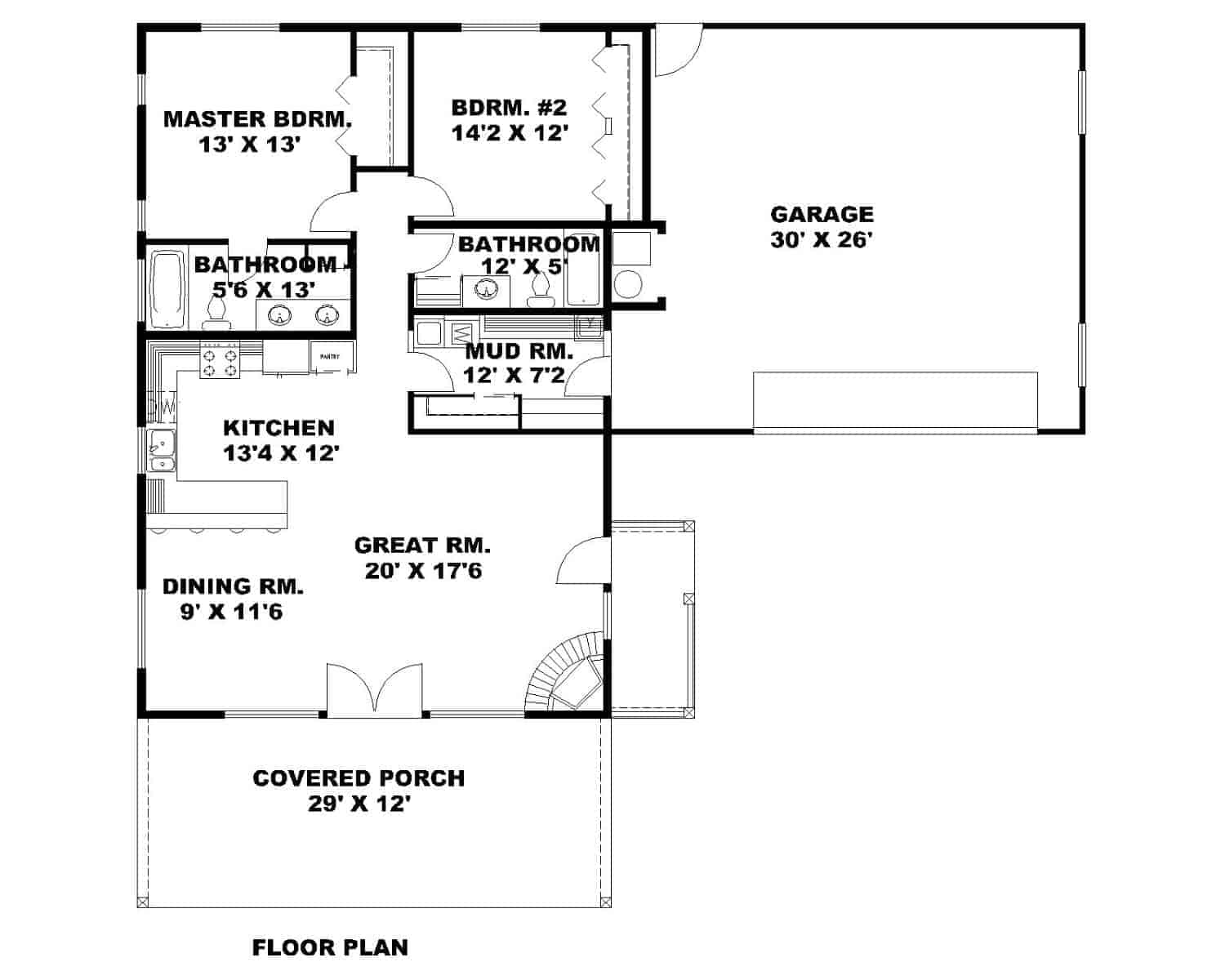
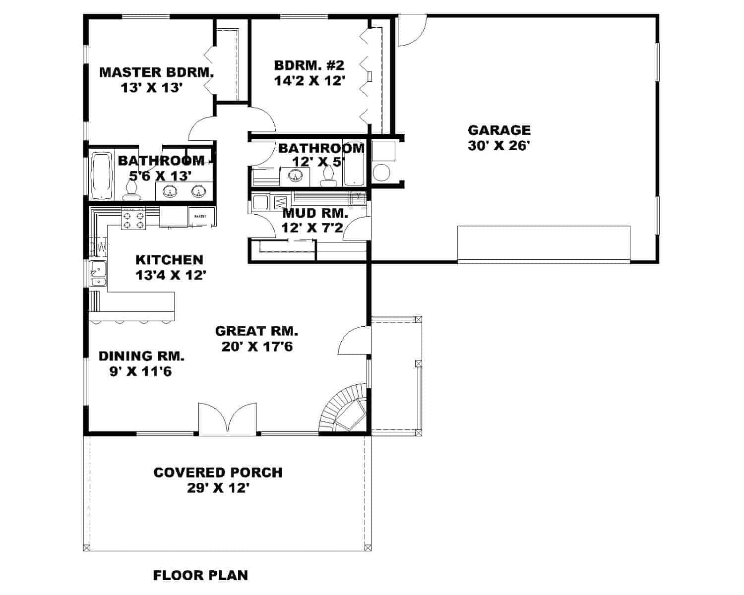
This remarkable single-story country ranch offers so much in only 1352 living square feet. The vaulted entry porch opens to a spacious great room with a corner fireplace and direct access to a wide porch, perfect for grilling, entertaining, or simply relaxing. The open-concept kitchen includes a raised eating bar and is steps away from the dining area. At the rear of the home are two bedrooms, including the master suite with a private bath and a large closet. This home plan also has standard frame construction, a mud room, and an attached 2-car garage.
Estimate your costs based on your location and materials.
All sales of house plans, modifications, and other products found on this site are final. No refunds or exchanges can be given once your order has begun the fulfillment process. Please see our Policies for additional information.
All plans offered on ThePlanCollection.com are designed to conform to the local building codes when and where the original plan was drawn.
The homes as shown in photographs and renderings may differ from the actual blueprints. For more detailed information, please review the floor plan images herein carefully.
Estimate your costs based on your location and materials.





