Estimate your costs based on your location and materials.
Yes! This plan can be customized—contact us for a free quote.


Yes! This plan can be customized—contact us for a free quote.
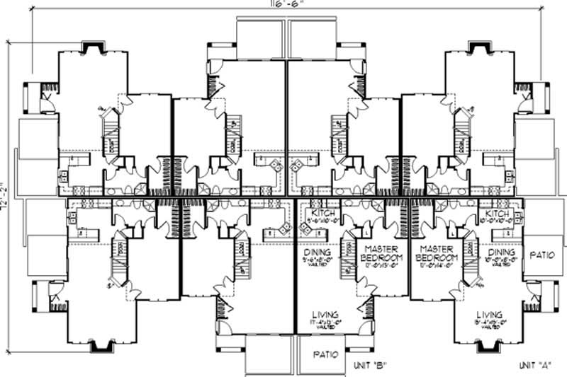
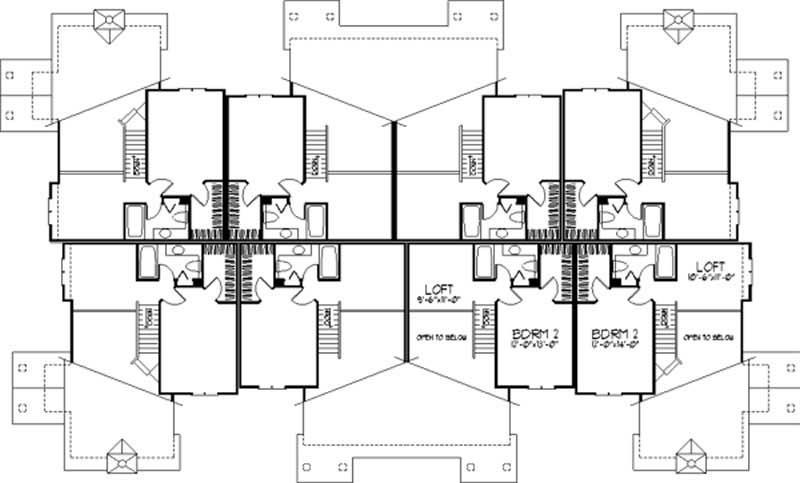
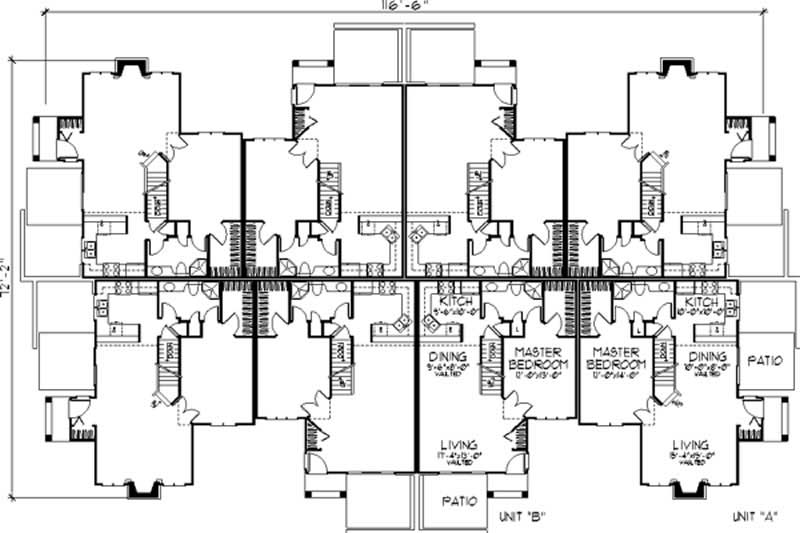
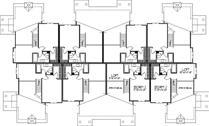
This amazing eightplex strikes a nice balance between ease of construction, and exciting features to entice residents. Unit A is a corner design with two bedrooms, a loft, a fireplace, two baths and a private patio. Unit B is an interior plan with vaulted ceilings in the living and dining rooms, a two-bedroom option, two baths, a loft, a corner fireplace and a private patio.
Estimate your costs based on your location and materials.
All sales of house plans, modifications, and other products found on this site are final. No refunds or exchanges can be given once your order has begun the fulfillment process. Please see our Policies for additional information.
All plans offered on ThePlanCollection.com are designed to conform to the local building codes when and where the original plan was drawn.
The homes as shown in photographs and renderings may differ from the actual blueprints. For more detailed information, please review the floor plan images herein carefully.
Estimate your costs based on your location and materials.


