7-Bedroom, 10560 Sq Ft Luxury Plan with Nook/Breakfast Area

Front elevation of Luxury home (ThePlanCollection: House Plan #156-1554)

Images/Plans copyrighted by designer. Photos may reflect homeowner modifications.

About House Plan #156-1554

Sq Ft
10560
Sq Ft
Bedrooms
7
Bedrooms
Bathroom
7
Baths
Half Baths
2
Half Baths
Bedrooms
4
Cars
Bedrooms
2
Stories
Bedrooms
129' 0'
Width
Bedrooms
81
Depth
Starting at$1450.00What's included
STEP 1Bedrooms
STEP 2Bedrooms
STEP 3Bedrooms

Subtotal:$0
BedroomsBest Price Guaranteed
Plan Collection

How much will it cost to build?

Estimate your costs based on your location and materials.

Free Cost Instant Estimator

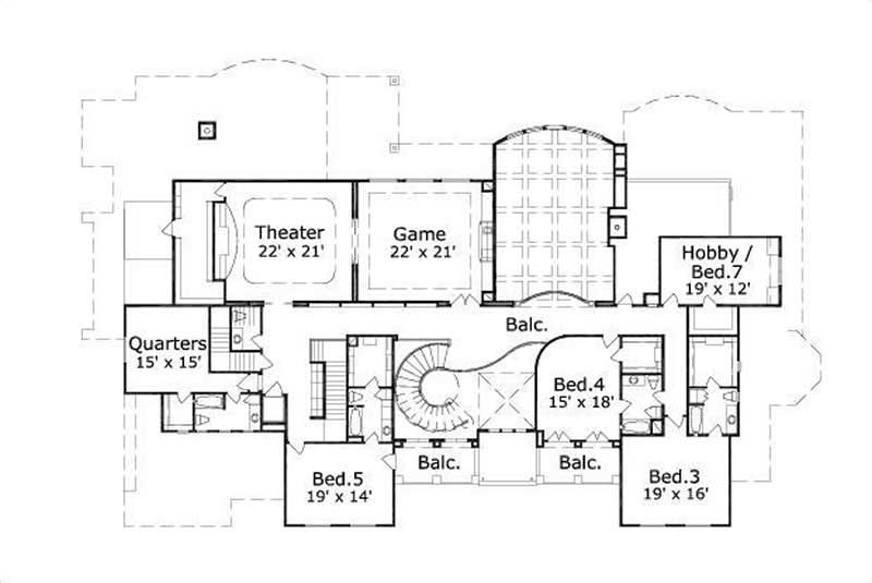
Floor Plans

MAIN LEVEL FLOOR PLAN
MAIN LEVEL FLOOR PLAN
SECOND LEVEL FLOOR PLAN
SECOND LEVEL FLOOR PLAN
Plan Collection

Can I modify this plan?

Yes! This plan can be customized—contact us for a free quote.

Additional Notes from Designer

CAD files may take up to 3 business days to receive - please contact us for availability.

House Plan Description

This home boasts an amazing interior and exterior. The living and dining areas are on the main level including the main level laundry room. The second-floor plan has a theater, game room, 3 bedrooms, and a hobby room. These luxury house plans have all the special commodities that luxury homeowners have come to know and love!

Home Details

Summary
Plan #:156-1554
Starting at:$1450.00
Floors:2
Bedrooms:7
Full Baths:7
Half Baths:2
Garage:
Square Footage
Heated Area:10560 Sq. Ft.
First Floor:6618 Sq. Ft.
Second Floor:3942 Sq. Ft.
Unheated Area:
Dimensions
Depth:81' 8''
Ridge Height:34'3' 0''
Architectural Styles
Exterior Wall Material
Stucco
Roofing Type
Hip
Ceiling Height
10 Foot Ceiling9 Foot Ceiling
Special Feature
Dining RoomGuest RoomHome OfficeMud RoomFamily RoomGame RoomMain Level LaundryLibraryHome TheaterWorkshopWine CellarBalconyExercise Room
Garage Type
Attached GarageSide Entry
Kitchen Features
Kitchen IslandNook/Breakfast Area
Porches and Exterior Features
Covered Front PorchCovered Rear Porch
Master Suite Features
Main Floor MasterMaster BathroomWalk In Closet

What’s Included

Most plan sets include the following:

icon text-secondary-400 includedExterior,

icon text-secondary-400 includedElevations

icon text-secondary-400 includedFloor Plans

icon text-secondary-400 includedElectrical Layout

icon text-secondary-400 includedBuilding Sections

icon text-secondary-400 includedRoofing Plan

icon text-secondary-400 includedInterior Elevations

icon text-secondary-400 includedGeneral Details

icon text-secondary-400 includedWall Sections

What’s Not Included

These items are  NOT included:

icon text-secondary-400 includedArchitectural or Engineering Stamp - handled locally if required.

icon text-secondary-400 includedSite Plan - handled locally when required.

icon text-secondary-400 includedMechanical Drawings (location of heating and air equipment and ductwork) - your subcontractors handle this.

icon text-secondary-400 includedPlumbing Drawings (drawings showing the actual plumbing pipe sizes and locations) - your subcontractors handle this.

icon text-secondary-400 includedEnergy calculations - handled locally when required.

Related House Plans

Plan Collection
Plan Collection
Plan Collection
Plan#107-1024
Starting at$2700
11027
Sq Ft
2
Story
7
Bed
7.5
Bath
4
Car
Plan Collection
Plan Collection
Plan Collection
Plan#106-1325
Starting at$4095
8628
Sq Ft
2
Story
7
Bed
7.5
Bath
5
Car
Plan Collection
Plan Collection
Plan Collection
Plan#156-1851
Starting at$1450
10754
Sq Ft
2
Story
7
Bed
7
Bath
3
Car
View All

Other Plans By This Designer

Plan Collection
Plan Collection
Plan Collection
Plan#156-1456
Starting at$1450
8541
Sq Ft
2
Story
5
Bed
5
Bath
4
Car
Plan Collection
Plan Collection
Plan Collection
Plan#156-1085
Starting at$1100
3900
Sq Ft
2
Story
4
Bed
3.5
Bath
3
Car
Plan Collection
Plan Collection
Plan Collection
Plan#156-1734
Starting at$1700
6775
Sq Ft
2
Story
6
Bed
4.5
Bath
2
Car