Estimate your costs based on your location and materials.
Yes! This plan can be customized—contact us for a free quote.

Yes! This plan can be customized—contact us for a free quote.
PLEASE NOTE!! For this designer, The PDF that comes with the PRINT Packages (5 set+PDF and 8 set+PDF) is NOT Modifiable - it is for printing ONLY!
PLEASE NOTE!! Optional Foundations (foundations that cost extra money) will take 5-10 business days to complete.
NOTE: Optional foundations may take an additional 5-10 business days to complete BEFORE they can be shipped out, regardless of the plan package or shipping method you order!
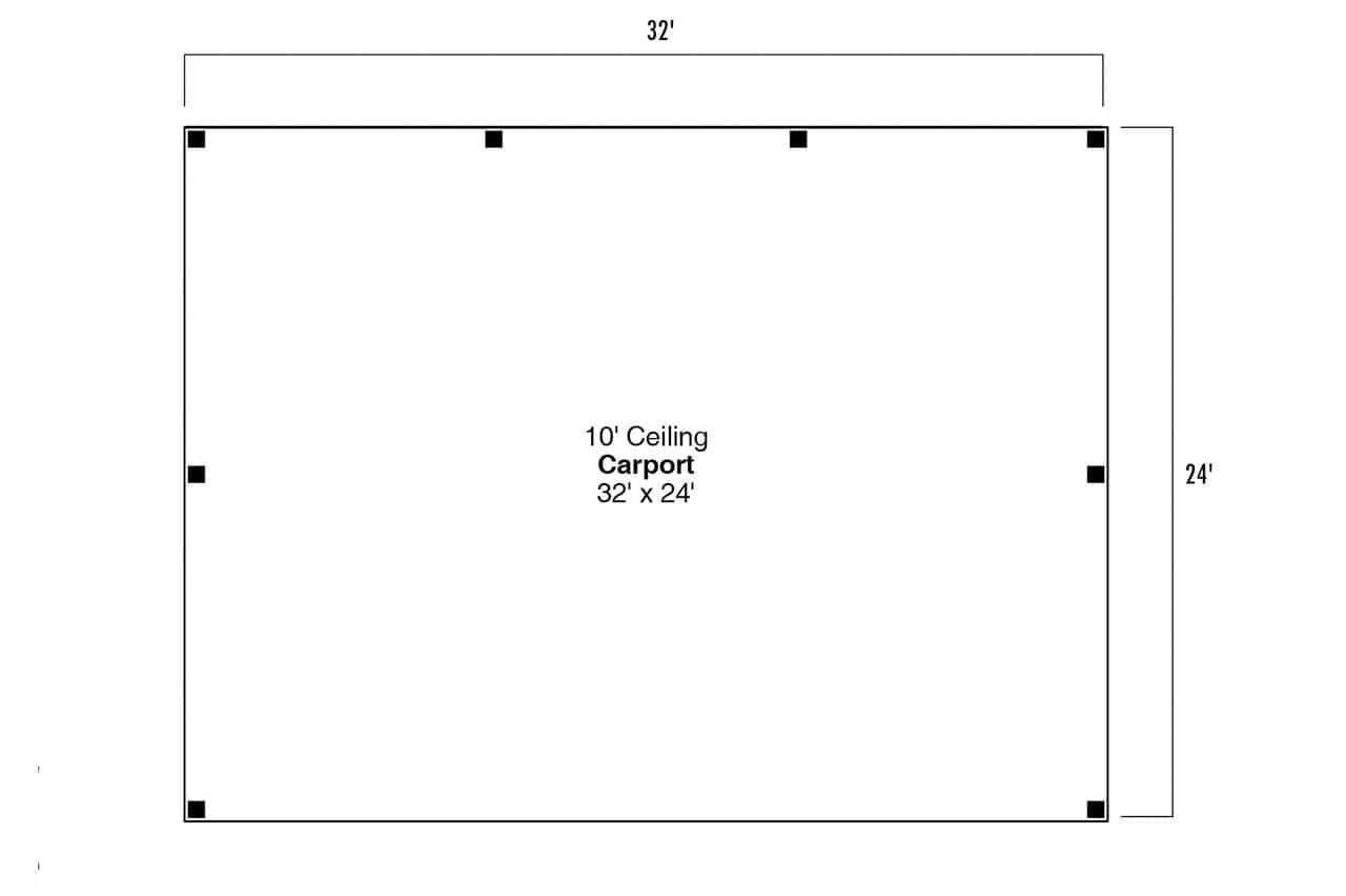
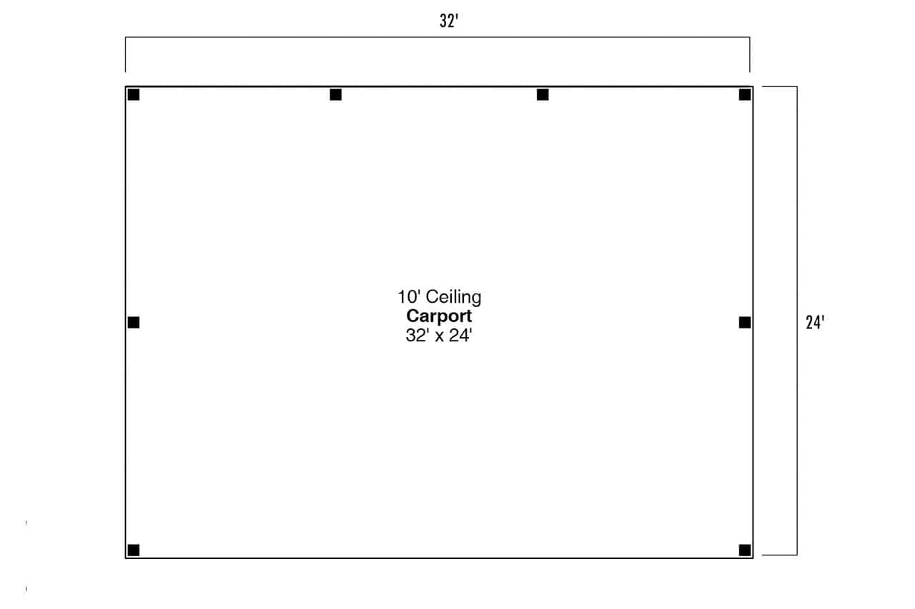
Classic charm meets everyday convenience in this 768-square-foot Traditional style garage plan, designed to house three vehicles with ease. Its timeless architectural details complement a variety of home styles, while the efficient layout ensures ample space for parking, storage, or even a small workshop. A perfect blend of beauty and practicality, this garage enhances both the function and value of your property.
Estimate your costs based on your location and materials.
All sales of house plans, modifications, and other products found on this site are final. No refunds or exchanges can be given once your order has begun the fulfillment process. Please see our Policies for additional information.
All plans offered on ThePlanCollection.com are designed to conform to the local building codes when and where the original plan was drawn.
The homes as shown in photographs and renderings may differ from the actual blueprints. For more detailed information, please review the floor plan images herein carefully.
Estimate your costs based on your location and materials.




