Estimate your costs based on your location and materials.
Yes! This plan can be customized—contact us for a free quote.



Yes! This plan can be customized—contact us for a free quote.
Please Note: The plans by this designer DO NOT include electrical plans or electrical layout plans. NOTE: If you are building this home in Washington State, please contact us BEFORE placing your order!
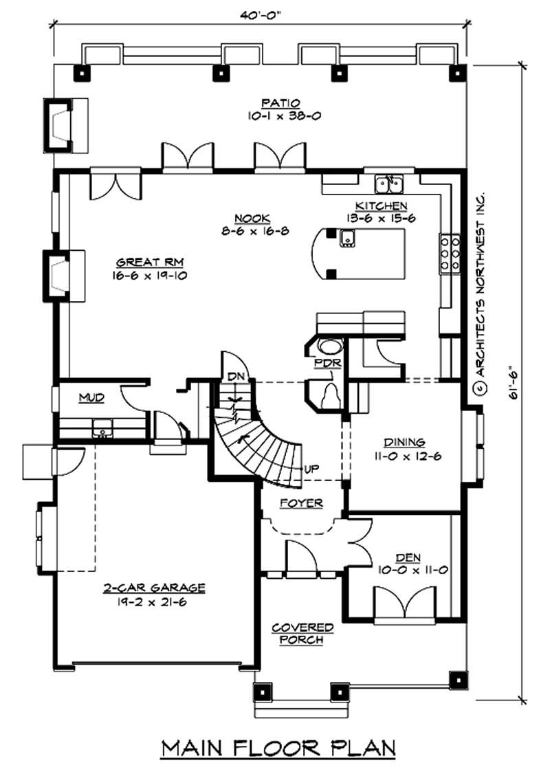
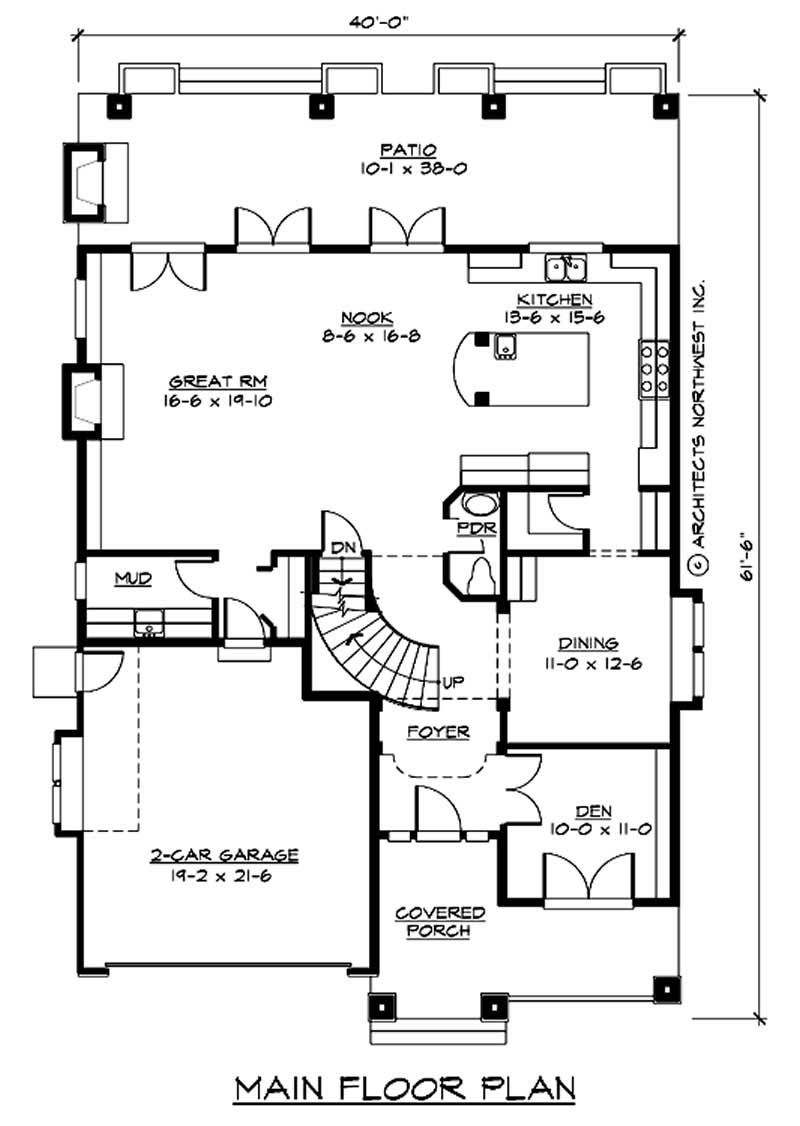
SPS 2823 is a definite party pleaser. Guests and family alike are greeted by a foyer, which looks onto a grand staircase to the second floor. French doors open to a library/den/study, and French doors open from the den to the spacious Craftsman front porch; one of the staples of a true home of the category. This home offers a formal dining room conveniently located off of the kitchen and butlers kitchen. Two fireplaces on the main floor will keep you, your family, and guests warm inside the great room, or outside on the patio. A large mudroom and coat closet greet this home’s occupants...
Estimate your costs based on your location and materials.
All sales of house plans, modifications, and other products found on this site are final. No refunds or exchanges can be given once your order has begun the fulfillment process. Please see our Policies for additional information.
All plans offered on ThePlanCollection.com are designed to conform to the local building codes when and where the original plan was drawn.
The homes as shown in photographs and renderings may differ from the actual blueprints. For more detailed information, please review the floor plan images herein carefully.
Estimate your costs based on your location and materials.




