1-Bedroom, 1520 Sq Ft Garage Plan with Outdoor Kitchen

Front view of Garage home (ThePlanCollection: House Plan #145-2000)

Images/Plans copyrighted by designer. Photos may reflect homeowner modifications.

About House Plan #145-2000

Sq Ft
1520
Sq Ft
Bedrooms
0
Bedrooms
Bathroom
0
Baths
Half Baths
0
Half Baths
Bedrooms
3
Cars
Bedrooms
1
Stories
Bedrooms
38' 0'
Width
Bedrooms
40
Depth
Starting at$350.00What's included
STEP 1Bedrooms
STEP 2Bedrooms
STEP 3Bedrooms

Subtotal:$0
BedroomsBest Price Guaranteed
Plan Collection

How much will it cost to build?

Estimate your costs based on your location and materials.

Free Cost Instant Estimator

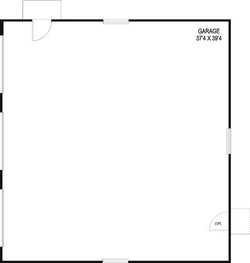
Floor Plans

FLOOR PLAN
FLOOR PLAN
Plan Collection

Can I modify this plan?

Yes! This plan can be customized—contact us for a free quote.

Additional Notes from Designer

NOTE: Due to a family emergency, NO modifications are available with this designer at this time. If you would like to purchase a CAD or Right Reading Reverse, please contact us for availability and price as not all plans are available in CAD or RRR.

House Plan Description

This charming garage design with traditional design attributes has 1520 square feet of living space. The one story floor plan includes 0 bedrooms.

Home Details

Summary
Plan #:145-2000
Starting at:$350.00
Floors:1
Bedrooms:0
Full Baths:0
Half Baths:0
Garage:
Square Footage
Heated Area:1520 Sq. Ft.
Unheated Area:
Garage:1520 Sq. Ft.
Dimensions
Ridge Height:16' 0''
Architectural Styles
Roof Pitch
4/126/128/12
Ceiling Height
9 Foot Ceiling
Garage Type
Detached Garage
Exterior Wall Framing
2x6
Building Lot Type
Narrow Lot Design

What’s Included

Most plan sets include the following:

icon text-secondary-400 includedFloor plans

icon text-secondary-400 includedFoundations

icon text-secondary-400 includedElevations

icon text-secondary-400 includedFraming

icon text-secondary-400 includedElectrical

icon text-secondary-400 includedRoofing

icon text-secondary-400 includedDetailed Construction Notes

What’s Not Included

These items are  NOT included:

icon text-secondary-400 includedArchitectural or Engineering Stamp - handled locally if required.

icon text-secondary-400 includedSite Plan - handled locally when required.

icon text-secondary-400 includedMechanical Drawings (location of heating and air equipment and ductwork) - your subcontractors handle this.

icon text-secondary-400 includedPlumbing Drawings (drawings showing the actual plumbing pipe sizes and locations) - your subcontractors handle this.

icon text-secondary-400 includedEnergy calculations - handled locally when required.

Related House Plans

Plan Collection
Plan Collection
Plan Collection
Plan#132-1449
Starting at$930
1200
Sq Ft
1
Story
0
Bed
0
Bath
3
Car
Plan Collection
Plan Collection
Plan Collection
Plan#100-1131
Starting at$700
1256
Sq Ft
1
Story
0
Bed
0
Bath
3
Car
Plan Collection
Plan Collection
Plan Collection
Plan#100-1048
Starting at$700
1256
Sq Ft
1
Story
0
Bed
0
Bath
3
Car
View All

Other Plans By This Designer

Plan Collection
Plan Collection
Plan Collection
Plan#145-1200
Starting at$900
1746
Sq Ft
1
Story
3
Bed
2
Bath
2
Car
Plan Collection
Plan Collection
Plan Collection
Plan#145-1488
Starting at$950
2338
Sq Ft
1
Story
6
Bed
4
Bath
2
Car
Plan Collection
Plan Collection
Plan Collection
Plan#145-1442
Starting at$800
770
Sq Ft
1
Story
2
Bed
1
Bath
0
Car