Estimate your costs based on your location and materials.
Yes! This plan can be customized—contact us for a free quote.


Yes! This plan can be customized—contact us for a free quote.
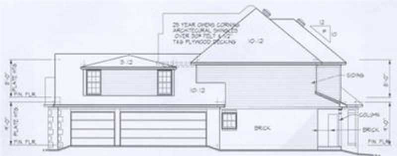
This great home plan has four bedrooms, 2.5 baths, and an attached side-entry three-car garage. Front foyer has access to formal dining room and living room. Large eating area, kitchen with island. Spacious master bedroom with bathroom lining left side of house. Upper level has Three bedrooms, office, and bonus area.
Estimate your costs based on your location and materials.
All sales of house plans, modifications, and other products found on this site are final. No refunds or exchanges can be given once your order has begun the fulfillment process. Please see our Policies for additional information.
All plans offered on ThePlanCollection.com are designed to conform to the local building codes when and where the original plan was drawn.
The homes as shown in photographs and renderings may differ from the actual blueprints. For more detailed information, please review the floor plan images herein carefully.
Estimate your costs based on your location and materials.




