Estimate your costs based on your location and materials.
Yes! This plan can be customized—contact us for a free quote.

Yes! This plan can be customized—contact us for a free quote.
NOTE: Due to a family emergency, NO modifications are available with this designer at this time. If you would like to purchase a CAD or Right Reading Reverse, please contact us for availability and price as not all plans are available in CAD or RRR.
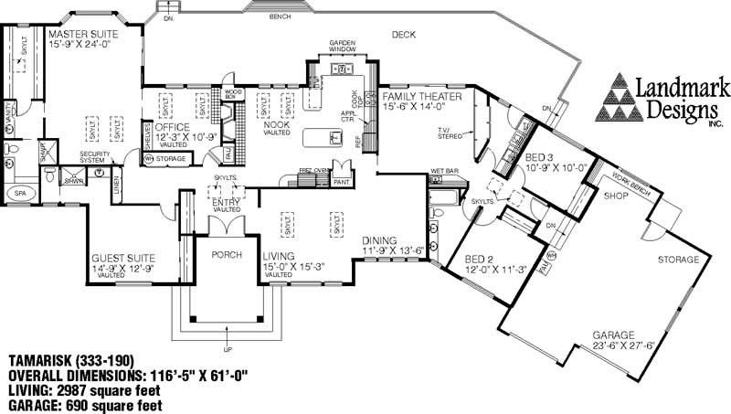
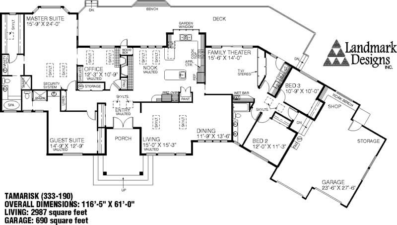
This beautiful ranch style home has 2987 square feet of living space. The one story floor plan includes 5 bedrooms.
Estimate your costs based on your location and materials.
All sales of house plans, modifications, and other products found on this site are final. No refunds or exchanges can be given once your order has begun the fulfillment process. Please see our Policies for additional information.
All plans offered on ThePlanCollection.com are designed to conform to the local building codes when and where the original plan was drawn.
The homes as shown in photographs and renderings may differ from the actual blueprints. For more detailed information, please review the floor plan images herein carefully.
Estimate your costs based on your location and materials.

