Estimate your costs based on your location and materials.
Yes! This plan can be customized—contact us for a free quote.


Yes! This plan can be customized—contact us for a free quote.
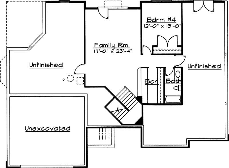
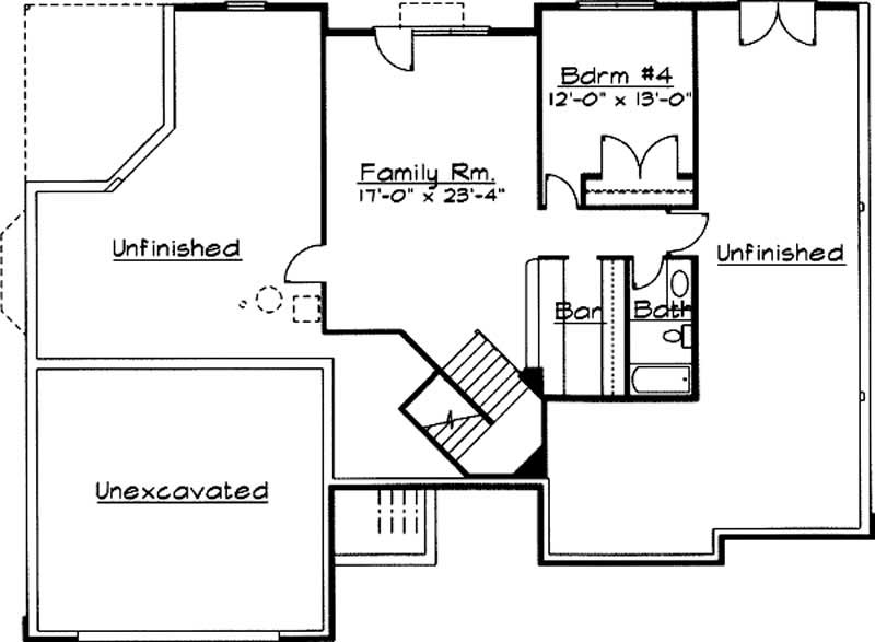
The Claymont offers a spacious feel with it's 9' ceiling s throughout the main level as well as the raised ceilings in the Entry and Great Room. You'll also enjoy this house plans features like the main level laundry conveniently located by the bedrooms, the unique entry, screened porch and formal dining as well as breakfast nook.
Estimate your costs based on your location and materials.
All sales of house plans, modifications, and other products found on this site are final. No refunds or exchanges can be given once your order has begun the fulfillment process. Please see our Policies for additional information.
All plans offered on ThePlanCollection.com are designed to conform to the local building codes when and where the original plan was drawn.
The homes as shown in photographs and renderings may differ from the actual blueprints. For more detailed information, please review the floor plan images herein carefully.
Estimate your costs based on your location and materials.



