6-Bedroom, 6858 Sq Ft Georgian Plan with Covered Front Porch

Front elevation of Georgian home (ThePlanCollection: House Plan #196-1023)

Images/Plans copyrighted by designer. Photos may reflect homeowner modifications.

About House Plan #196-1023

Sq Ft
6858
Sq Ft
Bedrooms
6
Bedrooms
Bathroom
4
Baths
Half Baths
1
Half Baths
Bedrooms
3
Cars
Bedrooms
2
Stories
Bedrooms
87' 0'
Width
Bedrooms
120
Depth
Starting at$3225.00What's included
STEP 1Bedrooms
STEP 2Bedrooms
STEP 3Bedrooms

Subtotal:$0
Plan Collection

How much will it cost to build?

Estimate your costs based on your location and materials.

Free Cost Instant Estimator

Floor Plans

Floor Plan Main Level
Floor Plan Main Level
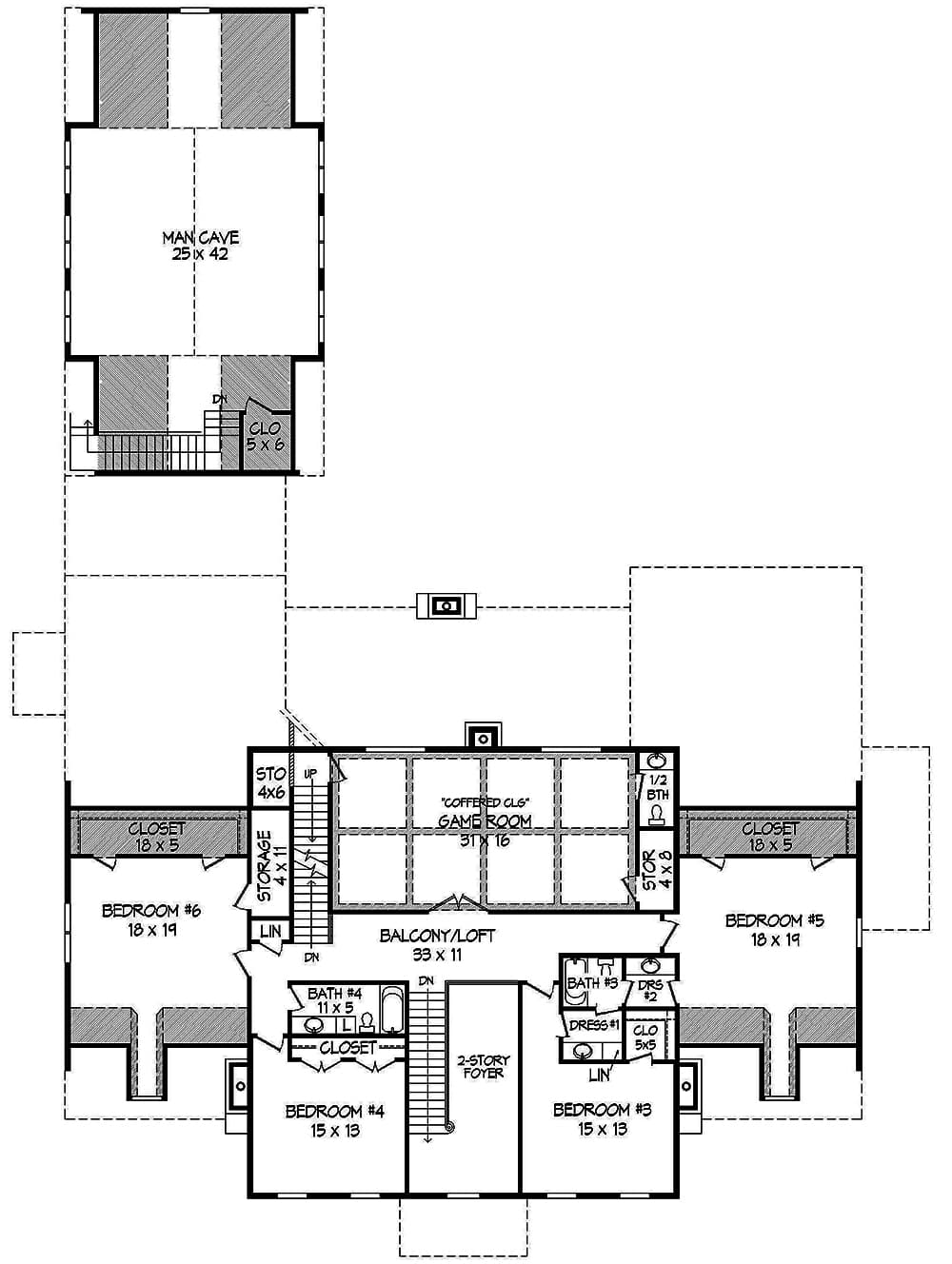
Floor Plan Upper Level
Floor Plan Upper Level
Plan Collection

Can I modify this plan?

Yes! This plan can be customized—contact us for a free quote.

Additional Notes from Designer

NOTE FROM DESIGNER REGARDING PLAN PURCHASES: 80% of a 5 set purchase price can be applied to any PDF or CAD license upgrade. Additionally, 80% of PDF Study purchase price can be applied to any CAD or PDF license upgrade.

House Plan Description

This lovely Georgian style home with Colonial influences (House Plan #196-1023) has 6858 square feet of living space. The 2 story floor plan includes 5 bedrooms.

Home Details

Summary
Plan #:196-1023
Starting at:$3225.00
Floors:2
Bedrooms:6
Full Baths:4
Half Baths:1
Garage:
Square Footage
Heated Area:6858 Sq. Ft.
First Floor:4287 Sq. Ft.
Second Floor:2571 Sq. Ft.
Unheated Area:
Garage:1228 Sq. Ft.
Porch:822 Sq. Ft.
Dimensions
Depth:120' 8''
Ridge Height:37' 0''
Architectural Styles
Exterior Wall Material
Vinyl SidingBrickWood Siding
Roofing Type
Gable/Dormer
Roofing Material
Asphalt Shingles
Ceiling Height
10 Foot Ceiling9 Foot Ceiling
Special Feature
FireplaceDining RoomHome OfficeMud RoomFamily RoomGame RoomMain Level LaundryLoftSplit BathroomStorageBalcony
Garage Type
Detached GarageSide Entry
Fireplaces
Two Fireplaces
Exterior Wall Framing
2x6
Kitchen Features
Kitchen IslandButler's PantryNook/Breakfast AreaWalk-in PantryPeninsula/Eating BarEat-In Kitchen
Porches and Exterior Features
BreezewayCovered Front PorchCovered Rear PorchFriend's EntryPatio
Master Suite Features
Main Floor MasterMaster BathroomWalk In Closet

What’s Included

Most plan sets include the following:

icon text-secondary-400 includedFloor Plans: Floor plan drawings indicating dimensions for construction

icon text-secondary-400 includedRoof Plan: Drawings indicating roof slopes and unique conditions

icon text-secondary-400 includedExterior Elevations: Drawings showing appearance and the types of materials used for the exterior finish and trim

icon text-secondary-400 includedBuilding Sections: Drawings cut through important locations in the structure

icon text-secondary-400 includedConstruction Details: Drawings showing specific construction of building elements at a large scale

icon text-secondary-400 includedElectrical Plans: Basic electrical layout (suggested locations of fixtures, switches, and outlets)

icon text-secondary-400 includedFoundation Plan: Dimensioned drawings describing specific foundation conditions for the structure

icon text-secondary-400 includedA building license: A single-use license for construction at one location only

icon text-secondary-400 includedOur plans are designed to meet national building codes

What’s Not Included

These items are  NOT included:

icon text-secondary-400 includedWe do not guarantee our plans will meet all local building requirements or building codes influenced by local geographic or climatic factors. It is the responsibility of the owner or builder to ensure these plans comply with city, county, municipal, and/or state/provincial building codes.

icon text-secondary-400 includedYour plans will not be sealed or stamped by an engineer or architect. It is the owner’s (or builder’s) responsibility to hire a local professional to review and seal or stamp the plans if required by the building department. This must be handled by an engineer or architect licensed in the state/province where the plan is to be built.

Related House Plans

Plan Collection
Plan Collection
Plan Collection
Plan#107-1058
Starting at$1900
6170
Sq Ft
2
Story
6
Bed
4.5
Bath
3
Car
Plan Collection
Plan Collection
Plan Collection
Plan#175-1009
Starting at$2400
5164
Sq Ft
2
Story
6
Bed
4.5
Bath
3
Car
Plan Collection
Plan Collection
Plan Collection
Plan#153-1008
Starting at$1350
6089
Sq Ft
2
Story
6
Bed
4.5
Bath
3
Car
View All

Other Plans By This Designer

Plan Collection
Plan Collection
Plan Collection
Plan#196-1211
Starting at$715
650
Sq Ft
2
Story
1
Bed
1
Bath
2
Car
Plan Collection
Plan Collection
Plan Collection
Plan#196-1216
Starting at$865
1727
Sq Ft
2
Story
2
Bed
2
Bath
2
Car
Plan Collection
Plan Collection
Plan Collection
Plan#196-1213
Starting at$825
1402
Sq Ft
2
Story
2
Bed
3
Bath
4
Car