Estimate your costs based on your location and materials.
Yes! This plan can be customized—contact us for a free quote.


Yes! This plan can be customized—contact us for a free quote.
On some plans, Basement Foundations, Walkout Basement Foundations, & 2x6 Conversions could take up to ONE WEEK to produce. Materials Lists could take up to FOUR WEEKS to produce and they will be for the ORIGINAL plan! Any modifications will NOT be reflected on the Materials List. NOTE FROM DESIGNER: If you purchase a CAD, you will automatically receive the unlimited build license - no need to purchase separately!
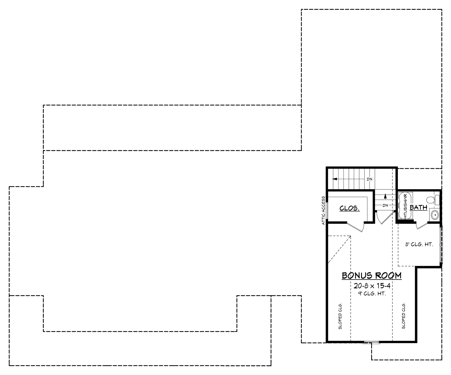
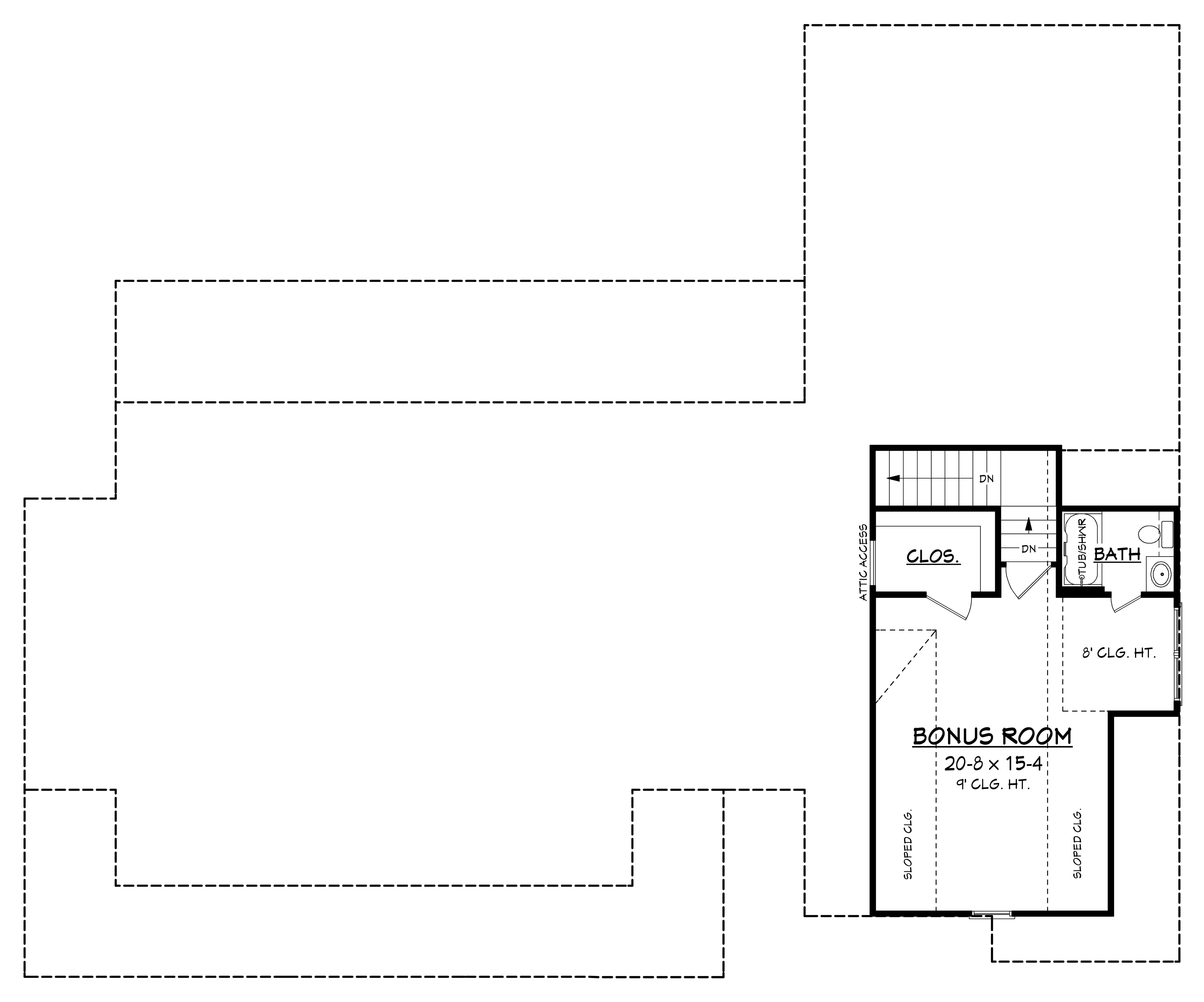
Please note: The total square footage for this plan is 4178.
This modern farmhouse-style home with 3 bedrooms and 2.5 baths offers true Southern comfort for a country home. The wraparound porch and rear porch allow family and friends to enjoy the lemonade and the outdoors (Plan #142-1180). The foyer opens up the home and to the right is the dining area. Just ahead is the spacious great room with built-ins and an impressive fireplace. The rear porch is just beyond the great room allowing natural light to flow throughout the home. The open-concept kitchen looks out to the great room with an eating bar within easy reach, perfect for a quick family...
Estimate your costs based on your location and materials.
All sales of house plans, modifications, and other products found on this site are final. No refunds or exchanges can be given once your order has begun the fulfillment process. Please see our Policies for additional information.
All plans offered on ThePlanCollection.com are designed to conform to the local building codes when and where the original plan was drawn.
The homes as shown in photographs and renderings may differ from the actual blueprints. For more detailed information, please review the floor plan images herein carefully.
Estimate your costs based on your location and materials.




















