4-6 Bedroom, 3302-5020 Sq Ft European Plan with 5-Car Garage

European home (ThePlanCollection: Plan #106-1292)

Images/Plans copyrighted by designer. Photos may reflect homeowner modifications.

About House Plan #106-1292

Sq Ft
3302
Sq Ft
Bedrooms
4
Bedrooms
Bathroom
4
Baths
Half Baths
1
Half Baths
Bedrooms
5
Cars
Bedrooms
2
Stories
Bedrooms
143' 0'
Width
Bedrooms
68
Depth
Starting at$1695.00What's included
STEP 1Bedrooms
STEP 2Bedrooms
STEP 3Bedrooms

Subtotal:$0
Plan Collection

How much will it cost to build?

Estimate your costs based on your location and materials.

Free Cost Instant Estimator

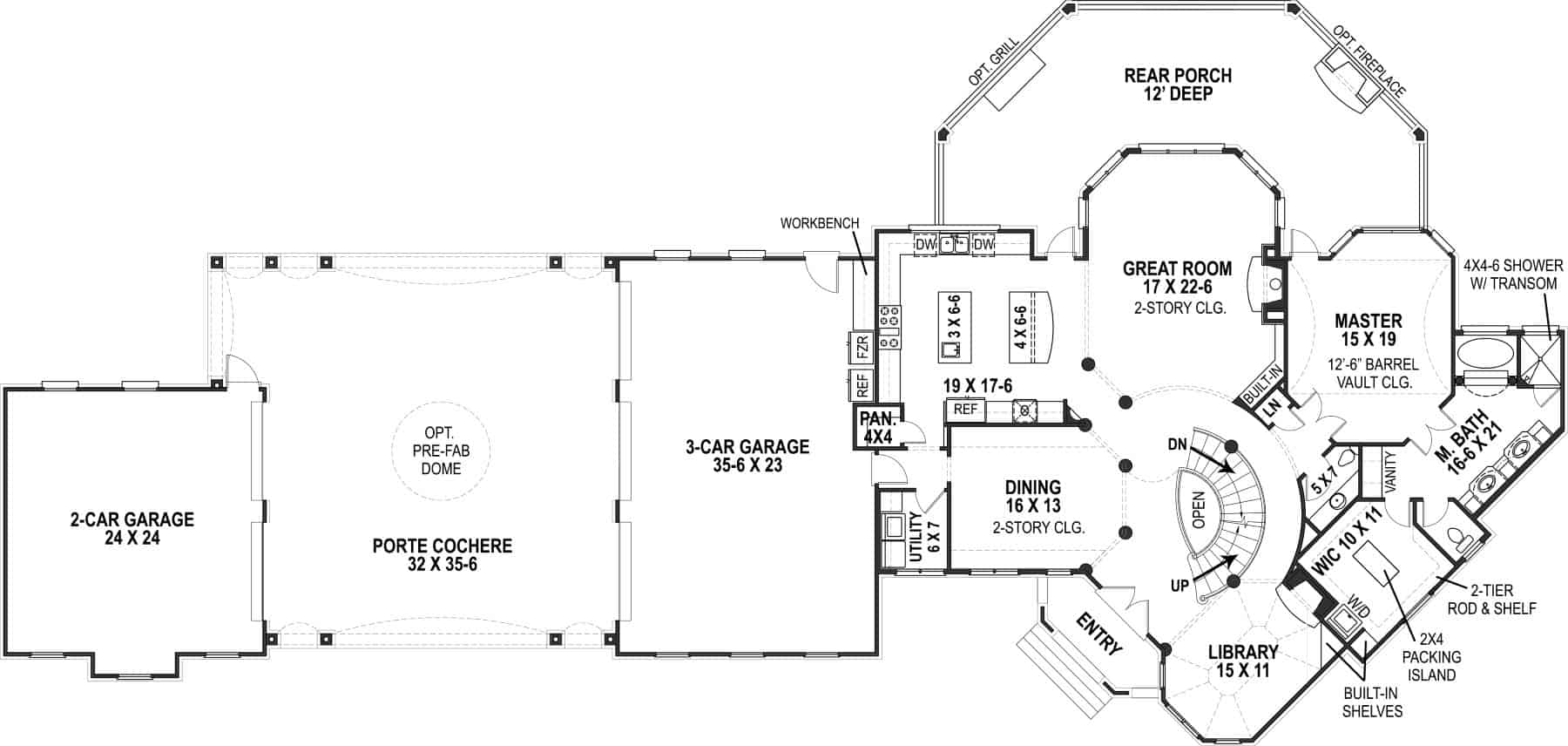
Floor Plans

Floor Plan First Story
Floor Plan First Story
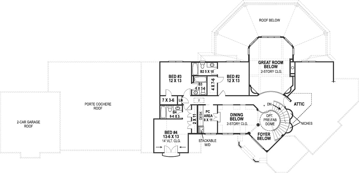
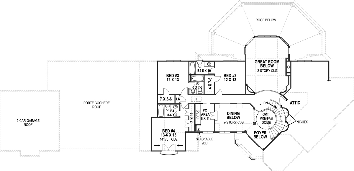
Floor Plan Upper Level
Floor Plan Upper Level
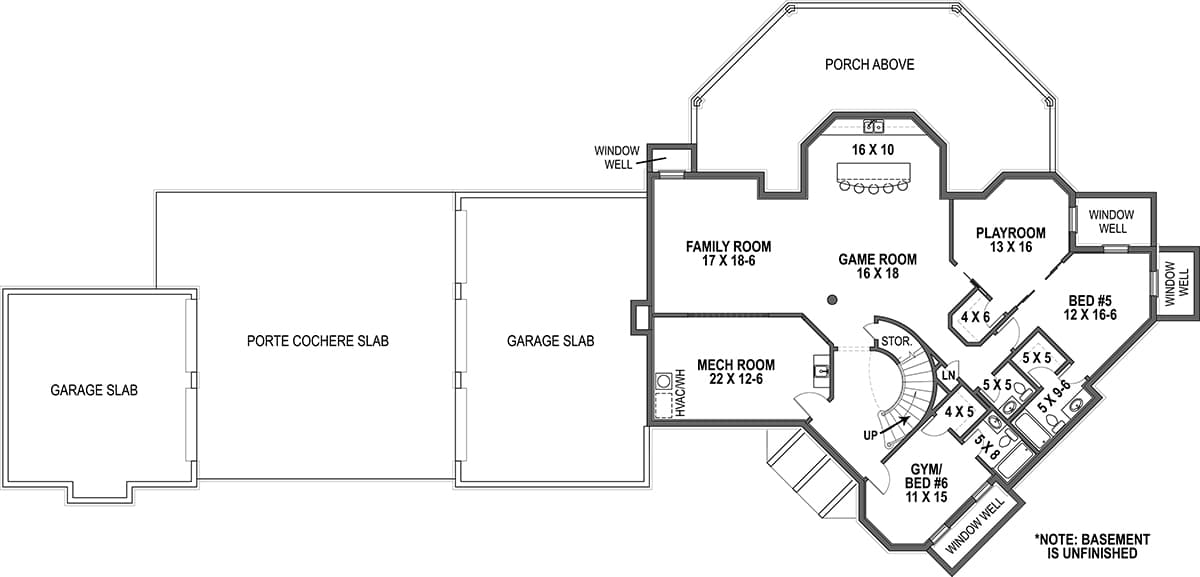
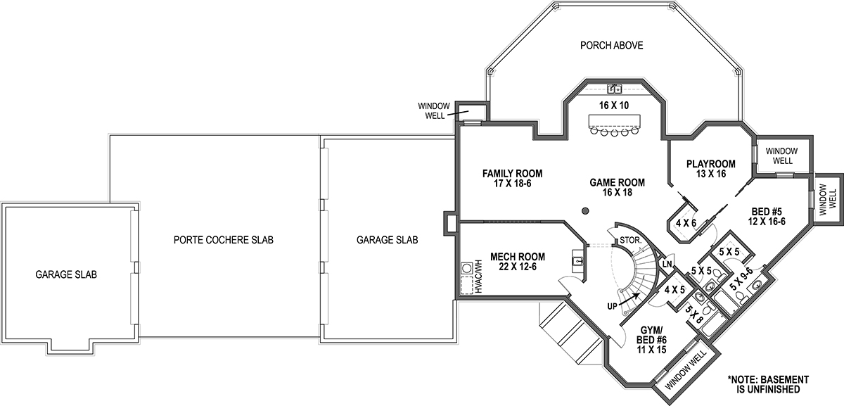
Basement Option Layout
Basement Option Layout
Plan Collection

Can I modify this plan?

Yes! This plan can be customized—contact us for a free quote.

Additional Notes from Designer

The plans by this designer do NOT include framing. PLEASE NOTE: An Unlimited Use License is available for purchase through the designer BUT YOU MUST purchase a CAD package!

Note: There is an unfinished basement option for this home. If selected and finished, the basement adds an additional 1707 living sq ft to the home, including two bedrooms and 2.5 bathrooms — for a total of 5020 living sq ft, 6 bedrooms, 6 bathrooms, and 2 half-baths.

House Plan Description

Attention to detail and smart design define this impressive European-style manor with French influences. As you approach from the driveway, leave your car under the porte-cochere or park it in one of the 5-bay-garage spaces.

  • As for the interior, the 2-story floor plan has 3302 square feet of living space, 4 bedrooms, and 4.5 bathrooms. 
  • There is an unfinished basement option for the home. If finished, the basement adds an additional 1707 living sq ft to the home, including two bedrooms and 2.5 bathrooms — for a total of 5020 living sq ft, 6...

Read More

Home Details

Summary
Plan #:106-1292
Starting at:$1695.00
Floors:2
Bedrooms:4
Full Baths:4
Half Baths:1
Garage:
Square Footage
Heated Area:3302 Sq. Ft.
First Floor:2201 Sq. Ft.
Second Floor:1101 Sq. Ft.
Unheated Area:
Basement:1718 Sq. Ft.
Garage:1462 Sq. Ft.
Porch:476 Sq. Ft.
Dimensions
Ridge Height:40' 0''
Architectural Styles
Exterior Wall Material
BrickRock/Stone
Roofing Type
GableHip
Roofing Material
Asphalt Shingles
Ceiling Height
10 Foot Ceiling9 Foot Ceiling
Special Feature
In Home GymFireplaceDining RoomFamily RoomGame RoomMain Level LaundryLibraryVaulted CeilingsWorkshopOpen Floor PlanInterior PhotosInterior Photos
Garage Type
Attached GarageDetached GarageSide Entry
Fireplaces
Three Fireplaces
Kitchen Features
Kitchen IslandNook/Breakfast AreaWalk-in PantryPeninsula/Eating BarEat-In Kitchen
Porches and Exterior Features
Covered Front PorchCovered Rear PorchPorte-Cochere
Master Suite Features
Main Floor MasterMaster BathroomWalk In ClosetSitting AreaSplit Master Bedroom

What’s Included

Most plan sets include the following:

icon text-secondary-400 includedFoundation Plan

icon text-secondary-400 includedFloor plans

icon text-secondary-400 includedElectrical layout

icon text-secondary-400 includedExterior elevations

icon text-secondary-400 includedCross-section

icon text-secondary-400 includedTypical Call detail

icon text-secondary-400 includedTypical footing detail

icon text-secondary-400 includedMiscellaneous details

icon text-secondary-400 includedWindow/Door sizes

icon text-secondary-400 includedRoof plan

What’s Not Included

These items are  NOT included:

icon text-secondary-400 includedFraming.

icon text-secondary-400 includedArchitectural or Engineering Stamp - handled locally if required.

icon text-secondary-400 includedSite Plan - handled locally when required.

icon text-secondary-400 includedMechanical Drawings (location of heating and air equipment and ductwork) - your subcontractors handle this.

icon text-secondary-400 includedPlumbing Drawings (drawings showing the actual plumbing pipe sizes and locations) - your subcontractors handle this.

icon text-secondary-400 includedEnergy calculations - handled locally when required.

Related House Plans

Plan Collection
Plan Collection
Plan Collection
Plan#142-1140
Starting at$1595
3360
Sq Ft
2
Story
4
Bed
4.5
Bath
3
Car
Plan Collection
Plan Collection
Plan Collection
Plan#136-1030
Starting at$2250
3716
Sq Ft
2
Story
4
Bed
4.5
Bath
3
Car
Plan Collection
Plan Collection
Plan Collection
Plan#134-1011
Starting at$0
3732
Sq Ft
2
Story
4
Bed
4
Bath
2
Car
View All

Other Plans By This Designer

Plan Collection
Plan Collection
Plan Collection
Plan#106-1325
Starting at$4095
8628
Sq Ft
2
Story
7
Bed
7.5
Bath
5
Car
Plan Collection
Plan Collection
Plan Collection
Plan#106-1315
Starting at$1695
2830
Sq Ft
1
Story
3
Bed
2.5
Bath
3
Car
Plan Collection
Plan Collection
Plan Collection
Plan#106-1206
Starting at$4095
8210
Sq Ft
2
Story
6
Bed
6.5
Bath
4
Car