Estimate your costs based on your location and materials.
Yes! This plan can be customized—contact us for a free quote.

Yes! This plan can be customized—contact us for a free quote.
PLEASE NOTE!! For this designer, The PDF that comes with the PRINT Packages (5 set+PDF and 8 set+PDF) is NOT Modifiable - it is for printing ONLY! PLEASE NOTE!! Optional Foundations (foundations that cost extra money) will take 5-10 business days to complete.
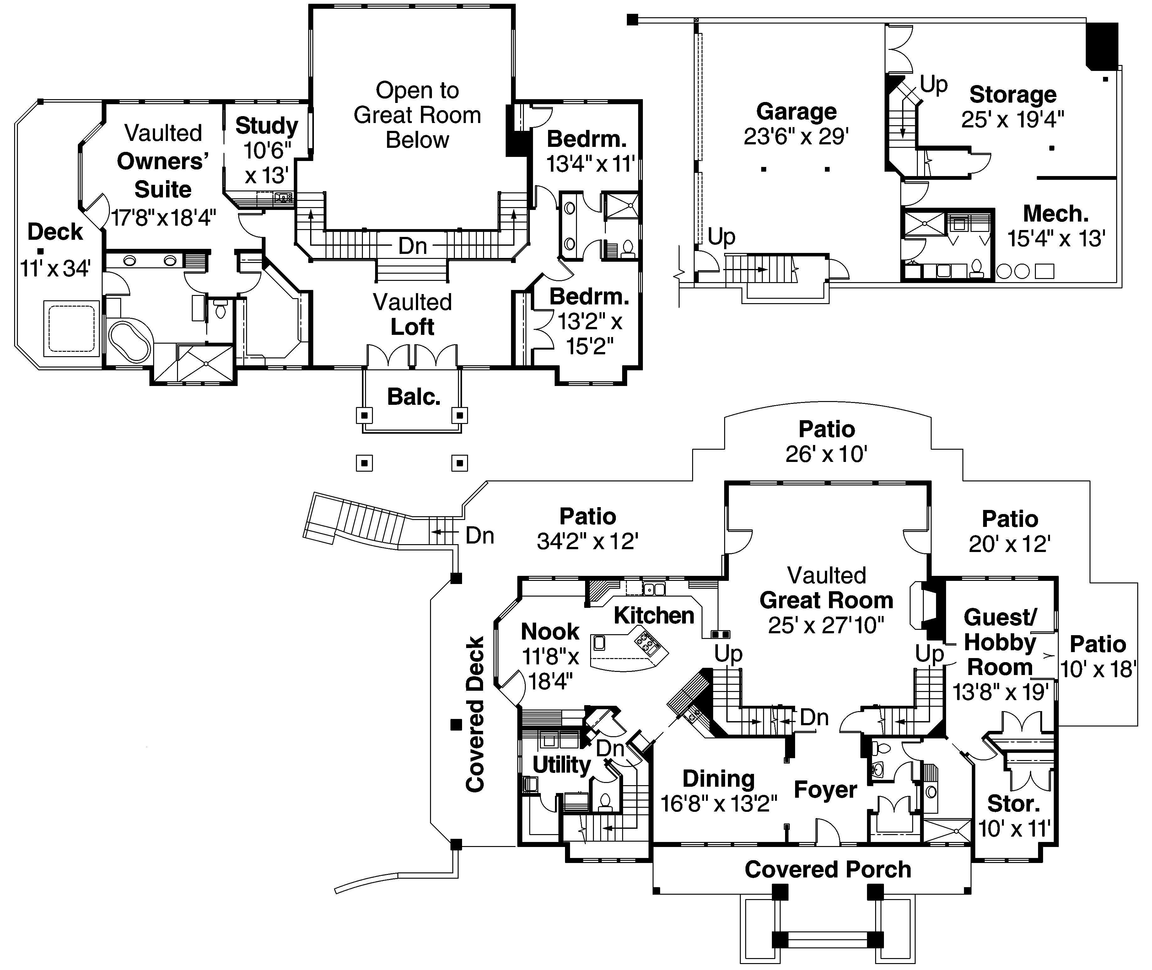
Soaring arches blend with custom stone masonry in the home, creating a visually intriguing front façade. Decorative gable supports and Craftsman-style windows add to the allure. Bright and spacious gathering spaces fill most of the ground floor in this estate-size, three-level plan. Bedrooms are upstairs, and a three-car garage, plus a wealth of extra storage space, are below, accessed via a down-sloping driveway on the left. Natural light washes into the lofty foyer through sidelights and an elliptical arched transom. Straight ahead is a vaulted, richly glassed great room. On the...
Estimate your costs based on your location and materials.
All sales of house plans, modifications, and other products found on this site are final. No refunds or exchanges can be given once your order has begun the fulfillment process. Please see our Policies for additional information.
All plans offered on ThePlanCollection.com are designed to conform to the local building codes when and where the original plan was drawn.
The homes as shown in photographs and renderings may differ from the actual blueprints. For more detailed information, please review the floor plan images herein carefully.
Estimate your costs based on your location and materials.

