Estimate your costs based on your location and materials.
Yes! This plan can be customized—contact us for a free quote.


Yes! This plan can be customized—contact us for a free quote.
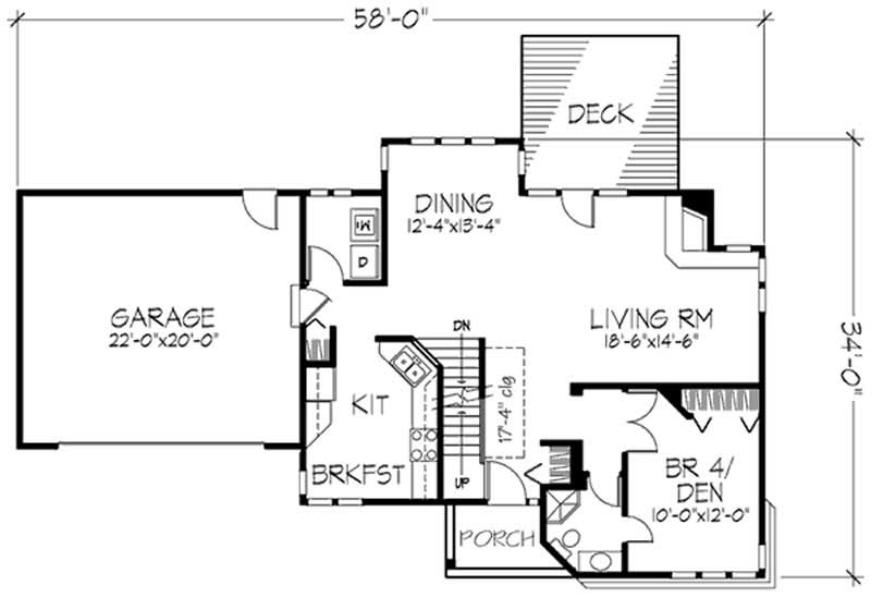
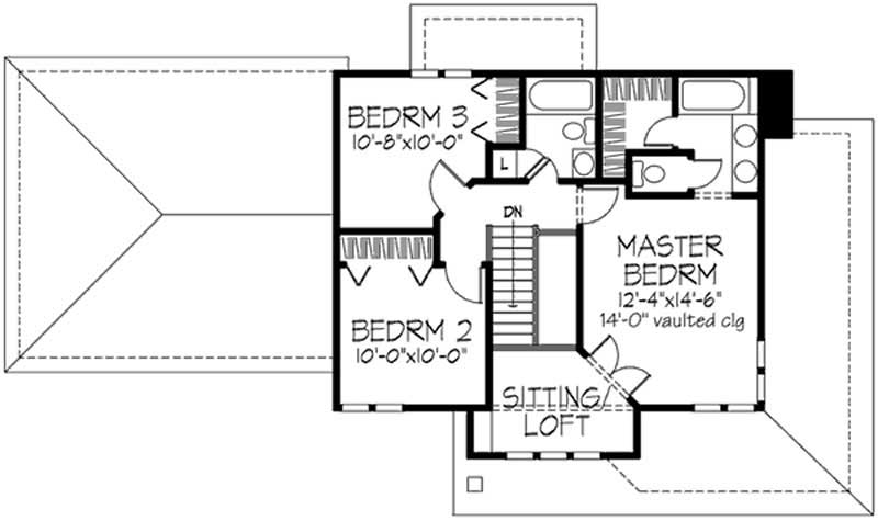
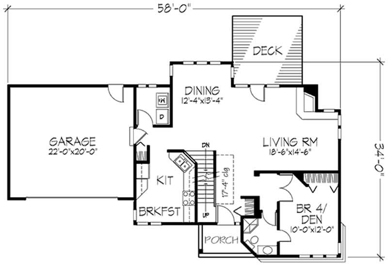
This home's excitement begins on the covered wood porch and continues inside with a two-story stair tower and long views to the rear deck through the living room's French doors. The kitchen features a sunny breakfast room with corner windows, and has handy access to the attached double garage through the mud/laundry area. Upstairs, a spacious, vaulted master suite with a private bath and a sitting area is flanked by two additional bedrooms and a second full bath.
Estimate your costs based on your location and materials.
All sales of house plans, modifications, and other products found on this site are final. No refunds or exchanges can be given once your order has begun the fulfillment process. Please see our Policies for additional information.
All plans offered on ThePlanCollection.com are designed to conform to the local building codes when and where the original plan was drawn.
The homes as shown in photographs and renderings may differ from the actual blueprints. For more detailed information, please review the floor plan images herein carefully.
Estimate your costs based on your location and materials.


