Estimate your costs based on your location and materials.
Yes! This plan can be customized—contact us for a free quote.


Yes! This plan can be customized—contact us for a free quote.
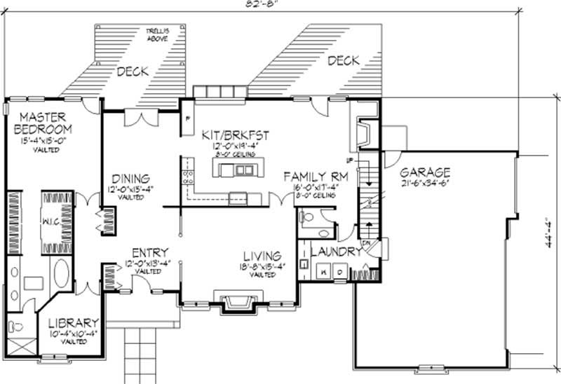
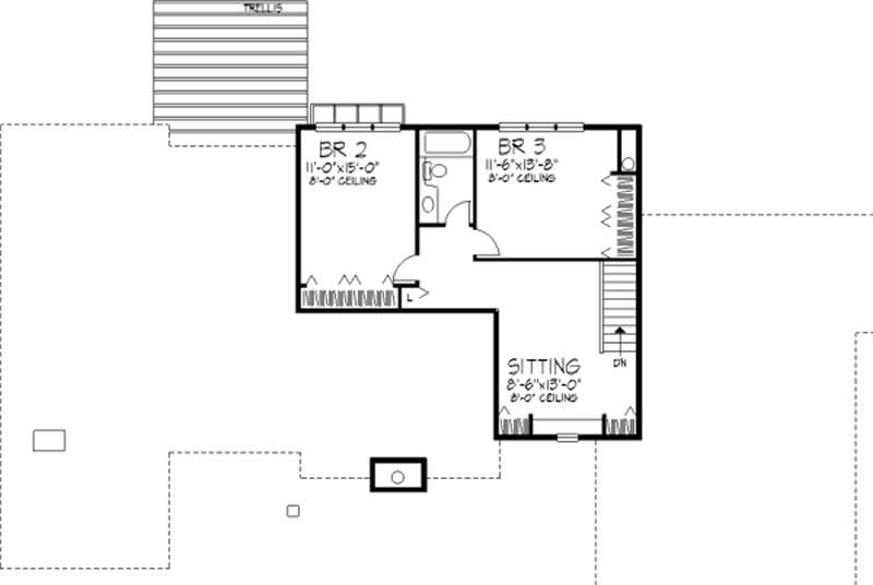
This exciting luxury home is bursting with features. Its main-level adult wing is buffered from the upstairs bedrooms and sitting/TV room. Entertaining is easy in the formal dining and living rooms or the separate, informal eat-in kitchen and the family room. Guests will be welcomed by a dramatic view from the vaulted entry through the dining room to the deck.
Estimate your costs based on your location and materials.
All sales of house plans, modifications, and other products found on this site are final. No refunds or exchanges can be given once your order has begun the fulfillment process. Please see our Policies for additional information.
All plans offered on ThePlanCollection.com are designed to conform to the local building codes when and where the original plan was drawn.
The homes as shown in photographs and renderings may differ from the actual blueprints. For more detailed information, please review the floor plan images herein carefully.
Estimate your costs based on your location and materials.


