Estimate your costs based on your location and materials.
Yes! This plan can be customized—contact us for a free quote.


Yes! This plan can be customized—contact us for a free quote.
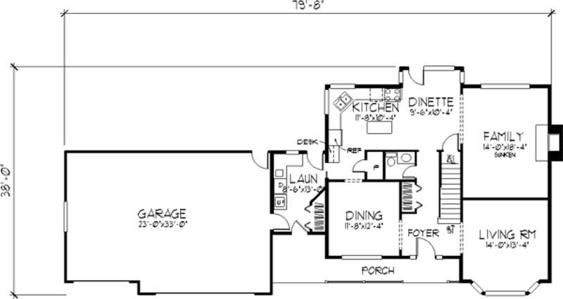
The fishscale shingles and nostalgic front porch are reminiscent nods to the Victorian era, yet this home would fit into any modern neighborhood. The vaulted breakfast nook offers a casual alternative to taking meals in the formal dining room. Family and friends will enjoy gathering around the fireplace in the sunken family room. The sleeping quarters lie upstairs, including the deluxe master suite with a boxed-out window and a private alcove.
Estimate your costs based on your location and materials.
All sales of house plans, modifications, and other products found on this site are final. No refunds or exchanges can be given once your order has begun the fulfillment process. Please see our Policies for additional information.
All plans offered on ThePlanCollection.com are designed to conform to the local building codes when and where the original plan was drawn.
The homes as shown in photographs and renderings may differ from the actual blueprints. For more detailed information, please review the floor plan images herein carefully.
Estimate your costs based on your location and materials.


