Estimate your costs based on your location and materials.
Yes! This plan can be customized—contact us for a free quote.


Yes! This plan can be customized—contact us for a free quote.
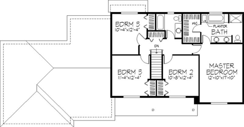
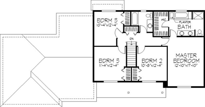
With its traditional, inviting styling, this home will be a welcome addition on any block. The living and dining rooms flank the foyer, offering ideal spaces for entertaining. The family room features a gorgeous brick fireplace, and will surely be the room toward which family and close friends gravitate. The sleeping quarters are isolated on the second level for a quiet retreat at the end of the day.
Estimate your costs based on your location and materials.
All sales of house plans, modifications, and other products found on this site are final. No refunds or exchanges can be given once your order has begun the fulfillment process. Please see our Policies for additional information.
All plans offered on ThePlanCollection.com are designed to conform to the local building codes when and where the original plan was drawn.
The homes as shown in photographs and renderings may differ from the actual blueprints. For more detailed information, please review the floor plan images herein carefully.
Estimate your costs based on your location and materials.


