Estimate your costs based on your location and materials.
Yes! This plan can be customized—contact us for a free quote.


Yes! This plan can be customized—contact us for a free quote.
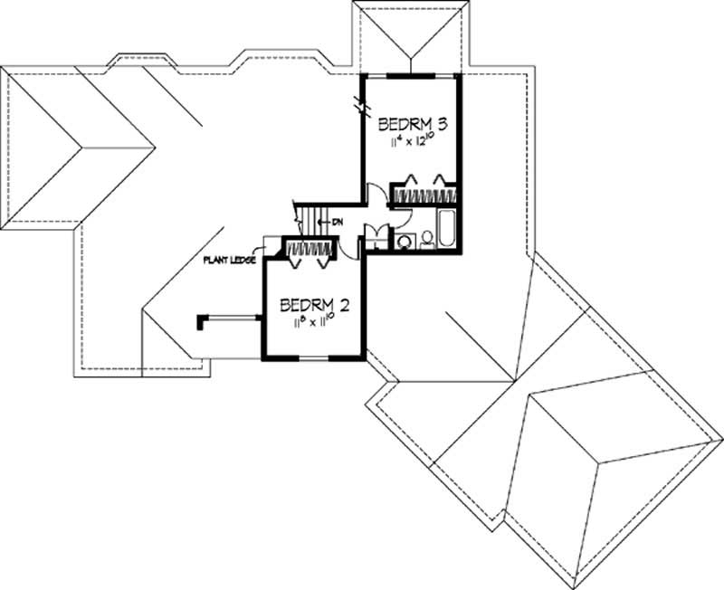
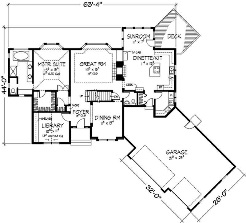
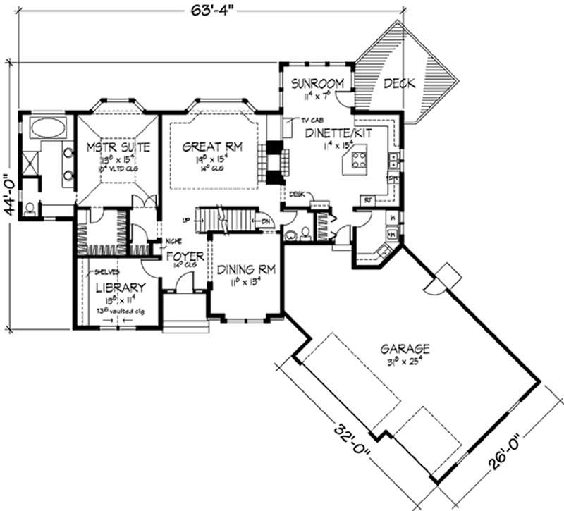
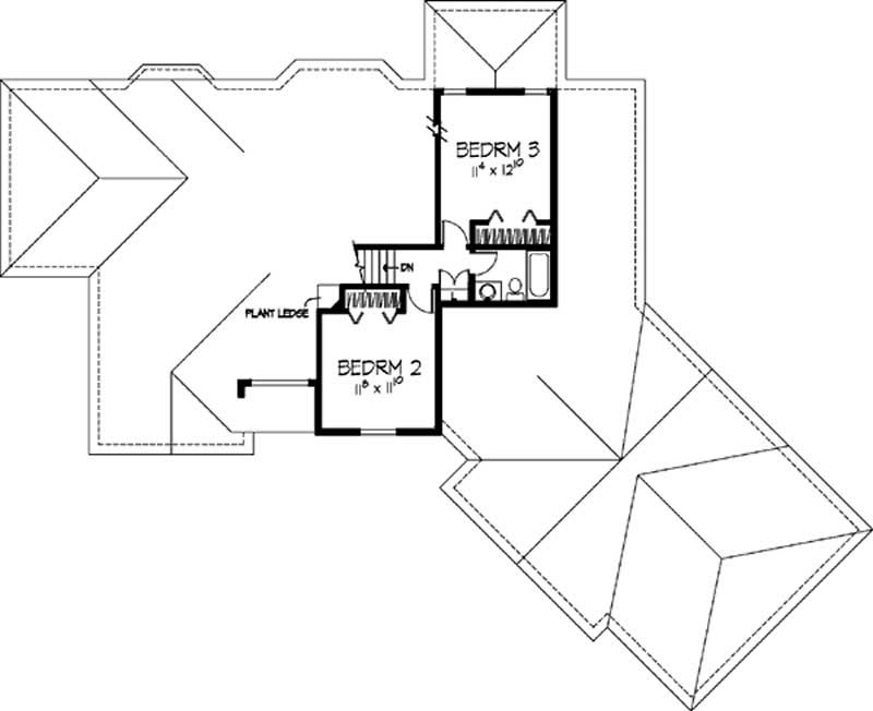
The vaulted main-floor master suite is secluded in one corner of the home, and has a bayed sitting area, a huge walk-in closet and a luxurious private bath with a whirlpool tub. Flanking the foyer are the library and the dining room, while straight ahead a glorious bayed window-wall graces the Great Room. The upper level is comprised of two bedrooms and a full bath -- a perfect hideaway for kids or guests.
Estimate your costs based on your location and materials.
All sales of house plans, modifications, and other products found on this site are final. No refunds or exchanges can be given once your order has begun the fulfillment process. Please see our Policies for additional information.
All plans offered on ThePlanCollection.com are designed to conform to the local building codes when and where the original plan was drawn.
The homes as shown in photographs and renderings may differ from the actual blueprints. For more detailed information, please review the floor plan images herein carefully.
Estimate your costs based on your location and materials.



