Estimate your costs based on your location and materials.
Yes! This plan can be customized—contact us for a free quote.


Yes! This plan can be customized—contact us for a free quote.
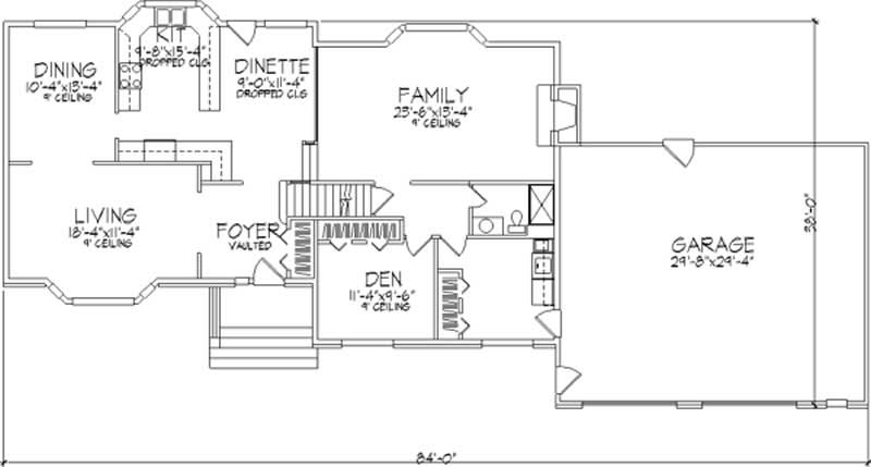
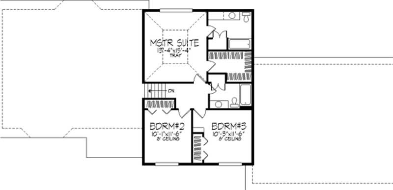
A vaulted foyer leaves an impression of spaciousness on visitors to this home. The formal bayed living room flows into a formal dining room to create an area perfect for entertaining on a small or grand scale. The U-shaped kitchen adjoins a dinette with backyard access. A family room with a fireplace and a den that may serve as a spare bedroom are on a level a few steps down from the main floor. The home's sleeping level includes a master suite whose bedroom is crowned by a four-way vaulted ceiling. It has a private bath and a walk-in closet.
Estimate your costs based on your location and materials.
All sales of house plans, modifications, and other products found on this site are final. No refunds or exchanges can be given once your order has begun the fulfillment process. Please see our Policies for additional information.
All plans offered on ThePlanCollection.com are designed to conform to the local building codes when and where the original plan was drawn.
The homes as shown in photographs and renderings may differ from the actual blueprints. For more detailed information, please review the floor plan images herein carefully.
Estimate your costs based on your location and materials.


