4-Bedroom, 3409 Sq Ft Mediterranean Plan with Walk-in Pantry

Main image for house plan # 19806

Images/Plans copyrighted by designer. Photos may reflect homeowner modifications.

About House Plan #131-1189

Sq Ft
3409
Sq Ft
Bedrooms
4
Bedrooms
Bathroom
3
Baths
Half Baths
0
Half Baths
Bedrooms
3
Cars
Bedrooms
1
Stories
Bedrooms
63' 8'
Width
Bedrooms
52
Depth
Starting at$1150.00What's included
STEP 1Bedrooms
STEP 2Bedrooms
STEP 3Bedrooms

Subtotal:$0
BedroomsBest Price Guaranteed
Plan Collection

How much will it cost to build?

Estimate your costs based on your location and materials.

Free Cost Instant Estimator

Floor Plans

MAIN LEVEL FLOOR PLAN
MAIN LEVEL FLOOR PLAN
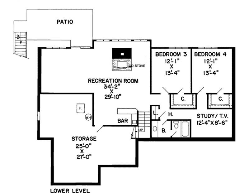
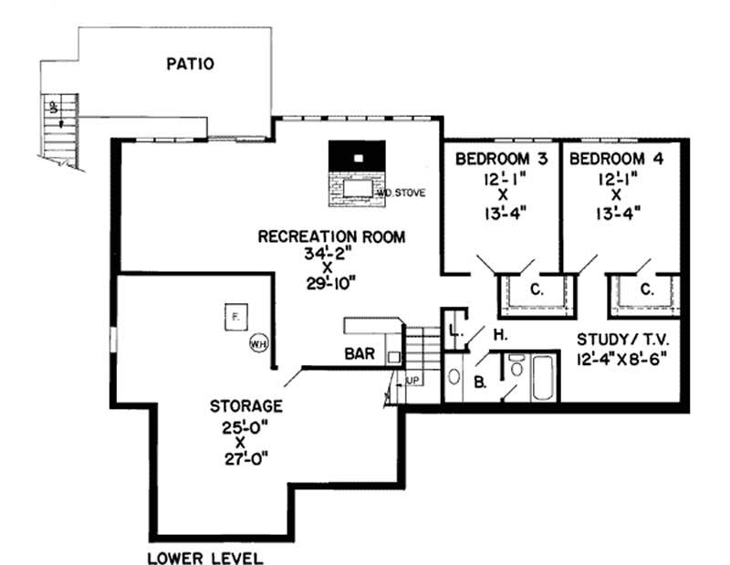
BASEMENT FLOOR PLAN
BASEMENT FLOOR PLAN
Plan Collection

Can I modify this plan?

Yes! This plan can be customized—contact us for a free quote.

House Plan Description

This design draws together family (and friends), and invites them to spread out across 3,409 sq. ft. The main level hosts a huge central family room with unique bumped-out fireplace. Formal dining, kitchen and breakfast area (with sun porch and deck) live on one side of the layout while the master suite with full bath and bedroom #2 (also with full bath) sleep comfortably on the opposite side. The lower level features an entertainment-ready recreation room with wood-burning stove and built-in bar. Bedrooms #3 and #4 enjoy extra-large closets, shared bath and a study.

Home Details

Summary
Plan #:131-1189
Starting at:$1150.00
Floors:1
Bedrooms:4
Full Baths:3
Half Baths:0
Garage:
Square Footage
Heated Area:3409 Sq. Ft.
First Floor:2014 Sq. Ft.
Unheated Area:
Basement:1395 Sq. Ft.
Garage:722 Sq. Ft.
Dimensions
Width:63' 8''
Architectural Styles
Roofing Type
Hip
Special Feature
FireplaceFamily Room

What’s Included

Most plan sets include the following:

icon text-secondary-400 includedExterior elevations

icon text-secondary-400 includedFoundation plans

icon text-secondary-400 includedInterior elevations

icon text-secondary-400 includedElectrical layout

icon text-secondary-400 includedDetailed house floor plans

What’s Not Included

These items are  NOT included:

icon text-secondary-400 includedArchitectural or Engineering Stamp - handled locally if required.

icon text-secondary-400 includedSite Plan - handled locally when required.

icon text-secondary-400 includedMechanical Drawings (location of heating and air equipment and ductwork) - your subcontractors handle this.

icon text-secondary-400 includedPlumbing Drawings (drawings showing the actual plumbing pipe sizes and locations) - your subcontractors handle this.

icon text-secondary-400 includedEnergy calculations - handled locally when required.

Related House Plans

Plan Collection
Plan Collection
Plan Collection
Plan#125-1025
Starting at$0
3443
Sq Ft
1
Story
4
Bed
3.5
Bath
3
Car
Plan Collection
Plan Collection
Plan Collection
Plan#153-1153
Starting at$1100
2788
Sq Ft
1
Story
4
Bed
3.5
Bath
3
Car
Plan Collection
Plan Collection
Plan Collection
Plan#153-1359
Starting at$1350
3022
Sq Ft
1
Story
4
Bed
3
Bath
3
Car
View All

Other Plans By This Designer

Plan Collection
Plan Collection
Plan Collection
Plan#131-1047
Starting at$800
1792
Sq Ft
1
Story
3
Bed
2
Bath
0
Car
Plan Collection
Plan Collection
Plan Collection
Plan#131-1013
Starting at$900
2083
Sq Ft
2
Story
3
Bed
2.5
Bath
2
Car
Plan Collection
Plan Collection
Plan Collection
Plan#131-1243
Starting at$600
972
Sq Ft
2
Story
3
Bed
1
Bath
0
Car