4-Bedroom, 5504 Sq Ft Luxury Plan with Split Master Bedroom

Main image for luxury house plan # 19244

Images/Plans copyrighted by designer. Photos may reflect homeowner modifications.

About House Plan #156-1698

Sq Ft
5504
Sq Ft
Bedrooms
4
Bedrooms
Bathroom
5
Baths
Half Baths
1
Half Baths
Bedrooms
3
Cars
Bedrooms
2
Stories
Bedrooms
106' 10'
Width
Bedrooms
91
Depth
Starting at$1450.00What's included
STEP 1Bedrooms
STEP 2Bedrooms
STEP 3Bedrooms

Subtotal:$0
BedroomsBest Price Guaranteed
Plan Collection

How much will it cost to build?

Estimate your costs based on your location and materials.

Free Cost Instant Estimator

Floor Plans

MAIN LEVEL FLOOR PLAN
MAIN LEVEL FLOOR PLAN
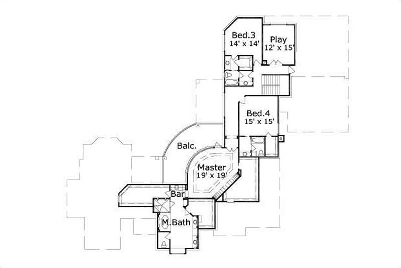
SECOND LEVEL FLOOR PLAN
SECOND LEVEL FLOOR PLAN
Plan Collection

Can I modify this plan?

Yes! This plan can be customized—contact us for a free quote.

Additional Notes from Designer

CAD files may take up to 3 business days to receive - please contact us for availability.

House Plan Description

Luxury House Plans OHP-11256 offer large porches and a balcony which provide lots of room for relaxation outside on warm summer days and cool evenings. With a large family room you can easily entertain guests. The bedroom layout of this home plan provides privacy for everyone in your family. Guests can enjoy the secluded guest room located behind the garage.

Home Details

Summary
Plan #:156-1698
Starting at:$1450.00
Floors:2
Bedrooms:4
Full Baths:5
Half Baths:1
Garage:
Square Footage
Heated Area:5504 Sq. Ft.
First Floor:3205 Sq. Ft.
Second Floor:2299 Sq. Ft.
Unheated Area:
Dimensions
Width:106' 10''
Depth:91' 2''
Ridge Height:37'4' 0''
Architectural Styles
Exterior Wall Material
Brick
Roofing Type
Hip
Ceiling Height
10 Foot Ceiling9 Foot Ceiling
Special Feature
Dining RoomGuest RoomHome OfficeFamily RoomGame RoomMain Level LaundryLibraryBalcony
Garage Type
Attached GarageSide EntryFront Entry
Kitchen Features
Kitchen IslandButler's Pantry
Porches and Exterior Features
Covered Front PorchCovered Rear Porch
Master Suite Features
Master BathroomWalk In ClosetPrivate DeckSecond Floor Master

What’s Included

Most plan sets include the following:

icon text-secondary-400 includedExterior,

icon text-secondary-400 includedElevations

icon text-secondary-400 includedFloor Plans

icon text-secondary-400 includedElectrical Layout

icon text-secondary-400 includedBuilding Sections

icon text-secondary-400 includedRoofing Plan

icon text-secondary-400 includedInterior Elevations

icon text-secondary-400 includedGeneral Details

icon text-secondary-400 includedWall Sections

What’s Not Included

These items are  NOT included:

icon text-secondary-400 includedArchitectural or Engineering Stamp - handled locally if required.

icon text-secondary-400 includedSite Plan - handled locally when required.

icon text-secondary-400 includedMechanical Drawings (location of heating and air equipment and ductwork) - your subcontractors handle this.

icon text-secondary-400 includedPlumbing Drawings (drawings showing the actual plumbing pipe sizes and locations) - your subcontractors handle this.

icon text-secondary-400 includedEnergy calculations - handled locally when required.

Related House Plans

Plan Collection
Plan Collection
Plan Collection
Plan#153-1058
Starting at$1650
4996
Sq Ft
2
Story
4
Bed
5.5
Bath
3
Car
Plan Collection
Plan Collection
Plan Collection
Plan#134-1027
Starting at$0
6634
Sq Ft
2
Story
4
Bed
5.5
Bath
4
Car
Plan Collection
Plan Collection
Plan Collection
Plan#134-1350
Starting at$0
5303
Sq Ft
2
Story
4
Bed
5.5
Bath
4
Car
View All

Other Plans By This Designer

Plan Collection
Plan Collection
Plan Collection
Plan#156-1456
Starting at$1450
8541
Sq Ft
2
Story
5
Bed
5
Bath
4
Car
Plan Collection
Plan Collection
Plan Collection
Plan#156-1085
Starting at$1100
3900
Sq Ft
2
Story
4
Bed
3.5
Bath
3
Car
Plan Collection
Plan Collection
Plan Collection
Plan#156-1734
Starting at$1700
6775
Sq Ft
2
Story
6
Bed
4.5
Bath
2
Car