Estimate your costs based on your location and materials.
Yes! This plan can be customized—contact us for a free quote.


Yes! This plan can be customized—contact us for a free quote.
Please Note: The plans by this designer DO NOT include electrical plans or electrical layout plans. NOTE: If you are building this home in Washington State, please contact us BEFORE placing your order!
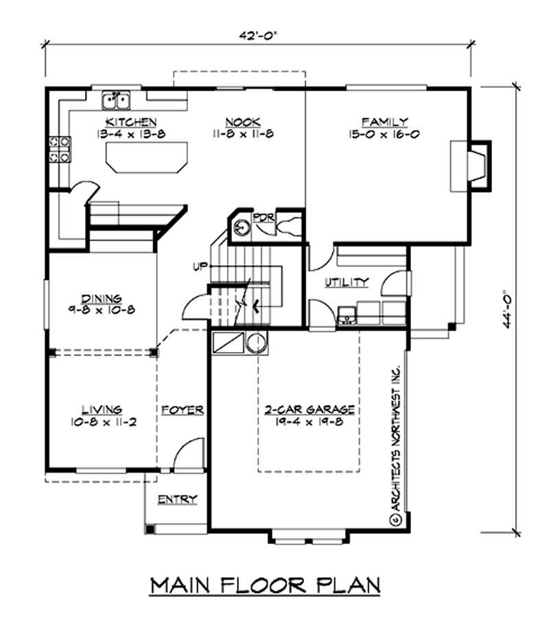
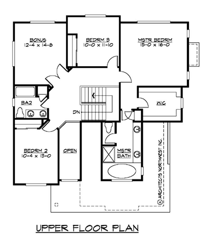
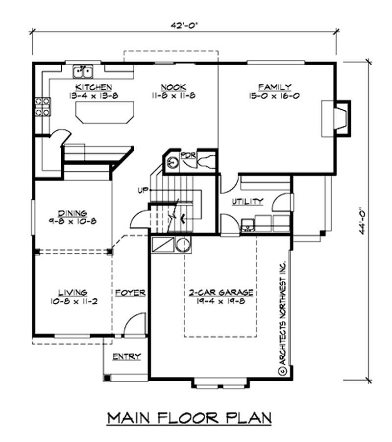
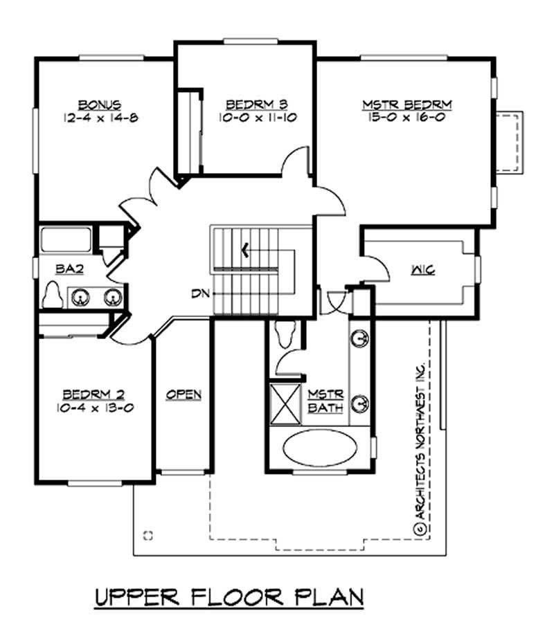
This beautiful and open floor plan has many great features to offer you. The kitchen has a nice island which gives you extra space for cooking. In the family room you have a pleasant and cozy fireplace to enjoy reading a good book by. There is a powder room for the convenience of your guests to freshen up in. The dining area allows easy access into the living room and kitchen. You have a nice nook where you can have breakfast together as a family. You have a convenient utilities room located just oft from the garage. The master bedroom has a relaxing master bath with a good size walk-in...
Estimate your costs based on your location and materials.
All sales of house plans, modifications, and other products found on this site are final. No refunds or exchanges can be given once your order has begun the fulfillment process. Please see our Policies for additional information.
All plans offered on ThePlanCollection.com are designed to conform to the local building codes when and where the original plan was drawn.
The homes as shown in photographs and renderings may differ from the actual blueprints. For more detailed information, please review the floor plan images herein carefully.
Estimate your costs based on your location and materials.




