Estimate your costs based on your location and materials.
Yes! This plan can be customized—contact us for a free quote.


Yes! This plan can be customized—contact us for a free quote.
NOTE FROM DESIGNER REGARDING PLAN PURCHASES: 80% of a 5 set purchase price can be applied to any PDF or CAD license upgrade. Additionally, 80% of PDF Study purchase price can be applied to any CAD or PDF license upgrade.
NOTE: Porch sq ft figures may include any deck sq ft as well.
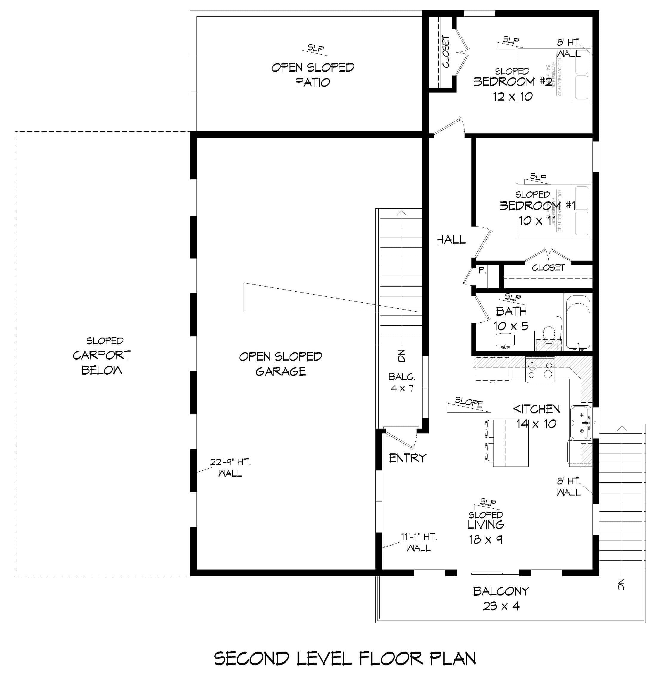
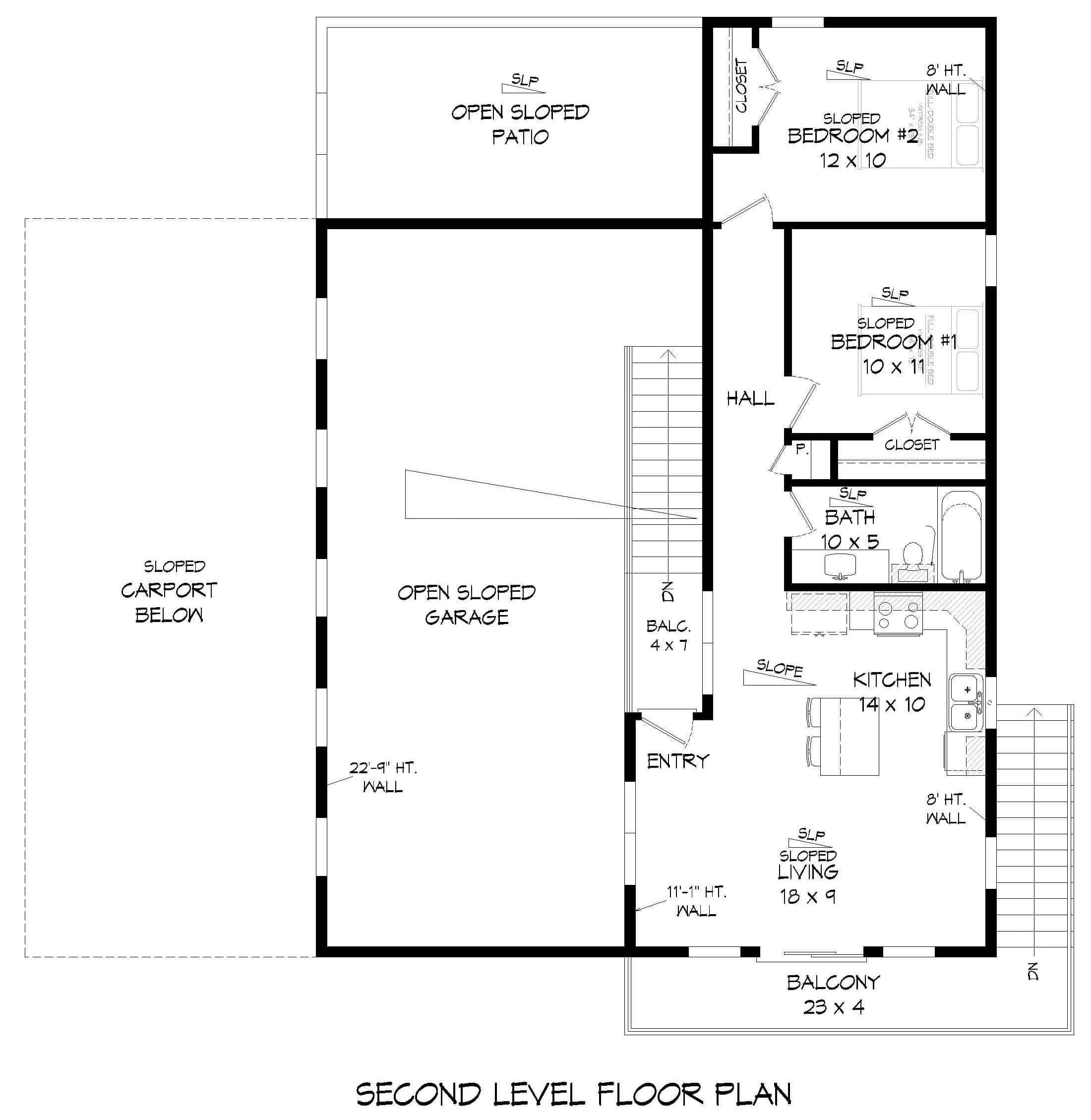
Blending timeless Traditional design with modern functionality, this 4-car garage plan offers 1,900 square feet of well-designed space that balances practicality and charm. The main level features generous parking accommodations, a convenient carport, a storage area, and inviting outdoor spaces including a welcoming front porch and a covered patio—perfect for relaxing or entertaining. Upstairs, the 784-square-foot living area showcases a beautiful vaulted ceiling that enhances the open, airy ambiance. Two comfortable bedrooms, a full bath, a laundry area, and a stylish kitchen with a...
Estimate your costs based on your location and materials.
All sales of house plans, modifications, and other products found on this site are final. No refunds or exchanges can be given once your order has begun the fulfillment process. Please see our Policies for additional information.
All plans offered on ThePlanCollection.com are designed to conform to the local building codes when and where the original plan was drawn.
The homes as shown in photographs and renderings may differ from the actual blueprints. For more detailed information, please review the floor plan images herein carefully.
Estimate your costs based on your location and materials.






