5-Bedroom, 5282 Sq Ft Contemporary Plan with Covered Rear Patio

Main image for house plan # 13685

Images/Plans copyrighted by designer. Photos may reflect homeowner modifications.

About House Plan #101-1127

Sq Ft
5282
Sq Ft
Bedrooms
5
Bedrooms
Bathroom
3
Baths
Half Baths
0
Half Baths
Bedrooms
3
Cars
Bedrooms
1
Stories
Bedrooms
95' 0'
Width
Bedrooms
62
Depth
Starting at$2482.54What's included
STEP 1Bedrooms
STEP 2Bedrooms
STEP 3Bedrooms

Subtotal:$0
BedroomsBest Price Guaranteed
Plan Collection

How much will it cost to build?

Estimate your costs based on your location and materials.

Free Cost Instant Estimator

Floor Plans

MAIN FLOOR PLAN
MAIN FLOOR PLAN
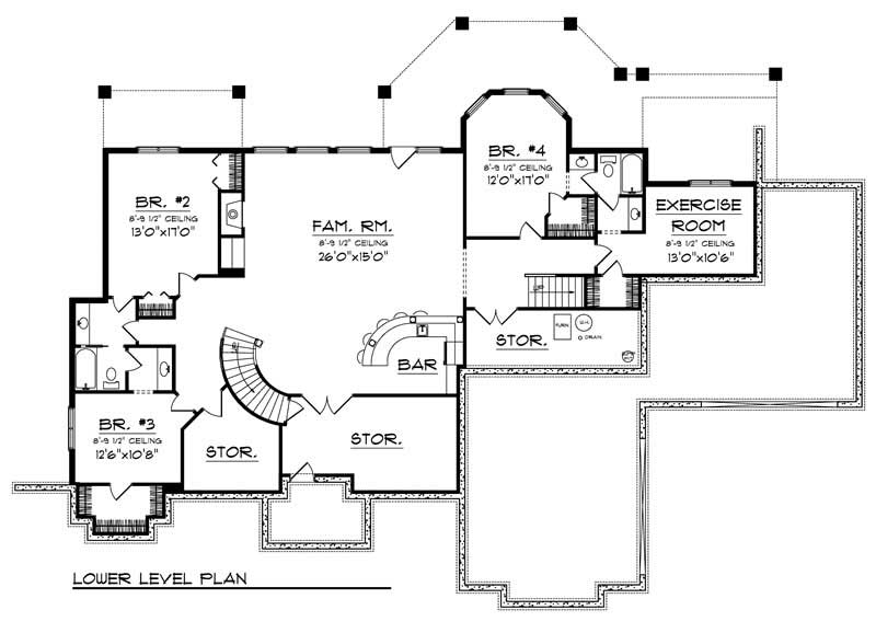
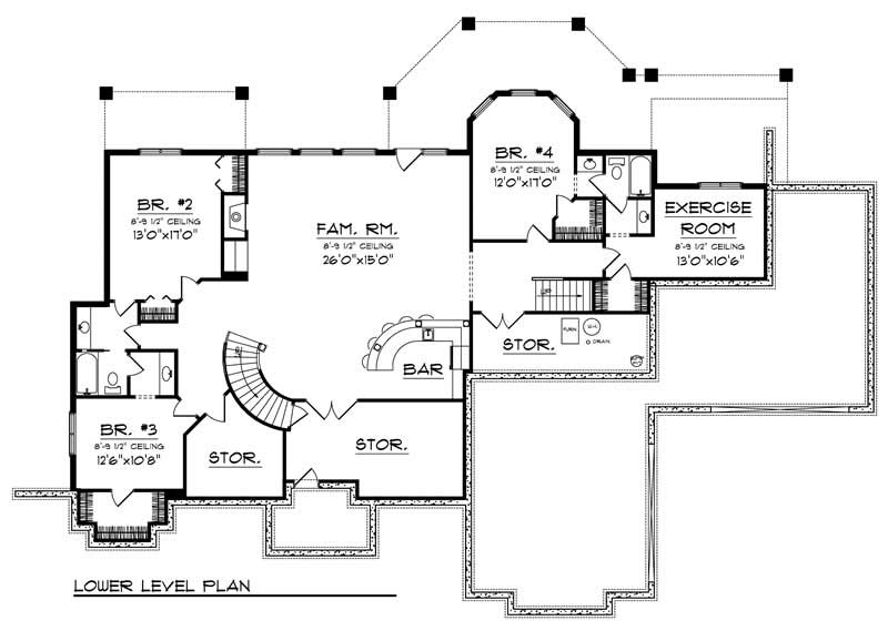
BASEMENT FLOOR PLAN
BASEMENT FLOOR PLAN
Plan Collection

Can I modify this plan?

Yes! This plan can be customized—contact us for a free quote.

House Plan Description

Mediterranean elegance shapes the facade of this tempting design. A formal dining room and den flank the entry inside and an elegant curved-stairway leads to the lower level. The snack-bar kitchen, breakfast nook bay and hearth rooms are open to one another for casual family gatherings, while the wrap-around deck outside makes it a fantastic area for viewing the back yard. The main-level master suite boasts a private wood deck, master bath and roomy walk-in closet. The basement level offers four additional bedrooms, three bathrooms, a family room, a toy room and exercise room.

Home Details

Summary
Plan #:101-1127
Starting at:$2482.54
Floors:1
Bedrooms:5
Full Baths:3
Half Baths:0
Garage:
Square Footage
Heated Area:5282 Sq. Ft.
First Floor:2812 Sq. Ft.
Unheated Area:
Basement:2470 Sq. Ft.
Dimensions
Architectural Styles
Exterior Wall Material
Stucco
Roof Pitch
6/12
Ceiling Height
10 Foot Ceiling
Special Feature
Dining RoomFamily Room
Garage Type
Attached Garage
Exterior Wall Framing
2x6

What’s Included

Most plan sets include the following:

icon text-secondary-400 includedFront, Back & Side Elevations

icon text-secondary-400 includedFloor Plans

icon text-secondary-400 includedElectrical Layout (location of outlets, switches, etc. - it does not have wiring schematics)

icon text-secondary-400 includedRoof Plan (Birdseye view)

icon text-secondary-400 includedFoundation Layout

icon text-secondary-400 includedWall & Stair Sections

icon text-secondary-400 includedCross Section

icon text-secondary-400 includedKitchen Layout

icon text-secondary-400 includedGeneral Notes

What’s Not Included

These items are  NOT included:

icon text-secondary-400 includedArchitectural or Engineering Stamp - handled locally if required.

icon text-secondary-400 includedSite Plan - handled locally when required.

icon text-secondary-400 includedMechanical Drawings (location of heating and air equipment and ductwork) - your subcontractors handle this.

icon text-secondary-400 includedPlumbing Drawings (drawings showing the actual plumbing pipe sizes and locations) - your subcontractors handle this.

icon text-secondary-400 includedFraming layouts with beam sizes and locations.

icon text-secondary-400 includedEnergy calculations - handled locally when required.

Related House Plans

Plan Collection
Plan Collection
Plan Collection
Plan#107-1094
Starting at$1900
6114
Sq Ft
1
Story
5
Bed
3.5
Bath
3
Car
Plan Collection
Plan Collection
Plan Collection
Plan#107-1095
Starting at$1800
5944
Sq Ft
1
Story
5
Bed
3.5
Bath
3
Car
Plan Collection
Plan Collection
Plan Collection
Plan#101-1482
Starting at$0
4381
Sq Ft
1
Story
5
Bed
3
Bath
3
Car
View All

Other Plans By This Designer

Plan Collection
Plan Collection
Plan Collection
Plan#101-1503
Starting at$1090
2098
Sq Ft
2
Story
4
Bed
2
Bath
2
Car
Plan Collection
Plan Collection
Plan Collection
Plan#101-1028
Starting at$1240
3020
Sq Ft
2
Story
4
Bed
2.5
Bath
3
Car
Plan Collection
Plan Collection
Plan Collection
Plan#101-2024
Starting at$1240
3235
Sq Ft
1
Story
5
Bed
3.5
Bath
3
Car