Estimate your costs based on your location and materials.
Yes! This plan can be customized—contact us for a free quote.


Yes! This plan can be customized—contact us for a free quote.
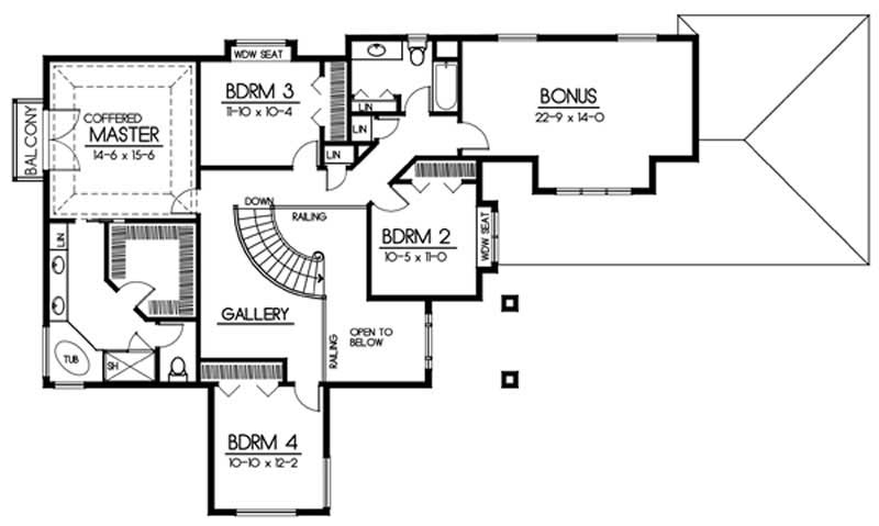
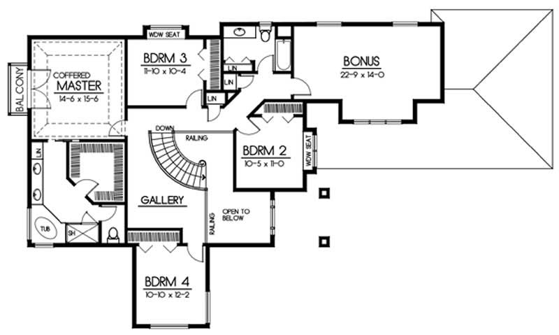
The Praire house plan 100-418 has an unfinished/future space, oversized garage, upstairs master bdrm, suited for view lot, kitchen island unfinished basement, walk-in closet, daylight basement, suited for sloping lot, peninsula/eating bar, volume/vaulted ceiling, side-entry garage, nook / breakfast area, suited for narrow lot, bonus room, den/office/computer, and an open floor plan.
Estimate your costs based on your location and materials.
All sales of house plans, modifications, and other products found on this site are final. No refunds or exchanges can be given once your order has begun the fulfillment process. Please see our Policies for additional information.
All plans offered on ThePlanCollection.com are designed to conform to the local building codes when and where the original plan was drawn.
The homes as shown in photographs and renderings may differ from the actual blueprints. For more detailed information, please review the floor plan images herein carefully.
Estimate your costs based on your location and materials.



