Estimate your costs based on your location and materials.
Yes! This plan can be customized—contact us for a free quote.


Yes! This plan can be customized—contact us for a free quote.
PLEASE NOTE!! For this designer, The PDF that comes with the PRINT Packages (5 set+PDF and 8 set+PDF) is NOT Modifiable - it is for printing ONLY! PLEASE NOTE!! Optional Foundations (foundations that cost extra money) will take 5-10 business days to complete.
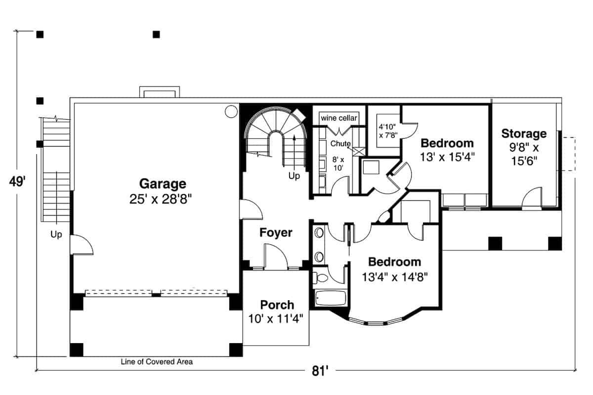
This splendid and luxurious Mediterranean style home with Spanish attributes is sure to grab your attention. The arches, especially at the two-story-tall rounded entry treatment, and large, lovely windows combine for an unforgettable and arresting curb appeal. The eye-catching home's 1-story floor plan has 3191 square feet of fully conditioned living space in the main and lower levels and includes 3 bedrooms – with a 737-square-foot 2-car garage and 170-square-foot storage area on the lower level.
Estimate your costs based on your location and materials.
All sales of house plans, modifications, and other products found on this site are final. No refunds or exchanges can be given once your order has begun the fulfillment process. Please see our Policies for additional information.
All plans offered on ThePlanCollection.com are designed to conform to the local building codes when and where the original plan was drawn.
The homes as shown in photographs and renderings may differ from the actual blueprints. For more detailed information, please review the floor plan images herein carefully.
Estimate your costs based on your location and materials.





