5-Bedroom, 3082 Sq Ft European Plan with Covered Front Porch

Main image for house plan # 20341

Images/Plans copyrighted by designer. Photos may reflect homeowner modifications.

About House Plan #100-1132

Sq Ft
3082
Sq Ft
Bedrooms
5
Bedrooms
Bathroom
3
Baths
Half Baths
1
Half Baths
Bedrooms
3
Cars
Bedrooms
2
Stories
Bedrooms
81' 0'
Width
Bedrooms
62
Depth
Starting at$1900.00What's included
STEP 1Bedrooms
STEP 2Bedrooms
STEP 3Bedrooms

Subtotal:$0
BedroomsBest Price Guaranteed
Plan Collection

How much will it cost to build?

Estimate your costs based on your location and materials.

Free Cost Instant Estimator

Floor Plans

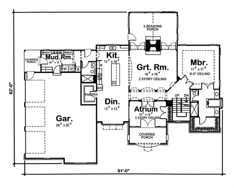
MAIN LEVEL FLOOR PLAN
MAIN LEVEL FLOOR PLAN
SECOND LEVEL FLOOR PLAN
SECOND LEVEL FLOOR PLAN
Plan Collection

Can I modify this plan?

Yes! This plan can be customized—contact us for a free quote.

Additional Notes from Designer

The CAD File formats are drawn in SoftPlan. PLEASE NOTE: Plans by this designer do NOT come with FRAMING! This designer does not do ICF.

House Plan Description

The #100-1132 home plan is a two story, European style house plan with 3082 total living square feet. This home plan has 5 bedrooms, 3 baths, and an attached, side entry, 3 car garage. The front entry is below the covered porch. You enter this beautiful house plan into the Atrium, straight ahead awaits the great room with the 2 story ceiling. The master bedroom and bath are to the right of the great room, the dining and kitchen area are to the left. To the back of the great room is a 3 seasons porch. The upper level has 4 bedrooms and 2 baths. There is a walk-way that is open to the lower...

Home Details

Summary
Plan #:100-1132
Starting at:$1900.00
Floors:2
Bedrooms:5
Full Baths:3
Half Baths:1
Garage:
Square Footage
Heated Area:3082 Sq. Ft.
First Floor:1956 Sq. Ft.
Second Floor:1126 Sq. Ft.
Unheated Area:
Garage:872 Sq. Ft.
Dimensions
Ridge Height:30'9' 0''
Architectural Styles
Roofing Type
Hip
Roof Pitch
9/12
Ceiling Height
9 Foot Ceiling8 Foot Ceiling
Garage Type
Attached GarageSide Entry
Fireplaces
One Fireplace
Exterior Wall Framing
2x4

What’s Included

Most plan sets include the following:

icon text-secondary-400 includedCover Sheet: Shows the front elevation and typical notes and requirements.

icon text-secondary-400 includedExterior Elevations: Shows the front, rear and sides of the home including exterior materials, details and measurements

icon text-secondary-400 includedFloor Plans: Shows the placement of walls and the dimensions for rooms, doors, windows, stairways, etc. for each floor.

icon text-secondary-400 includedElectrical Plans: Shows the location of outlets, fixtures and switches. They are shown as a separate sheet to make the floor plans more legible

icon text-secondary-400 includedFoundation Plans: will include a basement, crawlspace or slab depending on what is available for that home plan. (Please refer to the home plan's details sheet to see what foundation options are available for a specific home plan.) The foundation plan details the layout and construction of the foundation.

icon text-secondary-400 includedRoof Plan

icon text-secondary-400 includedTypical wall section

icon text-secondary-400 includedTypical stair section

icon text-secondary-400 includedCabinets are shown on all plans.

What’s Not Included

These items are  NOT included:

icon text-secondary-400 includedArchitectural or Engineering Stamp - handled locally if required.

icon text-secondary-400 includedSite Plan - handled locally when required.

icon text-secondary-400 includedMechanical Drawings (location of heating and air equipment and ductwork) - your subcontractors handle this.

icon text-secondary-400 includedPlumbing Drawings (drawings showing the actual plumbing pipe sizes and locations) - your subcontractors handle this.

icon text-secondary-400 includedEnergy calculations - handled locally when required.

Related House Plans

Plan Collection
Plan Collection
Plan Collection
Plan#106-1162
Starting at$1695
3272
Sq Ft
2
Story
5
Bed
3.5
Bath
3
Car
Plan Collection
Plan Collection
Plan Collection
Plan#153-1889
Starting at$1200
3496
Sq Ft
2
Story
5
Bed
3.5
Bath
4
Car
Plan Collection
Plan Collection
Plan Collection
Plan#102-1016
Starting at$1500
3038
Sq Ft
2
Story
5
Bed
3.5
Bath
2
Car
View All

Other Plans By This Designer

Plan Collection
Plan Collection
Plan Collection
Plan#100-1315
Starting at$700
576
Sq Ft
1
Story
1
Bed
1
Bath
0
Car
Plan Collection
Plan Collection
Plan Collection
Plan#100-1364
Starting at$400
224
Sq Ft
1.5
Story
0
Bed
0
Bath
0
Car
Plan Collection
Plan Collection
Plan Collection
Plan#100-1205
Starting at$1400
1440
Sq Ft
1
Story
2
Bed
2
Bath
2
Car