Estimate your costs based on your location and materials.
Yes! This plan can be customized—contact us for a free quote.

Yes! This plan can be customized—contact us for a free quote.
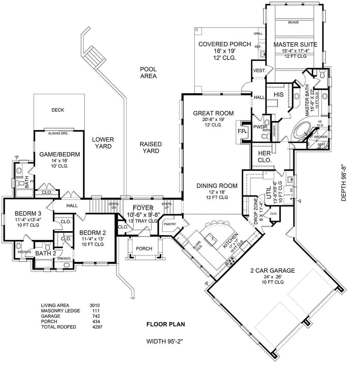
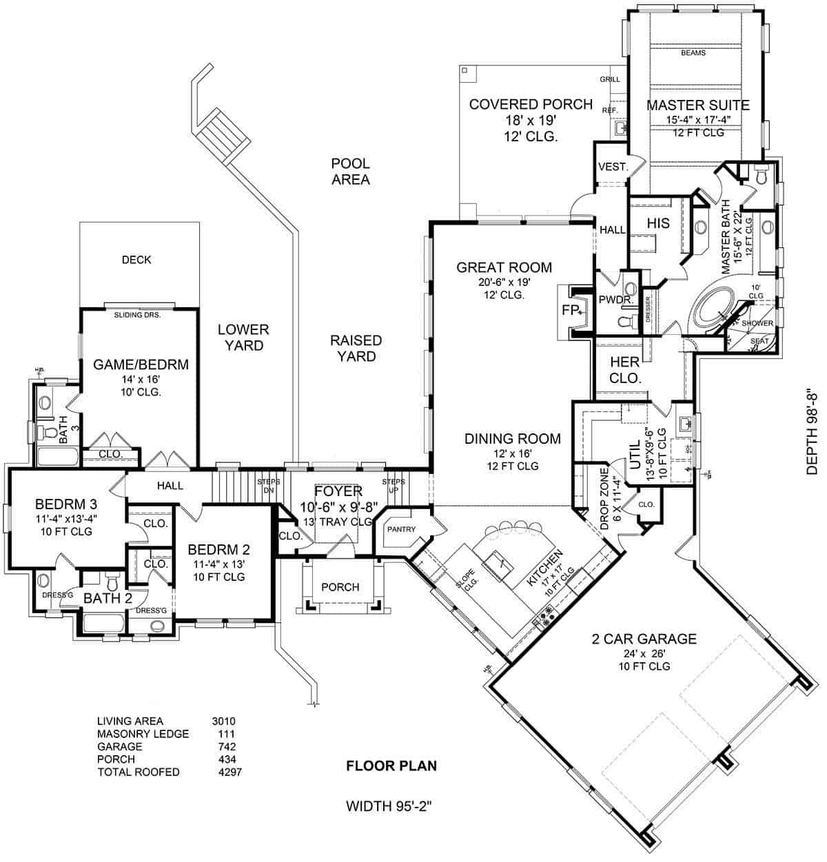
The multiple levels of the yard and floor plan, interesting roof lines, large windows all around, and tall, pleasant covered entry give this Contemporary home with California Style traits a fascinating character. The wonderful house also provides spacious rooms that every member of the family will surely appreciate. The luxurious 1-story home's floor plan has 3010 square feet of fully conditioned living space. You’ll find features such as
• Fireplace in the Great Room
• Roomy laundry room with sink
Estimate your costs based on your location and materials.
All sales of house plans, modifications, and other products found on this site are final. No refunds or exchanges can be given once your order has begun the fulfillment process. Please see our Policies for additional information.
All plans offered on ThePlanCollection.com are designed to conform to the local building codes when and where the original plan was drawn.
The homes as shown in photographs and renderings may differ from the actual blueprints. For more detailed information, please review the floor plan images herein carefully.
Estimate your costs based on your location and materials.













