Estimate your costs based on your location and materials.
Yes! This plan can be customized—contact us for a free quote.




Yes! This plan can be customized—contact us for a free quote.
Please Note: There might be a 4-5 day delay in getting the sales orders out due to updates being made to the designer's plans.
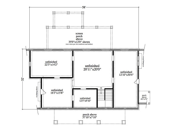
This is a cozy, rustic vacation home perfect for the mountains or hilly terrain. It offers a large front porch to enjoy the outdoors and a large screened porch with a fireplace out back. It comes with plans for a detached 2-car garage. Inside on the main level, the plan enters with an open foyer which widens into a large great room with lots of glass along the rear wall. The adjoining dining room and kitchen make it a great living space. The master suite is on the main level and features a separate tub and shower, double vanity and large walk-in closet. Upstairs, there are two additional...
Estimate your costs based on your location and materials.
All sales of house plans, modifications, and other products found on this site are final. No refunds or exchanges can be given once your order has begun the fulfillment process. Please see our Policies for additional information.
All plans offered on ThePlanCollection.com are designed to conform to the local building codes when and where the original plan was drawn.
The homes as shown in photographs and renderings may differ from the actual blueprints. For more detailed information, please review the floor plan images herein carefully.
Estimate your costs based on your location and materials.








