Estimate your costs based on your location and materials.
Yes! This plan can be customized—contact us for a free quote.
_1.jpg&w=1920&q=100)
_2.jpg&w=1920&q=100)
Yes! This plan can be customized—contact us for a free quote.
PLEASE NOTE: The designer's office will be closed from 12/23/2024 to 01/02/2024. All orders and modification requests for this designer will be fulfilled when the designer resumes office on 01/02/2024. Some plans may take 2-3 weeks to receive! Additionally, not ALL plans from this designer are available in CAD or PDF, some additional charges may apply. Contact us with any questions or concerns BEFORE ordering! Thank you!
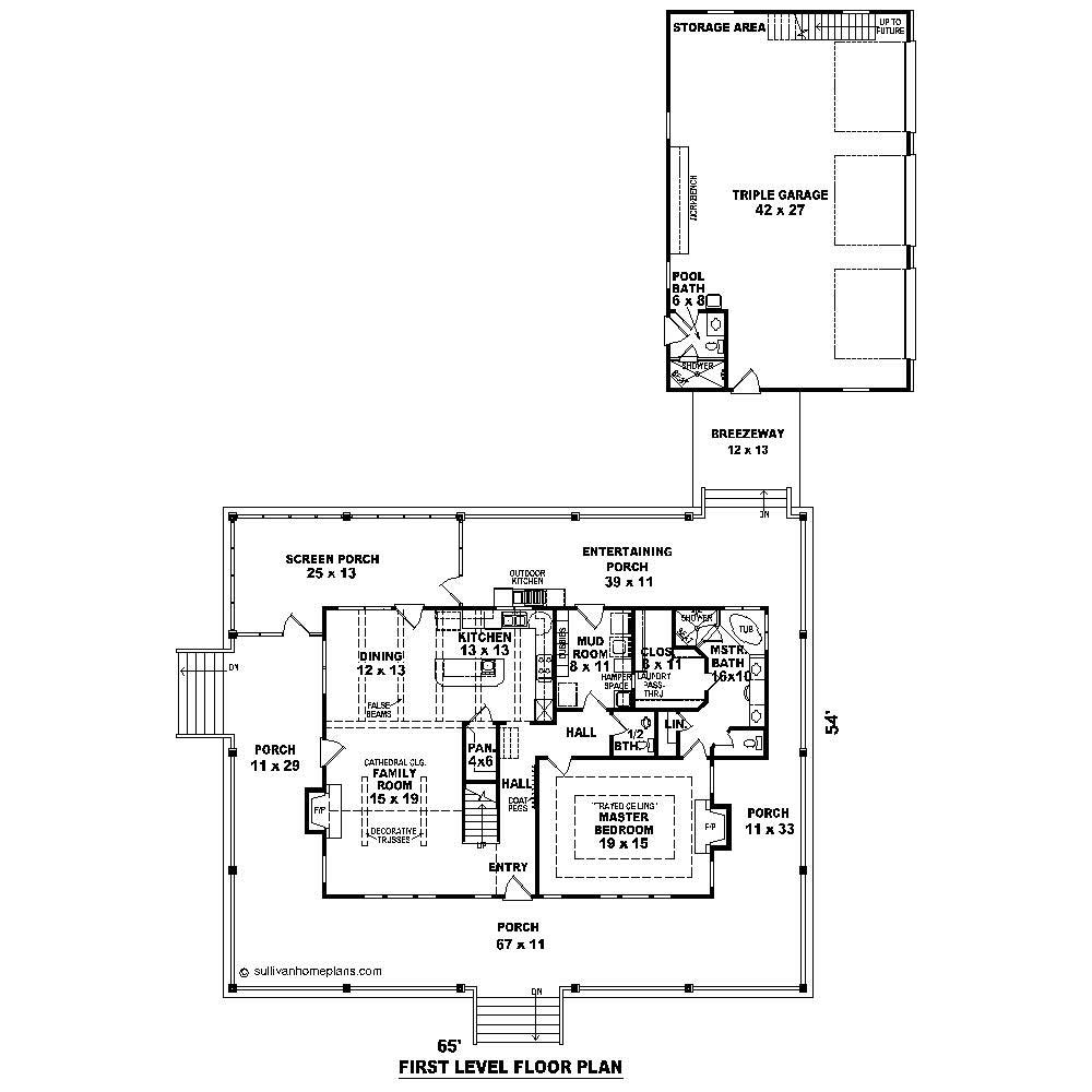
The roof of this home is an attraction to regard. The wraparound porch isn't shabby itself. A triple garage connects to the home with a breezeway. The porch has a screened portion so you can sit and enjoy a summer shower while staying dry. The house is packed with all kinds of features that will make your life the way you have always wanted.
Estimate your costs based on your location and materials.
All sales of house plans, modifications, and other products found on this site are final. No refunds or exchanges can be given once your order has begun the fulfillment process. Please see our Policies for additional information.
All plans offered on ThePlanCollection.com are designed to conform to the local building codes when and where the original plan was drawn.
The homes as shown in photographs and renderings may differ from the actual blueprints. For more detailed information, please review the floor plan images herein carefully.
Estimate your costs based on your location and materials.
_Felev.jpg)
_1.jpg)
_2.jpg)