Estimate your costs based on your location and materials.
Yes! This plan can be customized—contact us for a free quote.


Yes! This plan can be customized—contact us for a free quote.
On some plans, Basement Foundations, Walkout Basement Foundations, & 2x6 Conversions could take up to ONE WEEK to produce. Materials Lists could take up to FOUR WEEKS to produce and they will be for the ORIGINAL plan! Any modifications will NOT be reflected on the Materials List. NOTE FROM DESIGNER: If you purchase a CAD, you will automatically receive the unlimited build license - no need to purchase separately!
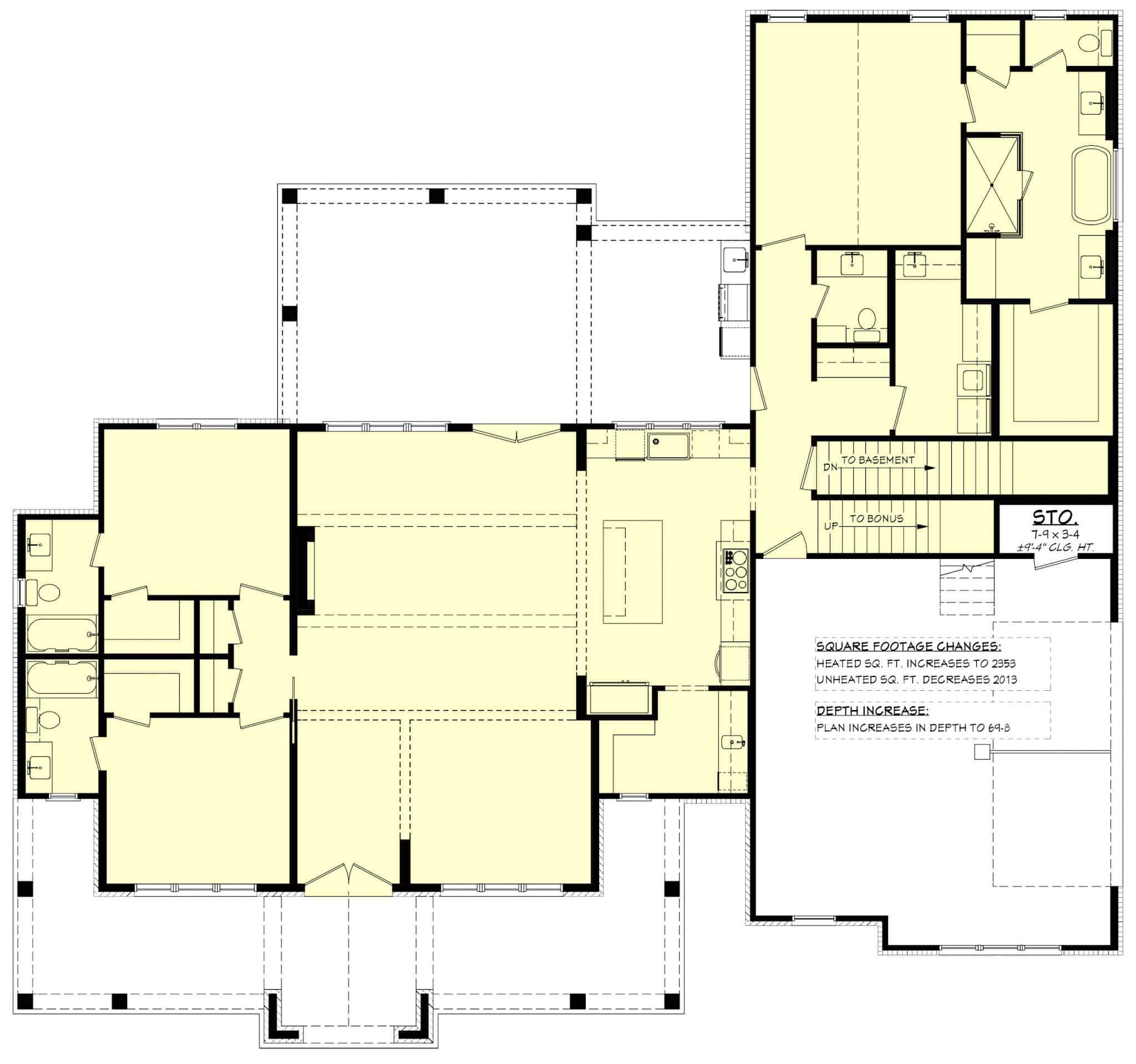
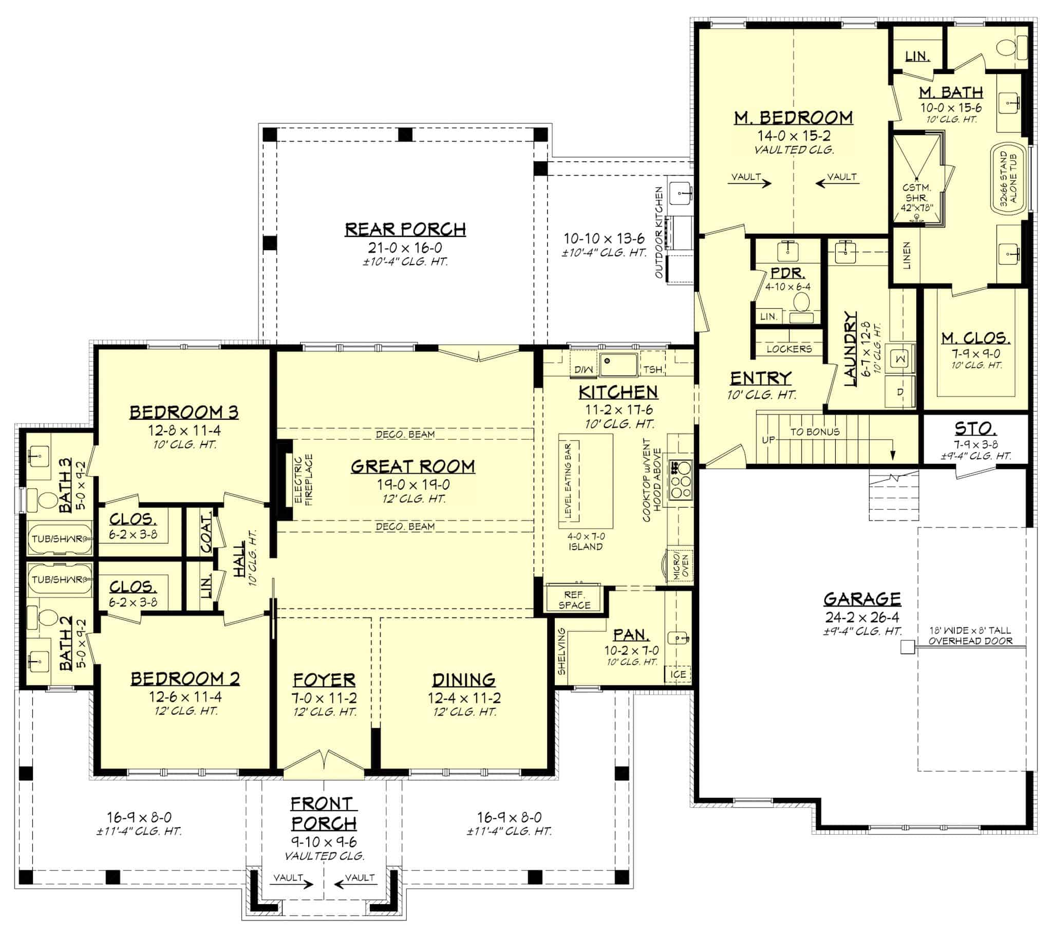
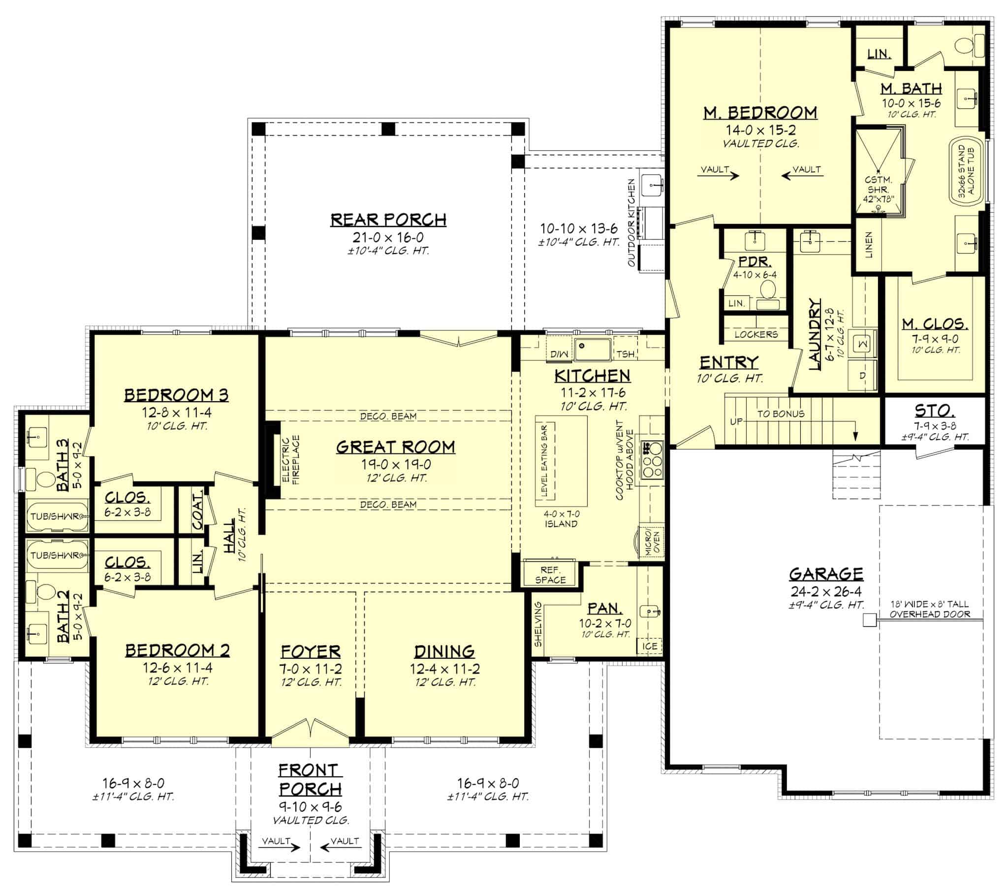
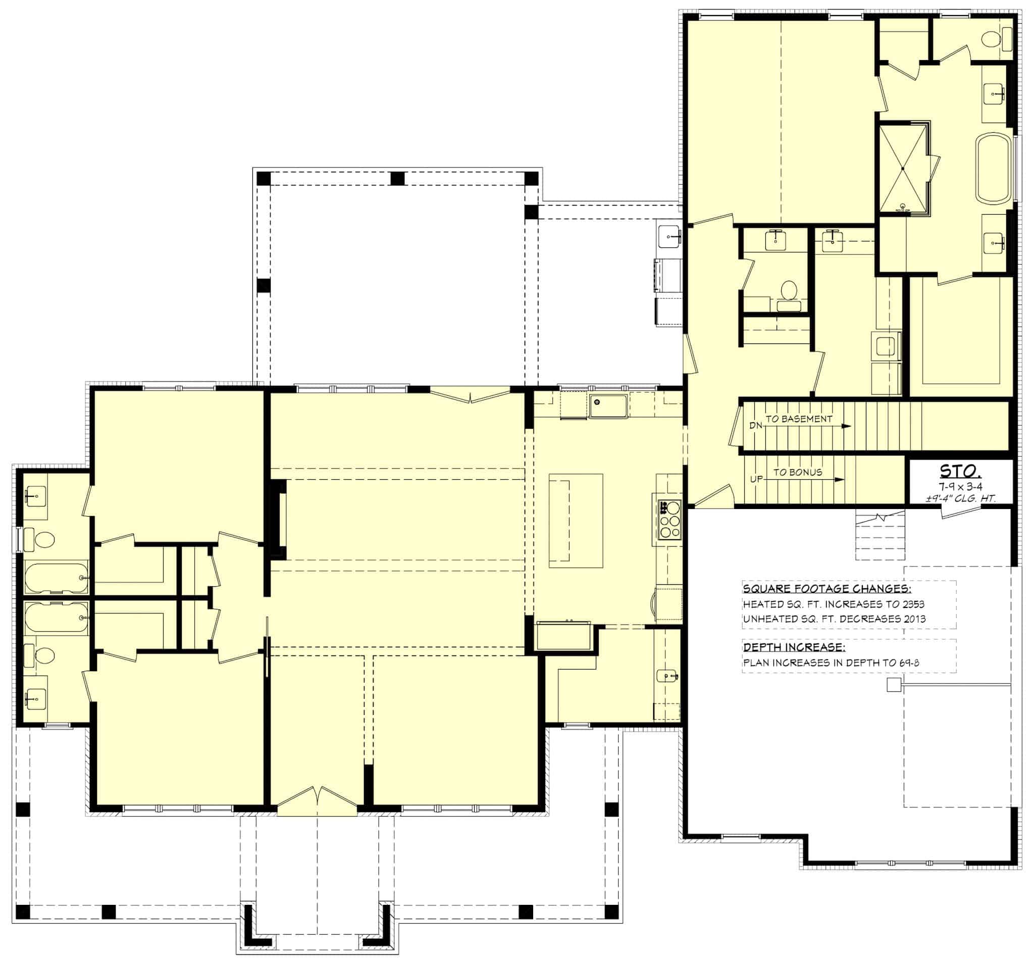
This 3-bedroom, 2,250 sq. ft. Transitional home plan blends Southern charm with modern design, offering 3.5 baths, a bonus room, and an open-concept layout ideal for everyday living and entertaining. The spacious kitchen features a walk-in pantry and island with eating bar, flowing into a great room with an electric fireplace. A vaulted main-floor primary suite delivers a private retreat with a spa-style bath and large walk-in closet. Outdoor living shines with an optional rear porch with outdoor kitchen and a welcoming wraparound front porch. Perfect for families seeking comfort,...
Estimate your costs based on your location and materials.
All sales of house plans, modifications, and other products found on this site are final. No refunds or exchanges can be given once your order has begun the fulfillment process. Please see our Policies for additional information.
All plans offered on ThePlanCollection.com are designed to conform to the local building codes when and where the original plan was drawn.
The homes as shown in photographs and renderings may differ from the actual blueprints. For more detailed information, please review the floor plan images herein carefully.
Estimate your costs based on your location and materials.









