Estimate your costs based on your location and materials.
Yes! This plan can be customized—contact us for a free quote.



Yes! This plan can be customized—contact us for a free quote.
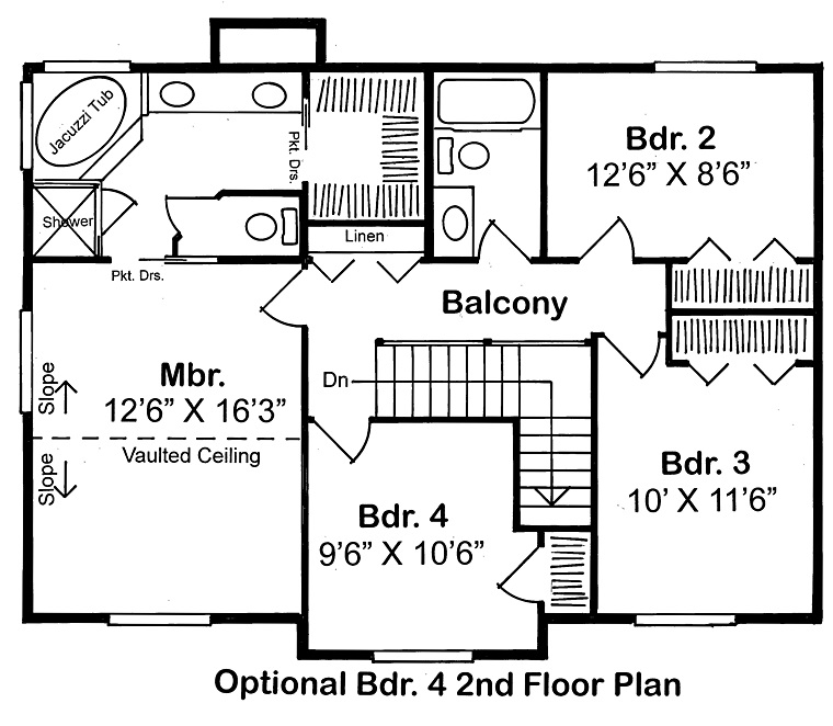
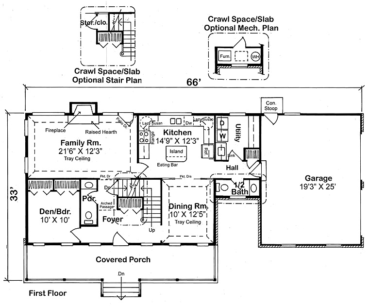
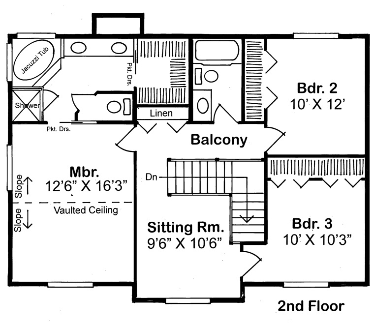
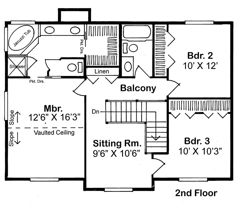
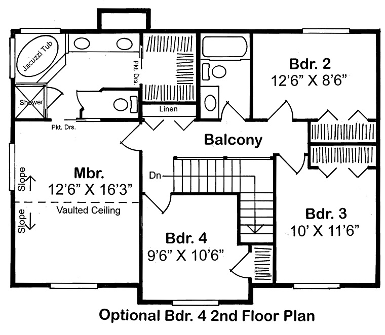
At just over 35 feet deep, this family-friendly 2-story house plan is ideal for shallow lots. A sprawling front porch and gabled roof create a sense of welcome. Inside, a foyer with large coat closet greets guests. Further inside, the family room enjoys plenty of outside views and the presence of a warming fireplace. An island in the U-shaped kitchen enhances the efficiency of the design. Other kitchen conveniences include an open to the dining room, an adjacent laundry area and easy access from the garage, for unloading groceries. Upstairs, the master suite is separated...
Estimate your costs based on your location and materials.
All sales of house plans, modifications, and other products found on this site are final. No refunds or exchanges can be given once your order has begun the fulfillment process. Please see our Policies for additional information.
All plans offered on ThePlanCollection.com are designed to conform to the local building codes when and where the original plan was drawn.
The homes as shown in photographs and renderings may differ from the actual blueprints. For more detailed information, please review the floor plan images herein carefully.
Estimate your costs based on your location and materials.



