Estimate your costs based on your location and materials.
Yes! This plan can be customized—contact us for a free quote.
Yes! This plan can be customized—contact us for a free quote.
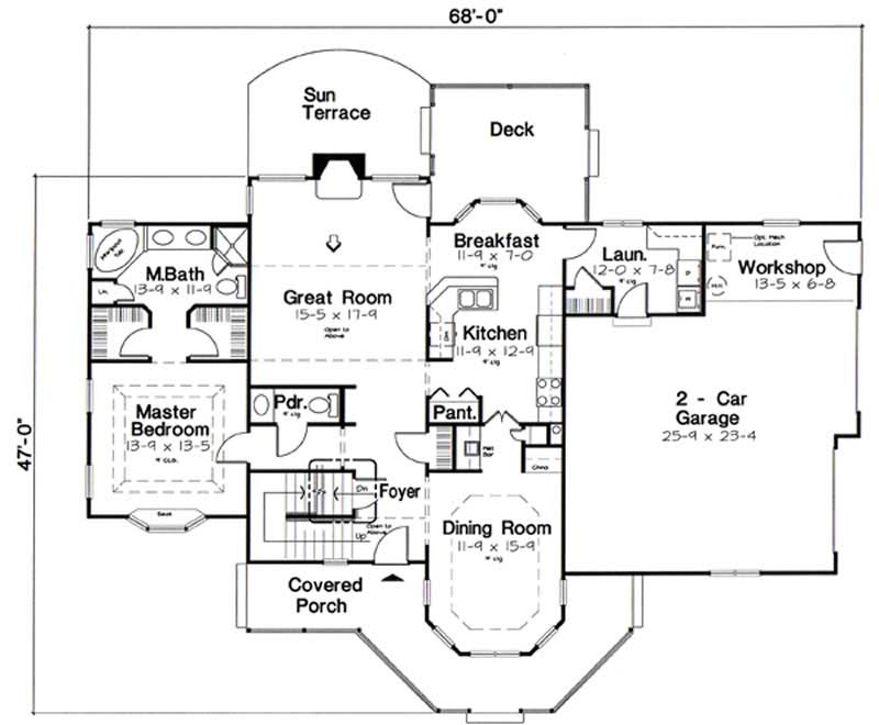
A covered porch, and peaked dormer with ocular window create an impressive exterior. The 2,044 sq. ft. interior features a curvaceous dining room which segues through a chefs pantry to the kitchen, and windowed breakfast room. The great rooms options include warming up by the fireplace or cooling off on the terrace. The main-floor master suite is endowed with a bay window and tray ceiling. The master bath is bordered on each side by walk-ins. The upper level with loft has its own computer area and two large bedrooms, each with their own entry into the shared bath. Plus, theres an exterior...
Estimate your costs based on your location and materials.
All sales of house plans, modifications, and other products found on this site are final. No refunds or exchanges can be given once your order has begun the fulfillment process. Please see our Policies for additional information.
All plans offered on ThePlanCollection.com are designed to conform to the local building codes when and where the original plan was drawn.
The homes as shown in photographs and renderings may differ from the actual blueprints. For more detailed information, please review the floor plan images herein carefully.
Estimate your costs based on your location and materials.
