1-Bedroom, 1860 Sq Ft Log Cabin Plan with Peninsula/Eating Bar

Log Home Design Main Image.

Images/Plans copyrighted by designer. Photos may reflect homeowner modifications.

About House Plan #135-1275

Sq Ft
1860
Sq Ft
Bedrooms
1
Bedrooms
Bathroom
2
Baths
Half Baths
0
Half Baths
Bedrooms
2
Cars
Bedrooms
1
Stories
Bedrooms
78' 0'
Width
Bedrooms
30
Depth
Starting at$1380.00What's included
STEP 1Bedrooms
STEP 2Bedrooms
STEP 3Bedrooms

Subtotal:$0
BedroomsBest Price Guaranteed
Plan Collection

How much will it cost to build?

Estimate your costs based on your location and materials.

Free Cost Instant Estimator

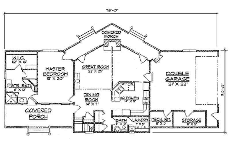
Floor Plans

FLOOR PLAN
FLOOR PLAN
Plan Collection

Can I modify this plan?

Yes! This plan can be customized—contact us for a free quote.

Additional Notes from Designer

This designer does not offer modifications.

House Plan Description

A simple, yet elegant style makes these Log House Plans flow beautifully. This Cabin is great for newlyweds/empty-nesters with its one bedroom, two baths, a kitchen, dining room, great room, two car garage, and main level laundry. You'll be supplied with everything you need.

Home Details

Summary
Plan #:135-1275
Starting at:$1380.00
Floors:1
Bedrooms:1
Full Baths:2
Half Baths:0
Garage:
Square Footage
Heated Area:1860 Sq. Ft.
First Floor:1860 Sq. Ft.
Unheated Area:
Dimensions
Architectural Styles
Exterior Wall Material
Rock/StoneLog
Roofing Type
Gable
Roofing Material
Metal
Ceiling Height
10 Foot Ceiling
Special Feature
FireplaceDining RoomMain Level LaundryStorageVaulted Ceilings
Garage Type
Attached GarageSide Entry
Fireplaces
One Fireplace
Building Lot Type
View Lot
Porches and Exterior Features
Covered Front PorchCovered Rear Porch
Master Suite Features
Main Floor MasterMaster BathroomWalk In Closet

What’s Included

Most plan sets include the following:

icon text-secondary-400 includedCover

icon text-secondary-400 includedGeneral notes

icon text-secondary-400 includedFoundation/Footing plan

icon text-secondary-400 includedBasement plan

icon text-secondary-400 includedFloor framing plan

icon text-secondary-400 includedMain level plan

icon text-secondary-400 includedUpper-level floor framing (if applicable)

icon text-secondary-400 includedUpper floor plan (if applicable)

icon text-secondary-400 includedRoof framing plan

icon text-secondary-400 includedBuilding sections/details

icon text-secondary-400 includedElectrical layout

What’s Not Included

These items are  NOT included:

icon text-secondary-400 includedArchitectural or Engineering Stamp - handled locally if required.

icon text-secondary-400 includedSite Plan - handled locally when required.

icon text-secondary-400 includedMechanical Drawings (location of heating and air equipment and ductwork) - your subcontractors handle this.

icon text-secondary-400 includedPlumbing Drawings (drawings showing the actual plumbing pipe sizes and locations) - your subcontractors handle this.

icon text-secondary-400 includedEnergy calculations - handled locally when required.

Related House Plans

Plan Collection
Plan Collection
Plan Collection
Plan#108-1990
Starting at$945
2049
Sq Ft
1
Story
1
Bed
2
Bath
2
Car
Plan Collection
Plan Collection
Plan Collection
Plan#124-1091
Starting at$725
1736
Sq Ft
1
Story
1
Bed
2.5
Bath
2
Car
View All

Other Plans By This Designer

Plan Collection
Plan Collection
Plan Collection
Plan#135-1015
Starting at$0
5022
Sq Ft
2
Story
5
Bed
5
Bath
4
Car
Plan Collection
Plan Collection
Plan Collection
Plan#135-1081
Starting at$1725
2759
Sq Ft
1
Story
5
Bed
3.5
Bath
3
Car
Plan Collection
Plan Collection
Plan Collection
Plan#135-1018
Starting at$0
3102
Sq Ft
1
Story
5
Bed
3.5
Bath
3
Car