Estimate your costs based on your location and materials.
Yes! This plan can be customized—contact us for a free quote.

Yes! This plan can be customized—contact us for a free quote.
We will be closed Wednesday, December 24th, through Friday, December 26th, for Christmas and from Wednesday, December 31st, through Friday, January 2nd, for New Year's Day. Any orders received on those days will not be processed until the following Monday. PLEASE NOTE! When ordering options such as an optional foundation, RRR or 2x4 or 2x6 conversions, the designer may require an additional 2-5 business days to create it. Please keep this in mind when ordering.
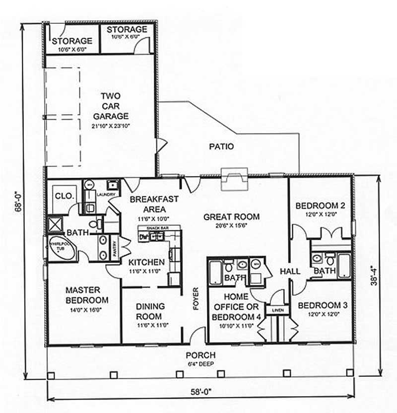
This home plan offers a functional floor plan with great use of space. The front porch is covered and there is a large open patio in back. The two car garage is situated in back and has two storage rooms. The main rooms include separate breakfast and dining spaces, with a large kitchen and great room. There are four bedrooms with a nice master suite.
Estimate your costs based on your location and materials.
All sales of house plans, modifications, and other products found on this site are final. No refunds or exchanges can be given once your order has begun the fulfillment process. Please see our Policies for additional information.
All plans offered on ThePlanCollection.com are designed to conform to the local building codes when and where the original plan was drawn.
The homes as shown in photographs and renderings may differ from the actual blueprints. For more detailed information, please review the floor plan images herein carefully.
Estimate your costs based on your location and materials.


