Estimate your costs based on your location and materials.
Yes! This plan can be customized—contact us for a free quote.


Yes! This plan can be customized—contact us for a free quote.
PLEASE NOTE! Please note that paper orders will be delayed until after the New Year. Due to the high volume of requests, please note that timelines for quotes and order fulfillment for this designer will be longer. We are looking at a 2-week timelines.
On some plans, alternate foundations could take up to ONE WEEK to produce. NOTE FROM DESIGNER: If you purchase a CAD, you will automatically receive the unlimited build license!
NOTE: Porch sq ft figures may include any deck sq ft as well.
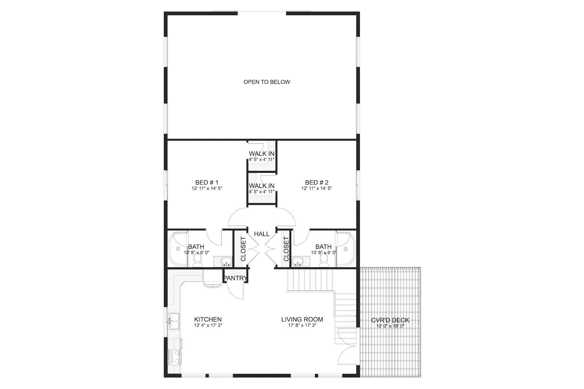
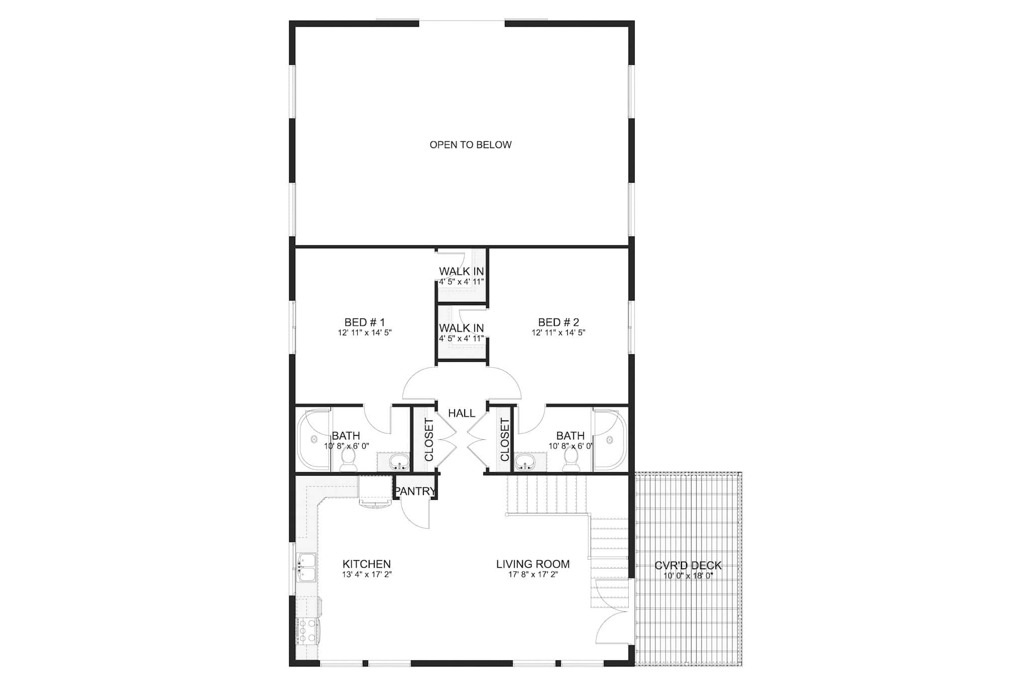
Blending rustic Barndominium charm with versatility, this 1,920-square-foot garage plan accommodates up to six vehicles and features a customizable layout perfect for a workshop, storage, or other functional spaces. Upstairs, the 1,253-square-foot fully conditioned living area includes two bedrooms with walk-in closets, a full bath, a kitchen, a cozy living room, and a covered deck for outdoor enjoyment.
Estimate your costs based on your location and materials.
All sales of house plans, modifications, and other products found on this site are final. No refunds or exchanges can be given once your order has begun the fulfillment process. Please see our Policies for additional information.
All plans offered on ThePlanCollection.com are designed to conform to the local building codes when and where the original plan was drawn.
The homes as shown in photographs and renderings may differ from the actual blueprints. For more detailed information, please review the floor plan images herein carefully.
Estimate your costs based on your location and materials.


















