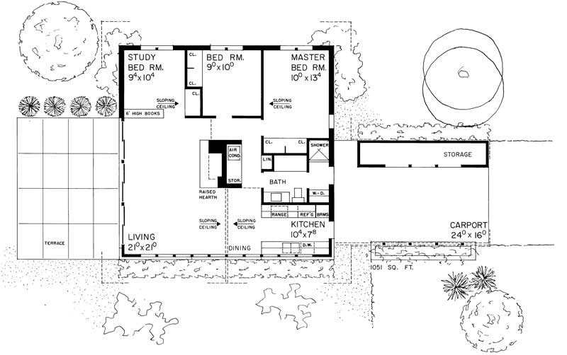
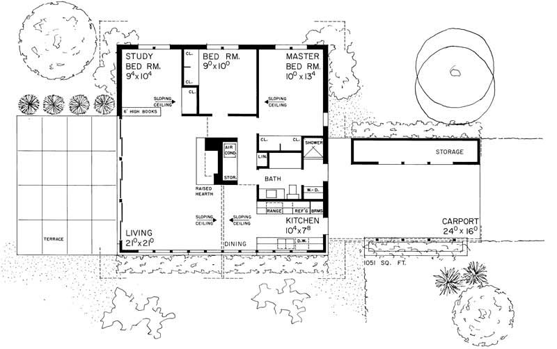
2-Bedroom, 1051 Sq Ft Contemporary Plan with Nook/Breakfast Area

Main image for house plan # 17440

Images/Plans copyrighted by designer. Photos may reflect homeowner modifications.

About House Plan #137-1847

Sq Ft
1051
Sq Ft
Bedrooms
2
Bedrooms
Bathroom
1
Baths
Half Baths
0
Half Baths
Bedrooms
0
Cars
Bedrooms
1
Stories
Bedrooms
56' 5'
Width
Bedrooms
32
Depth
Starting at$700.00What's included
STEP 1Bedrooms
STEP 2Bedrooms
STEP 3Bedrooms

Subtotal:$0
BedroomsBest Price Guaranteed
Plan Collection

How much will it cost to build?

Estimate your costs based on your location and materials.

Free Cost Instant Estimator

Floor Plans

MAIN FLOOR PLAN
MAIN FLOOR PLAN
Plan Collection

Can I modify this plan?

Yes! This plan can be customized—contact us for a free quote.

Additional Notes from Designer

Plans from this designer could take up to 14 days to fulfill, regardless of the plan package that was ordered. Please Note: The plans by this designer DO NOT include electrical plans or electrical layout plans. PLEASE NOTE: For this designer, if you are ordering a CAD, the wait time could be 2-3 weeks, depending on the plan. If you need it sooner, please contact us to find out the wait time. Thank you!

House Plan Description

This vacation home is perfect for the outdoor lovers.

Home Details

Summary
Plan #:137-1847
Starting at:$700.00
Floors:1
Bedrooms:2
Full Baths:1
Half Baths:0
Garage:
Square Footage
Heated Area:1051 Sq. Ft.
First Floor:1051 Sq. Ft.
Unheated Area:
Dimensions
Width:56' 5''
Depth:32' 10''
Ridge Height:15' 0''
Architectural Styles
Exterior Wall Material
Rock/Stone
Roof Pitch
4/12
Garage Type
Carport
Fireplaces
One Fireplace
Exterior Wall Framing
2x4

What’s Included

Most plan sets include the following:

icon text-secondary-400 includedAll 4 elevations

icon text-secondary-400 includedFloor plan

icon text-secondary-400 includedFoundation plan

icon text-secondary-400 includedSections

icon text-secondary-400 includedInterior elevations

icon text-secondary-400 includedDetail page

What’s Not Included

These items are  NOT included:

icon text-secondary-400 includedArchitectural or Engineering Stamp - handled locally if required.

icon text-secondary-400 includedSite Plan - handled locally when required.

icon text-secondary-400 includedMechanical Drawings (location of heating and air equipment and ductwork) - your subcontractors handle this.

icon text-secondary-400 includedPlumbing Drawings (drawings showing the actual plumbing pipe sizes and locations) - your subcontractors handle this.

icon text-secondary-400 includedEnergy calculations - handled locally when required.

Related House Plans

Plan Collection
Plan Collection
Plan Collection
Plan#109-1010
Starting at$1045
953
Sq Ft
1
Story
2
Bed
1.5
Bath
0
Car
Plan Collection
Plan Collection
Plan Collection
Plan#116-1082
Starting at$0
930
Sq Ft
1
Story
2
Bed
1
Bath
2
Car
Plan Collection
Plan Collection
Plan Collection
Plan#109-1006
Starting at$1045
953
Sq Ft
1
Story
2
Bed
1.5
Bath
0
Car
View All

Other Plans By This Designer

Plan Collection
Plan Collection
Plan Collection
Plan#137-1049
Starting at$550
988
Sq Ft
1
Story
1
Bed
0
Bath
0
Car
Plan Collection
Plan Collection
Plan Collection
Plan#137-1072
Starting at$550
876
Sq Ft
1
Story
1
Bed
1
Bath
2
Car
Plan Collection
Plan Collection
Plan Collection
Plan#137-1229
Starting at$800
2174
Sq Ft
2
Story
4
Bed
2.5
Bath
2
Car