Estimate your costs based on your location and materials.
Yes! This plan can be customized—contact us for a free quote.

Yes! This plan can be customized—contact us for a free quote.
PLEASE NOTE! This designer's plans do NOT come with framing!
NOTE: Alternative foundations for this plan may be available as a modification. Please complete and submit our "Modify this Plan" form to get a free quote.
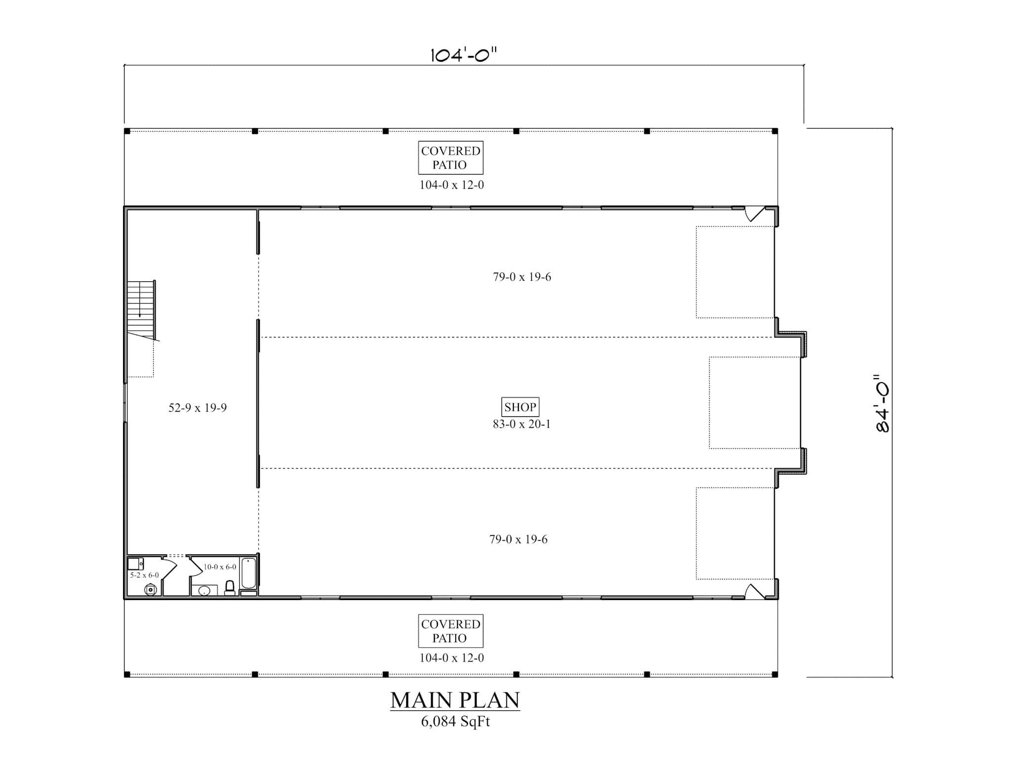
Where luxury meets functionality, this exceptional 6,000-square-foot Modern Farmhouse-style garage plan is designed to accommodate up to nine vehicles in style. Thoughtfully planned with 84 square feet of living space, a full bathroom, and covered patios on both sides, it delivers comfort and convenience in equal measure. The timeless Modern Farmhouse charm shines through its clean lines, inviting exterior, and versatile layoutmaking it a perfect choice for homeowners who value sophistication, space, and practicality.
Estimate your costs based on your location and materials.
All sales of house plans, modifications, and other products found on this site are final. No refunds or exchanges can be given once your order has begun the fulfillment process. Please see our Policies for additional information.
All plans offered on ThePlanCollection.com are designed to conform to the local building codes when and where the original plan was drawn.
The homes as shown in photographs and renderings may differ from the actual blueprints. For more detailed information, please review the floor plan images herein carefully.
Estimate your costs based on your location and materials.

