Estimate your costs based on your location and materials.
Yes! This plan can be customized—contact us for a free quote.
Yes! This plan can be customized—contact us for a free quote.
PLEASE NOTE! The CAD - Unlimited package is NOT an unlimited license - it is a license to build up to 5 homes. ATTENTION! Printed sets can ONLY be sent via ground shipping. NO priority or express shipping is available. ATTENTION! Printed sets can ONLY be sent by ground - NO priority or express shipping on printed sets!
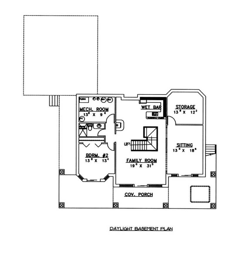
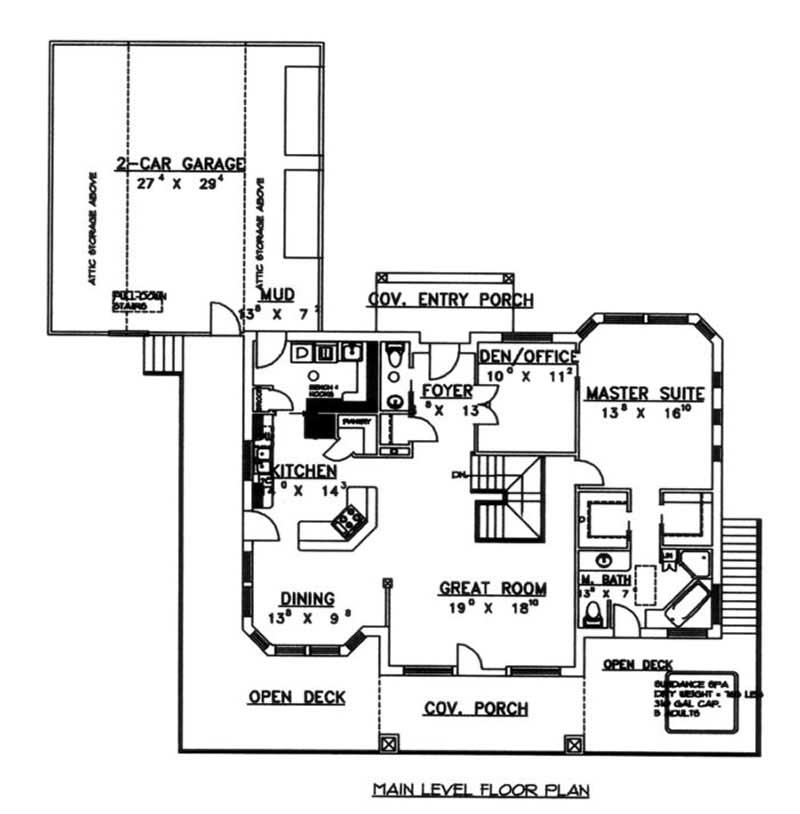
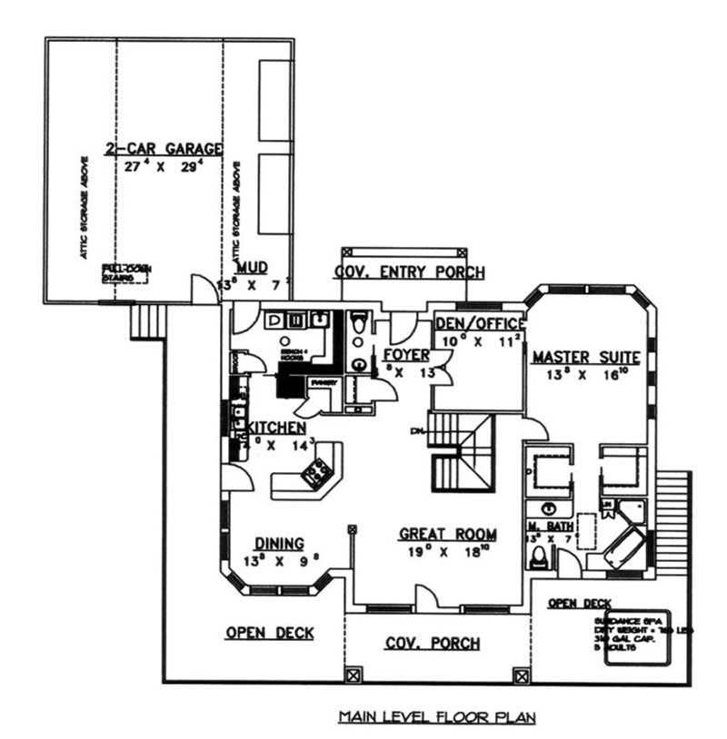
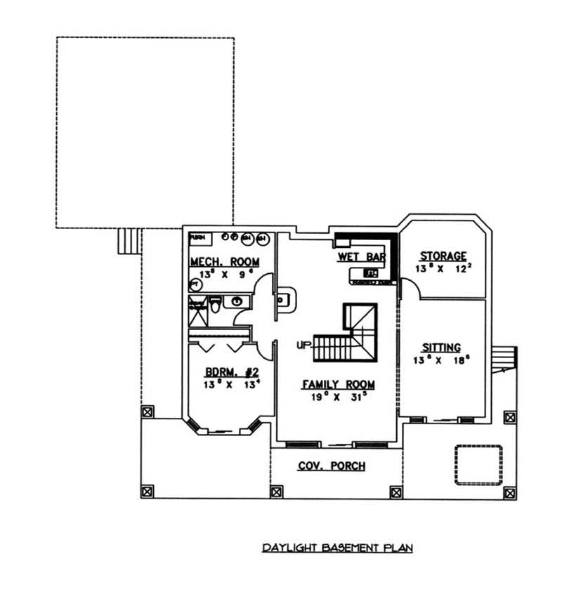
This home is unique in that it uses Insulated Concrete Form (ICF) Construction and incorporate a Modern Style. The daylight basement boasts a family room, storage area, a covered porch and much more. The Main Level has a 2-car garage which leads to a partially covered wrap-around deck. The deck itself has multiple access to the interior of the home and a built-in spa/hot tub. Inside the home is a Large Great Room, which joins with the kitchen and dining room. Also on the main level is the master suite with matching walk-in closets and master bath. Also note the den/office right off the...
Estimate your costs based on your location and materials.
All sales of house plans, modifications, and other products found on this site are final. No refunds or exchanges can be given once your order has begun the fulfillment process. Please see our Policies for additional information.
All plans offered on ThePlanCollection.com are designed to conform to the local building codes when and where the original plan was drawn.
The homes as shown in photographs and renderings may differ from the actual blueprints. For more detailed information, please review the floor plan images herein carefully.
Estimate your costs based on your location and materials.



