Estimate your costs based on your location and materials.
Yes! This plan can be customized—contact us for a free quote.

Yes! This plan can be customized—contact us for a free quote.
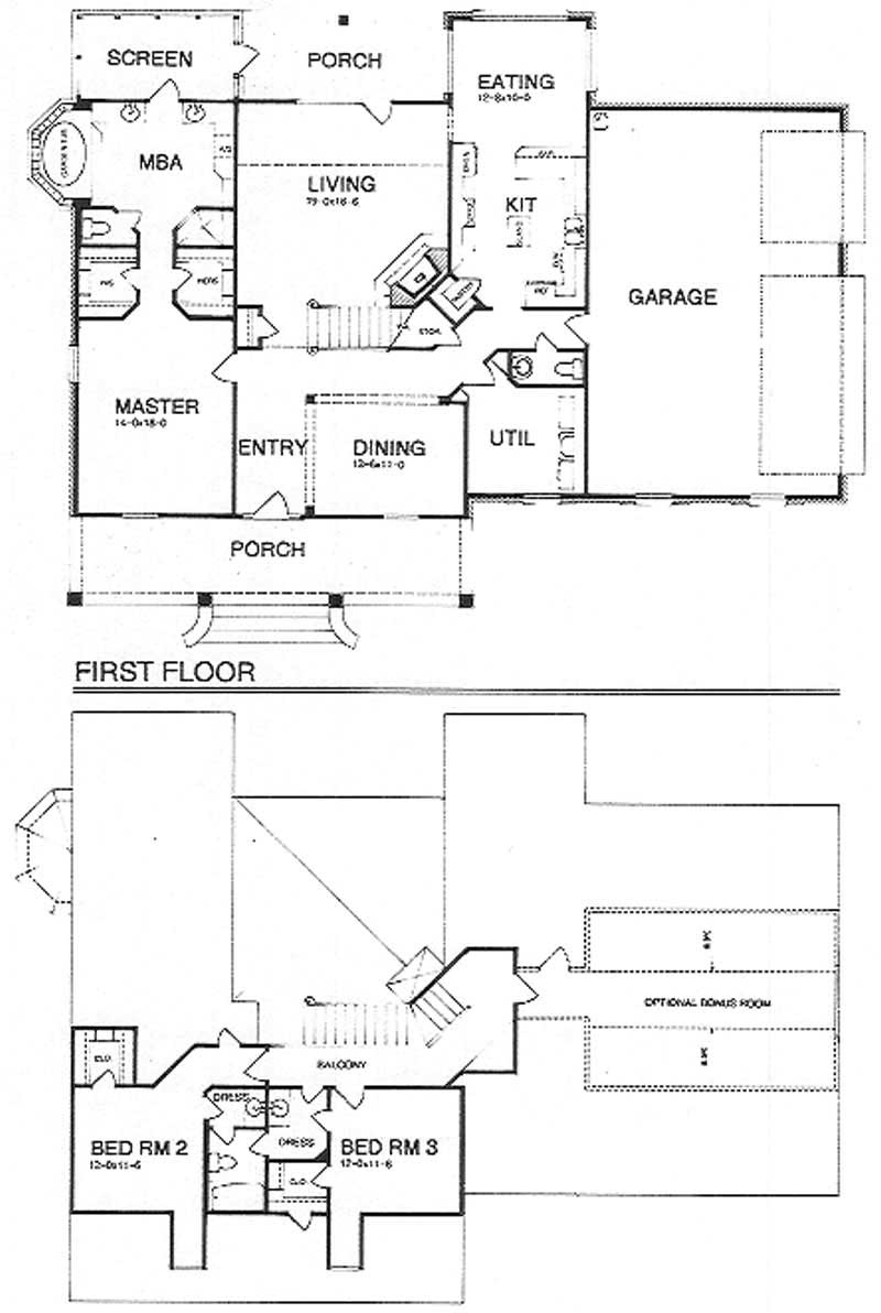
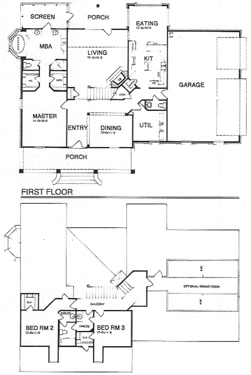
This home plan has a colonial southern exterior. Three bedrooms, 2.5 bathrooms, attached three-car garage with side entry. Large country-style porch leads to entry way with access to master suite, dining room, staircase to upper level, and living room with fireplace and rear porch. Upper level includes two bedrooms and optional bonus area. Large utility room with space for three machines, spacious kitchen with walk-in pantry and center island, eating area in rear of house. Master suite has two large walk-in closets, bathroom with jacuzzi, and personal screened porch.
Estimate your costs based on your location and materials.
All sales of house plans, modifications, and other products found on this site are final. No refunds or exchanges can be given once your order has begun the fulfillment process. Please see our Policies for additional information.
All plans offered on ThePlanCollection.com are designed to conform to the local building codes when and where the original plan was drawn.
The homes as shown in photographs and renderings may differ from the actual blueprints. For more detailed information, please review the floor plan images herein carefully.
Estimate your costs based on your location and materials.



