Estimate your costs based on your location and materials.
Yes! This plan can be customized—contact us for a free quote.


Yes! This plan can be customized—contact us for a free quote.
Please Note: The Designer's office will be closed for the holidays from 12/19/2025 to 1/5/2026. Any orders placed during this time will be fulfilled when the designer resumes office. This designer's plans take 7-14 additional business days regardless of the type of delivery (express, email, etc). Please keep this in mind when ordering.
BCIN is available for this designer - please submit a modification request to get a quote and time frame.
PLEASE NOTE! This designer's plans do NOT come with an electrical layout. They will provide an electrical layout for an additional fee.
Foundations at an additional cost are considered modifications. There may be a six business day delay to receiving plans if alternative foundations are purchased.
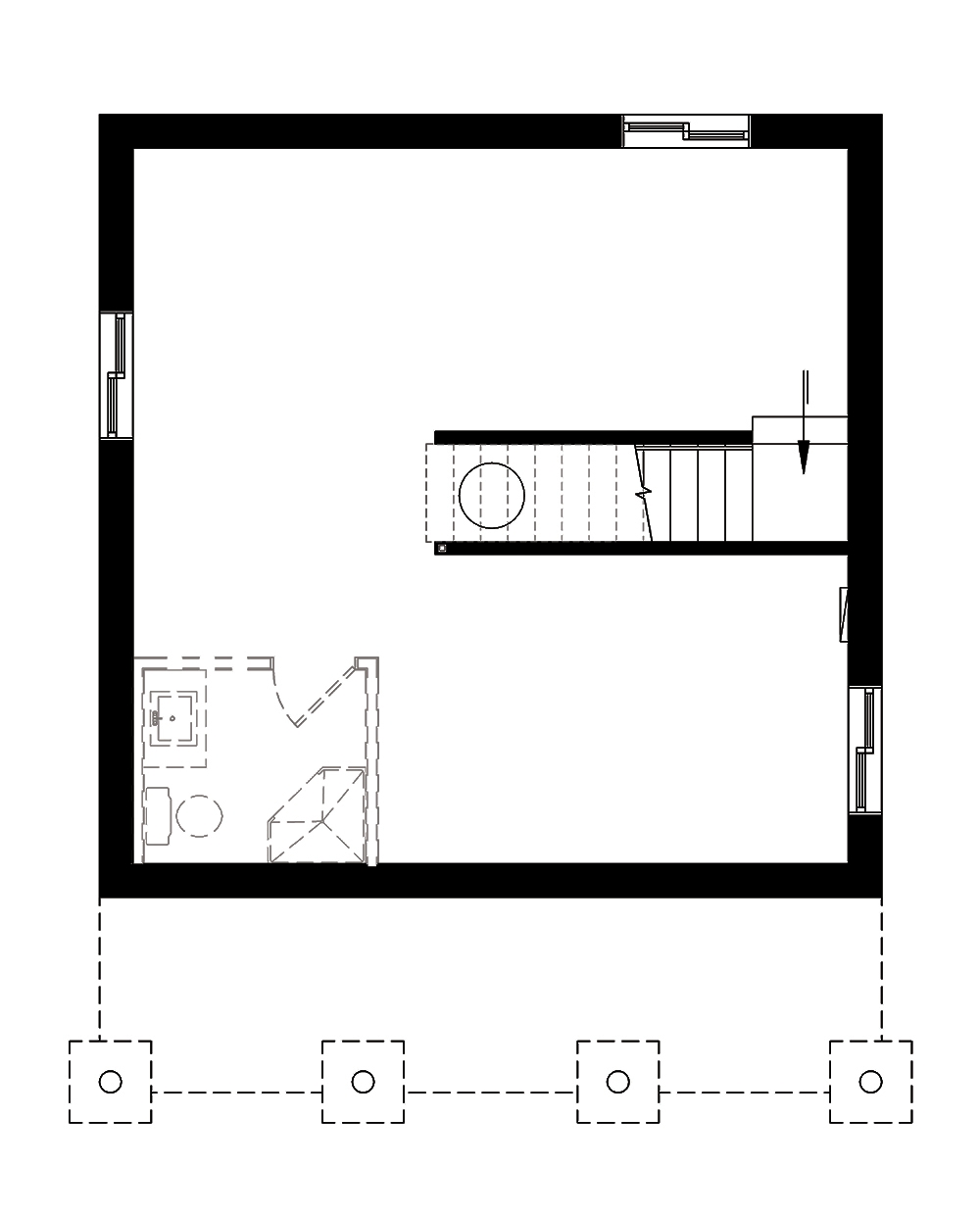
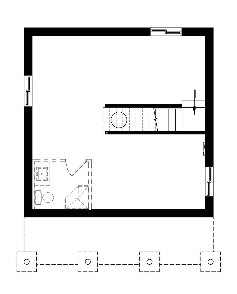
This 576 square feet house plan offers quite a lot in such a small space! Open the main door from the quiet, front porch and you find yourself in a bright and open floor plan space with the living, dining and kitchen areas combined. A wood-burning stove keeps the space warm and cozy. At the rear of the home is the bedroom with a walk-in closet and a full bathroom.
Estimate your costs based on your location and materials.
All sales of house plans, modifications, and other products found on this site are final. No refunds or exchanges can be given once your order has begun the fulfillment process. Please see our Policies for additional information.
All plans offered on ThePlanCollection.com are designed to conform to the local building codes when and where the original plan was drawn.
The homes as shown in photographs and renderings may differ from the actual blueprints. For more detailed information, please review the floor plan images herein carefully.
Estimate your costs based on your location and materials.



