Estimate your costs based on your location and materials.
Yes! This plan can be customized—contact us for a free quote.


Yes! This plan can be customized—contact us for a free quote.
Holiday Hours: Please note the designer's office will be closed from Friday, December 19th at noon until Monday, January 5th at 8am. All orders and requests will be handled after this date. Not ALL plans from this designer have a materials list available for purchase as an add-on. Please contact us to verify that it is available BEFORE ordering! This designer does not offer framing or an electrical layout with their plans.
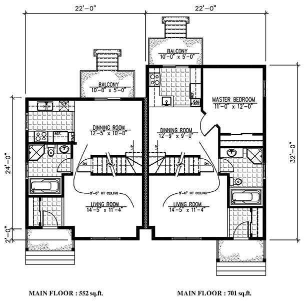
Combined, the two units have a total of 2,130 living square feet.
This charming country cottage-style duplex features two separate living units, each with a unique layout and design. The first unit boasts 1202 living sq ft, 3 bedrooms, and 1.5 baths spread across two floors. The second unit has 928 living sq ft and includes 2 bedrooms and 1 bath. In each unit, the main floor has a bright, airy, open layout, perfect for entertaining.
Estimate your costs based on your location and materials.
All sales of house plans, modifications, and other products found on this site are final. No refunds or exchanges can be given once your order has begun the fulfillment process. Please see our Policies for additional information.
All plans offered on ThePlanCollection.com are designed to conform to the local building codes when and where the original plan was drawn.
The homes as shown in photographs and renderings may differ from the actual blueprints. For more detailed information, please review the floor plan images herein carefully.
Estimate your costs based on your location and materials.





