Estimate your costs based on your location and materials.
Yes! This plan can be customized—contact us for a free quote.



Yes! This plan can be customized—contact us for a free quote.
On some plans, Basement Foundations, Walkout Basement Foundations, & 2x6 Conversions could take up to ONE WEEK to produce. Materials Lists could take up to FOUR WEEKS to produce and they will be for the ORIGINAL plan! Any modifications will NOT be reflected on the Materials List. NOTE FROM DESIGNER: If you purchase a CAD, you will automatically receive the unlimited build license - no need to purchase separately!
Please Note: Ordering 2x6 Exterior Wall Framing option will require an additional 5 business days before plan can be shipped.
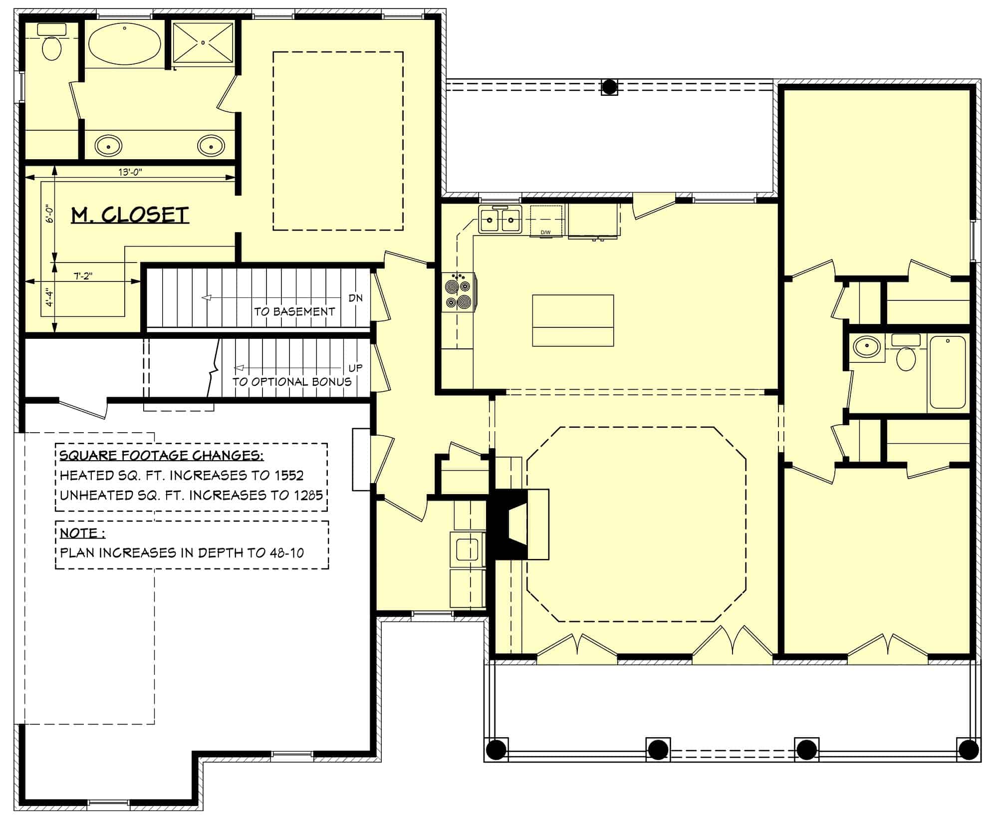
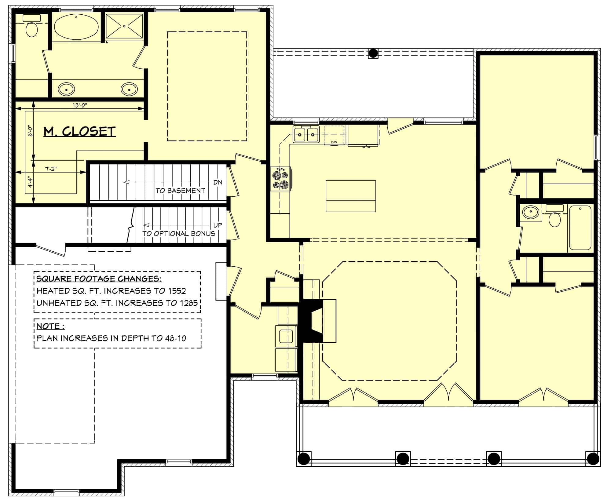
Please Note: The basement option adds approximately 4 feet to the depth of the house.
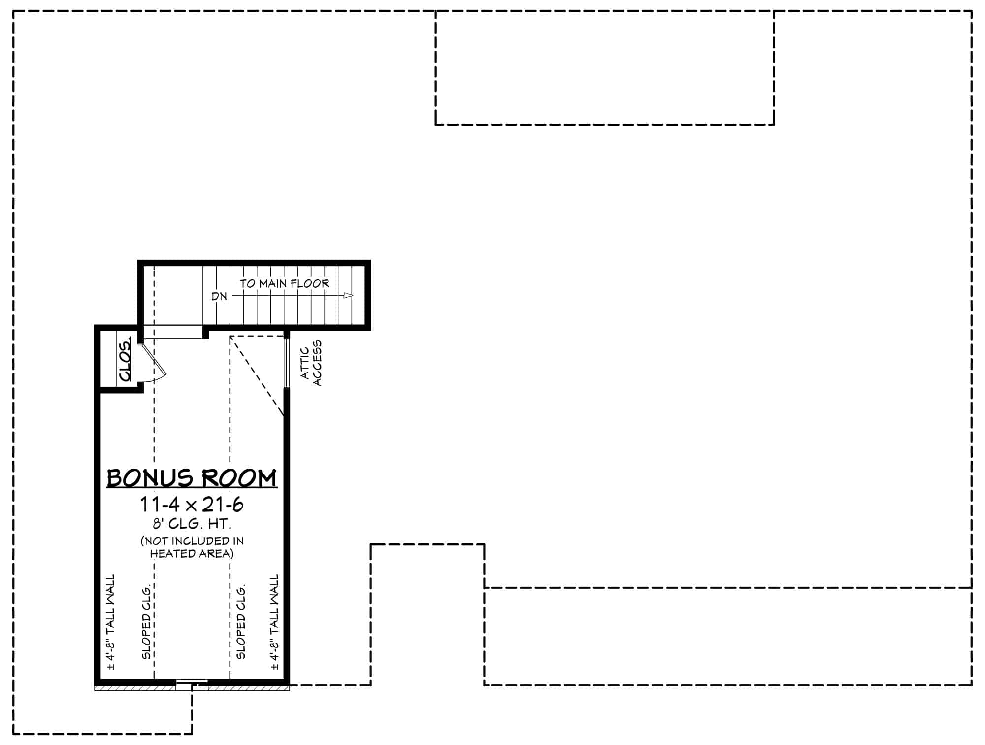
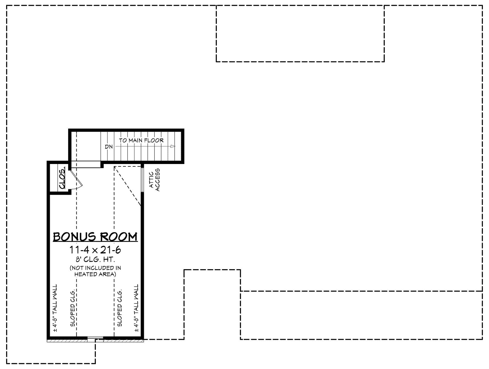
This attractive Acadian style home has 1500 square feet of living space. The 1 1/2 story floor plan includes 3 bedrooms and 2 bathrooms. The exterior of this home has a graceful covered front porch. Inside, this house has an open floor plan creating an ample space for the great room, dining area, and kitchen. The first floor also includes a welcoming master bedroom suite.
Estimate your costs based on your location and materials.
All sales of house plans, modifications, and other products found on this site are final. No refunds or exchanges can be given once your order has begun the fulfillment process. Please see our Policies for additional information.
All plans offered on ThePlanCollection.com are designed to conform to the local building codes when and where the original plan was drawn.
The homes as shown in photographs and renderings may differ from the actual blueprints. For more detailed information, please review the floor plan images herein carefully.
Estimate your costs based on your location and materials.








