Estimate your costs based on your location and materials.
Yes! This plan can be customized—contact us for a free quote.

Yes! This plan can be customized—contact us for a free quote.
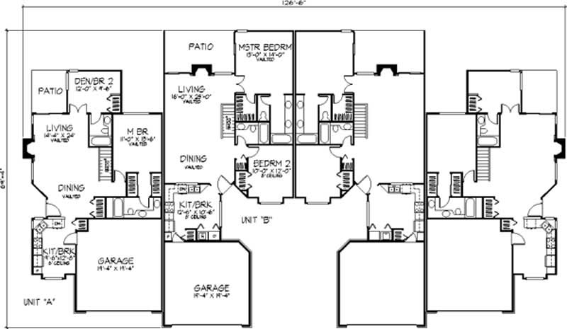
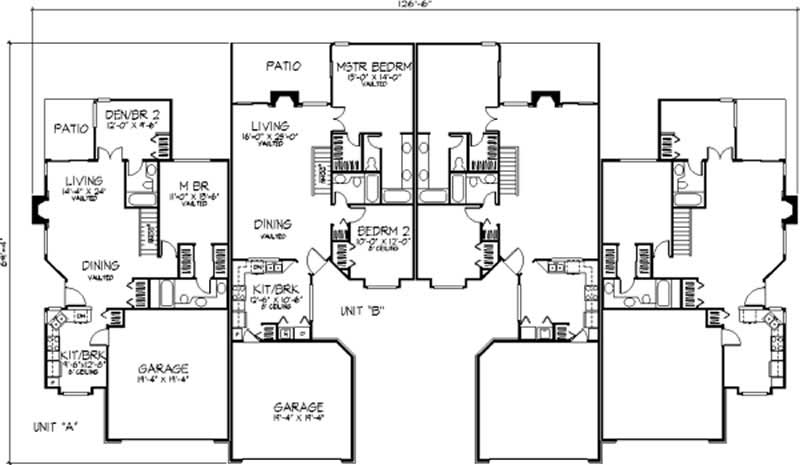
This four-plex contains two ranch units mirrored around an interior courtyard. Inside, these homes feature vaulted ceilings in both the living and dining areas, exciting fireplaces and sliding glass doors that open to lovely rear patios. The eat-in kitchens all include handy pass-through counters. The master bedrooms boast walk-in closets and private baths.
Estimate your costs based on your location and materials.
All sales of house plans, modifications, and other products found on this site are final. No refunds or exchanges can be given once your order has begun the fulfillment process. Please see our Policies for additional information.
All plans offered on ThePlanCollection.com are designed to conform to the local building codes when and where the original plan was drawn.
The homes as shown in photographs and renderings may differ from the actual blueprints. For more detailed information, please review the floor plan images herein carefully.
Estimate your costs based on your location and materials.

