Estimate your costs based on your location and materials.
Yes! This plan can be customized—contact us for a free quote.


Yes! This plan can be customized—contact us for a free quote.
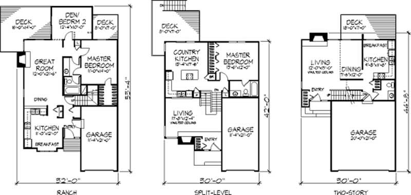
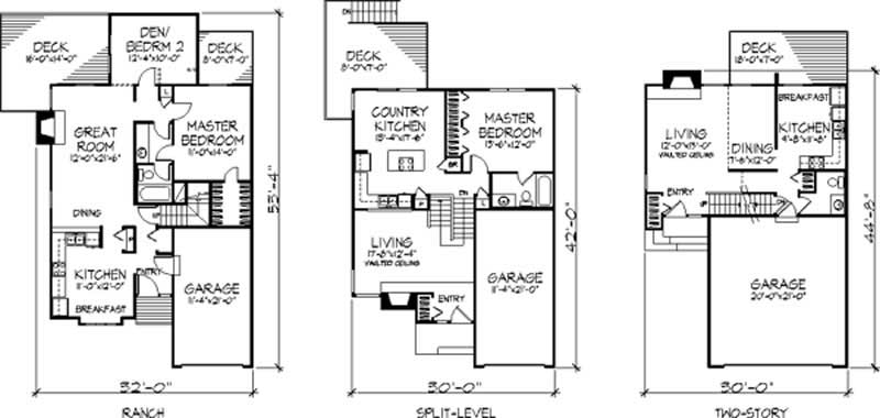
This multi-unit design offers three exciting floor plans. Unit A is a one-level design that's perfect for empty nesters. A Great Room with a fireplace opens to a rear deck. The master bedroom has private access to a full bath that it shares with a den, which may be utilized as a guest room. The kitchen has a sunny breakfast nook. Unit B is a multi-level design. A big country kitchen with deck access overlooks the living room, which features a fireplace. The master bedroom has private access to a full bath. On the lower level, two secondary bedrooms flank a family room. Unit C offers a...
Estimate your costs based on your location and materials.
All sales of house plans, modifications, and other products found on this site are final. No refunds or exchanges can be given once your order has begun the fulfillment process. Please see our Policies for additional information.
All plans offered on ThePlanCollection.com are designed to conform to the local building codes when and where the original plan was drawn.
The homes as shown in photographs and renderings may differ from the actual blueprints. For more detailed information, please review the floor plan images herein carefully.
Estimate your costs based on your location and materials.


