Estimate your costs based on your location and materials.
Yes! This plan can be customized—contact us for a free quote.


Yes! This plan can be customized—contact us for a free quote.
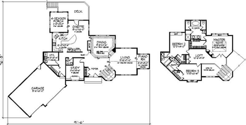
With its own raised piano room just off the vaulted living room, this European-influenced design will make you want to sit down and play a happy homeowner's tune. A see-thru fireplace warms both the living room and trayed dining room. Nearby, the kitchen enjoys a huge, angled island, while the dinette offers access to a sunny 4-season porch and a great outdoor deck. Upstairs, the trayed master suite and two secondary bedrooms all boast cozy window seats and always-useful walk-in closets.
Estimate your costs based on your location and materials.
All sales of house plans, modifications, and other products found on this site are final. No refunds or exchanges can be given once your order has begun the fulfillment process. Please see our Policies for additional information.
All plans offered on ThePlanCollection.com are designed to conform to the local building codes when and where the original plan was drawn.
The homes as shown in photographs and renderings may differ from the actual blueprints. For more detailed information, please review the floor plan images herein carefully.
Estimate your costs based on your location and materials.



