Estimate your costs based on your location and materials.
Yes! This plan can be customized—contact us for a free quote.
Yes! This plan can be customized—contact us for a free quote.
This plan was designed with the active family in mind. The living areas of the plan are basically open to each other separated only by architectural elements, not solid walls. The living and dining rooms, for example, are defined from one another by columns and ceiling details. To accommodate those who work at home, bedroom #2 could also double as an office. In the master bedroom, take note of the window placement. To complement the main set of windows, we placed smaller windows just around the corner. This window arrangement makes all the difference in experiencing the room. I like to call...
Estimate your costs based on your location and materials.
All sales of house plans, modifications, and other products found on this site are final. No refunds or exchanges can be given once your order has begun the fulfillment process. Please see our Policies for additional information.
All plans offered on ThePlanCollection.com are designed to conform to the local building codes when and where the original plan was drawn.
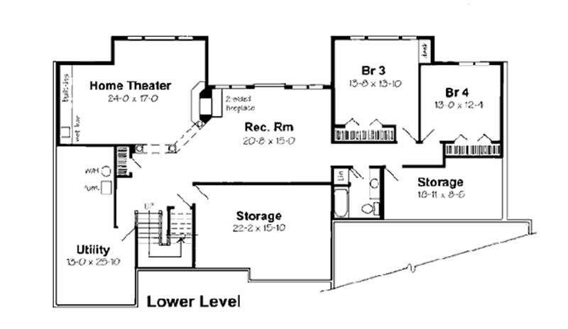
The homes as shown in photographs and renderings may differ from the actual blueprints. For more detailed information, please review the floor plan images herein carefully.
Estimate your costs based on your location and materials.
